1
央企保利最高端“尊居”大国璟首次入渝,
定价亲民,却销量一般
6月13日,保利8.05亿元拿下巴南区鱼洞一宗125.12亩纯居住用地,楼面价5362元/㎡。

(图片来源于乐居)
回顾保利27年的发展,开发了尊居、善居、康居、3大住宅产品体系,22个住宅产品线,满足了全龄段客群的人居需求,尊居属于3大住宅产品体系之中最高端的,尊居又包括天悦、天汇、大国璟3个住宅产品线,大国璟在这其中是最年轻的一个,而这块地面世的作品,就是今天的主角:保利大国璟
虽然带来了旗下最高端“尊居”,价格也比较的亲民,但是销量却很一般。

那到底究竟为何会出现如此的现象,我们就来一起看一看
今日测评楼盘:保利大国璟
楼盘概况
项目位置:巴南区龙洲湾尚文大道
洋楼户型:建面99㎡-138㎡
洋墅户型: 建面149㎡-159㎡
梯户比:1T2户,2T3户,2梯4户
装修情况:毛坯
套内价格区间:建面10500元/㎡左右
绿化率:35%
容积率:1.8
住宅物业费: 2.6-3.5元/m²/月
别墅物业费: 4.5-5元/m²/月
接房时间:2021年

扫一扫,别走丢
1
区域
本项目位于巴南高职城板块,具体位置在尚文大道中段,周边都是片在建工地,暂时不算成熟。
高职城算是近几年来巴南一个新兴板块,但在巴南存在感较低,现在的“当红炸子鸡”是“巴滨路”,大型开发商+江景资源+广泛宣传,使得它目前“风头正劲”。
说回高职城板块,目前这里的生活氛围不浓厚,而且目前学校进入较少(工商大学融智学院,重庆艺术职业学校),但未来的规划比较值得期待。

(图片来源于搜狐)

(图片来源于巴南网)
2
交通
目前该楼盘周边公共交通不太方便,离轻轨较远,公交车较少,出行更多依靠自驾。
但是在小区东边组团的出入口那里后期会设立公交车站。
事实上,整个高职城的片区交通都存在着一定问题:绝大部分只能依靠公交车出行,班次较少,等待时间较长。

(图片来源于重庆网络问政平台)
3
配套
该楼盘目前周边大兴土木,生活配套设施不完善,商业配套更多依5.5公里之外的万达广场,(出租车费大约15块)
学区配套:周边虽然学校众多,甚至旁边就是巴南名校:鱼洞二小,但据置业顾问介绍,该楼盘要接房后才知道划片区读哪所学校,现在未定。
小区配套:小区依照“圆明园”的设计,打造较为精致,配备有人脸识别系统,WIFI全覆盖,24小时监控等。

从后期来看,小区周边配套齐全,完全可以满足日常生活需要,但更多的是依靠周边项目的商业体量,落地时间和效果未知。

4
户型
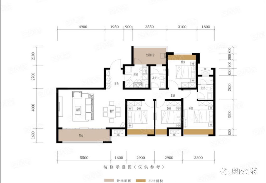
本楼盘分为一期和二期,现在在售的是一期,分东,西两个组团,有洋楼,有洋墅。

(图片来源于房天下)
我们来看看在售的其中一种洋楼户型(图中方框):建面138㎡,2梯3户,总高13层(1楼为架空),清水交付的基本配置户型如下:

优点:
1:朝南看中庭,安静不吵,楼间距最大可达120米,视野开阔。
2:生活阳台超大满足晾晒需求,完全可以将客厅阳台考虑打进客厅或者作景观阳台使用。
3:赠送多,所有的飘窗均可以打掉。
缺点:
1:该户型无法做到南北通透。
2:走廊稍微浪费面积。
3:阳台为半封闭(有堵大约60公分高的墙)
目前售房部有折扣(95折),而目前这种户型所剩不多,10楼算下来总价如下:

2
这是一个尴尬的好产品
这个盘看完了之后,我的感觉就十分客观,它的问题就出在“错误搭配”这4个字。
区域地段本身不成熟,对外吸引力有限,在楼市下半年普遍平淡的情况下,任你将任何的高端作品搬过来,都会折戟沉沙。
市场就是最好的试金石,这样的结果就只能说明一点:该区域的购买力不足以支撑这样的产品。
产品本身品质不错,价格也适中,但销量却不佳…即使做了95折的强力促销,依然没有改变卖不动的现状。
3
综合建议
1:该楼盘的小区环境不错,性价比在高职城来看不错,户型宽绰,再加上现在的95折活动,有考虑在巴南置业改善型的客户可以去看看。
2:楼盘的总价其实并不低,这个预算区间还是有一些更优质的选择,购房者不妨走出去多看看。
3:该楼盘的成熟期较长,(不管是区域还是周边),投资就不用考虑了。
楼盘评分
价格:☆☆☆☆
地段:☆☆
交通:☆☆
配套:☆☆
环境: ☆☆☆
综合评分:2.8分(5分为满分)

声明
1、本篇文章仅代表作者个人观点,不代表任何官方立场;
2、转载本号原创文章,请务必提前联系本号编辑(关注#熙依评楼#,输入“转载”);
3、对于未经本号授权的转载等行为,本号将采取法律途径维护合法权益。