建筑的实质是空间,空间的本质是为人服务。
随着三胎政策的出台,改善再次迭代升级,120平的户型已经不能满足改善客群的居住需求,当下140平的户型正成为改善主流。
对于140㎡级的户型,各大地产都投入了重金研发。
在业内,作为“空间大师”的中海,精研人居新的需求,创新产品力进阶,适配改善趋势,从看不见的细节提升到户型空间的创变升级,全维度品质进化,迭代生活。
今天一起来看下中海140㎡面积段户型。
1、横厅户型
西安中海·云锦建筑面积约143㎡户型,3室2厅2卫, 南向面宽达到约14.05米。设计的 大横厅户型 ,相较于该项目同面积段的竖厅户型虽然减少了一个居住空间,但是却多出了一个轩敞的大横厅,这就是中海针对全生命周期的升级版「流间大境2.0」。
横厅内预留的空间能够随着时间的流动创意出各年龄段的丰富生活场景,比如收藏区、儿童区、休闲运动娱乐区或者学习工作区,赋予生活更多的可能性,也给空间更多的可变性。

西安中海·云锦建筑面积约143㎡横厅户型


中海·云锦建面约143㎡三房展示样板间实拍
南京中海南山印建筑面积约142㎡户型,4房2厅2卫,宽适四房。 LDK+X一体化空间+西厨岛台设计 ,在空间的延伸中增加更多生活想象。 约6.8米双联阳台 ,轻松感受「日光浴」。豪华主卧套房, 主卫双台盆 ,让夫妻晨起洗漱互不干扰。阳台及主卧室均为270°转角窗设计。关注经典人居

南京中海南山印约142㎡户型图
客厅连通阳台的PROMAX级全景视野,实在是令人超级心动!

外立面效果图

外立面效果图
北京中海·甲叁號院建筑面积约145㎡户型,可四居可三居,2个卫生间,整体 13.8米大面宽 ,全明格局。

北京中海·甲叁號院建筑面积约145㎡户型
餐客厅一体的设计实现南北通透, 7米横厅 在提供超大采光尺度的同时,也提供了足够的活动空间,业主可以自由组合客厅、书房或休闲区,保证实用性和舒适度的平衡; 中西双厨+北侧家政阳台 ; 入户玄关配备收纳衣帽空间 ,整洁收纳,归纳有序。

主卧套间带2个衣帽区和"双面盆+大浴缸"的大独卫 ,内部就形成了南北通透的格局;全明卫浴,营造舒畅明亮的沐浴及洗漱空间,次卫临近2个次卧,无需穿过客餐厅即可使用。关注经典人居

北京中海·甲叁號院效果图

北京中海·甲叁號院效果图

北京中海·甲叁號院效果图
合肥中海九樾建筑面积约142㎡洋房,3室2厅2卫,经典的布局排布,南北通透的户型,每个卧室都带飘窗,这些不仅都扩展了居住空间,而且也大大增加了观赏性。关注经典人居
“书房+客厅”与双景阳台相连, 开间更是达到7.4m , 进深长达2m的宽景阳台 ,相当于赠送一半面积。
主卧采套房设计,独立卫生间、独立衣帽间,这对于女主人的吸引力简直是爆棚!

合肥中海九樾约142㎡户型图
扬州中海九樾建筑面积约143㎡户型,4房2厅2卫, 客厅开间约6.9米+南向宽奢阳台 ,功能、采光俱佳;厨房餐厅一体化,功能整合设计,便捷更自如; 独立玄关设计,设置专属储藏空间 ,尊贵入户礼仪的同时收纳也更强。

扬州中海九樾建筑面积约143㎡户型
济南中海·汇德里建筑面积约142㎡户型,大三室设计(3室2厅2卫),三开间朝南,亮点是 6.8米大横厅和1.8米宽的进深阳台 。

济南中海·汇德里约142㎡户型
石家庄中海·云锦建筑面积约145户型,3室2厅2卫, 6.6米横厅 , 阳台与宽厅*界无**联通 ,尺度感、空间感更强。厨房布置 加入岛台设计 ,更关注家人之间的交流互动。

石家庄中海·云锦约145户型

效果图

效果图
义乌中海雅居乐·九樾府款建面约145-148㎡B2户型,客厅餐厅横厅设计,外接同宽超大阳台,推门见景,视野宽阔;南向三卧室朝南,采光更充足;入口储藏间超强收纳。

义乌中海雅居乐·九樾府建面约145-148㎡户型
2、边厅户型
北京中海首钢·天玺建筑面积约147㎡户型,四居三卫,双套房设计,可以说 将近150㎡的空间,做出200平米的”空间感“ 。
户型空间餐客厨空间一体化,设计了 约12.6米L型采光环幕客厅 ,南向4.2米,侧面6.9米。让整个公共区域奢阔舒适,豪宅范儿十足,空间感爆棚。再结合客厅-餐厅-厨房一体的联动设计,就拥有了 近40平米 的明亮宽厅。

北京中海首钢·天玺建筑面积约147㎡
客卫还创新性的将 洗手台外置 ,便于一进门就能洗手消毒,非常实用。


样板间实景图
南向主卧套房+书房的内嵌式设计,面积达25㎡ ,实现豪宅主人的居住功能延伸,也可以根据不同的需求灵活改动,将套间做成书房、婴儿房或者保姆房都没问题,空间规划更加灵动自由。关注经典人居

样板间实景图

样板间实景图
北侧次卧同样实现卧室+卫生间的套房设计,保证家庭成员独立生活空间的私密性,充分满足三代同堂的居住需求。
独立的干湿分离公共卫生间,让家庭生活更加卫生、从容。

中海首钢·天玺效果图
3、竖厅户型
义乌中海雅居乐·九樾府建面约145-148㎡B3户型,南北通透,实现了“4房2厅2卫”的全家庭生活功能。
“四叶草”形态的全明设计,约5.1米的客厅开间,拥有 LDK客餐厅一体化设计的“大境通厅” ;约 8.1米宽的“栖心阳台” ,客厅与卧室皆链接了宽屏场景的阳台。宽屏阳台之上,可摆三两座椅,一张茶席,朋友到访时,这里是一方自在的天地……
U型西式厨房 、 酒店式主卧套房 、 海量收纳储藏间 ……栖心大宅的空间精研,蕴藏太多惊喜。

义乌中海雅居乐·九樾府建面约145-148㎡B3户型

义乌中海雅居乐·九樾府效果图
成都中海天府里建筑面积约141㎡户型,4房2厅2卫,南向四开间,餐客厅一体化竖厅布局,南通通透, 约7米南向双联阳台 ,采光通风视野更佳,H型厨房外连家政阳台,家务更便捷合理,三卧室朝南,居住舒适度更高。

成都中海天府里建筑面积约141㎡户型
4、多开间朝南
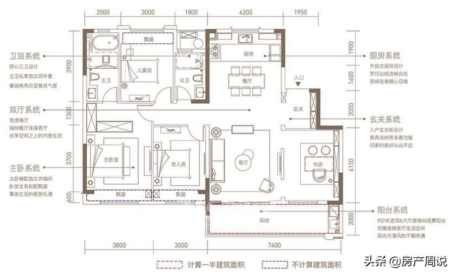
西安中海·云锦建筑面积约143㎡户型,4室2厅2卫,整体布局为目前市面上流行的大面宽、短进深设计, 南向面宽达到约14.05米 。
四面朝南 ,拥有三个南向卧室,除了主卧套间和老人房之外,还能为男孩和女孩各自规划出独立空间,即使三孩也能满足居住需求。此外, 厨房+家政间的空间也十足抢眼 ,不仅 家务动线合理 ,且 面积空间尺度给得很足 。

西安中海·云锦建筑面积约143㎡竖厅户型


中海·云锦建面约143㎡四房户型图
南京中海方山印建筑面积约141㎡户型,4室2厅2卫,四开间朝南,设计颠覆传统,实用性和亲密感兼具。关注经典人居
IMAX级中央空间 、 约7.8米超大双联阳台 、 超大主卧套间设计 、 卧室南向近乎全面屏的大飘窗 等亮点十足。
传统的客餐厅模式,人为的从空间上割裂了烹饪、饮食、休闲这些能够让家庭成员团聚的时光。方山印使用LDK一体化设计,打通厨房、餐厅与客厅的功能,形成了大面宽、大进深的IMAX中央空间,把烹饪、饮食、家庭交流、个人发展融合在一个空间里,增强居住互动与联系,让确定的家庭需求以及邻里情感有了更落地的空间和场景。

南京中海方山印约141㎡户型
福州中海观澜府建筑面积约143㎡户型,4房2厅2卫,全明方正,约14m南向大面宽,四开间朝南,动静分区很彻底,客餐厅一体化,约30㎡奢阔会客厅,约4.2m宽景阳台。

福州中海观澜府建筑面积约143㎡户型
5、双套房设计
上海中海·汇德里建筑面积约145㎡户型,4室2厅3卫,经典竖厅布局,双套房设计,四个卧室位于房间四个角落,互不干扰,私密性强。

上海中海·汇德里建筑面积约145㎡户型
结语:
迭代的是产品,不变的则是购房者对于美好生活的向往。中海大户型空间布局更合理,满足多样的居住需求,舒适度更高,生活幸福感也在这里得以体现。你对哪个更感兴趣?欢迎评论区留言互动。