12月上海一手楼市真的一反常态,较之往年的死气沉沉,显得“百家争鸣”,网红盘“你方唱罢我方登场”。
这不,万科天空之城开盘结束,龙湖天璞大筹最后一天,融创壹号公馆认筹第一天。不得不说,真的是热闹。
这三个楼盘,两个是2018年的网红盘,一个是泗泾地王项目,又都是品牌开发商所开发,市场关注度都相当高。
那么如此大环境下彼此“厮杀”,谁能突出重围呢?我们来看一下。
这三个楼盘有个共同点是在于:它们所处的板块都有个“爸爸”叫“虹桥”。徐泾、江桥都是直接受到虹桥商务区的直接红利辐射,泗泾则是商务区辐射边缘+上海外来人员聚集地,都是属于有很好的潜力又不缺常住人口的。

万科天空之城
在2018年3月10日,万科天空之城曾经开盘过一次,当时一共推出283套房源,有272组买房者认购,这个成绩在当时还算可以。当然随着时间慢慢推进,这一批房源早已经全部去化。
而这一次,万科天空之城推出的是87㎡-155㎡面积段明星户型。

不得不说一下项目的155平米户型,整体尺度非常阔绰。3间卧室均朝南,且主卧面宽大,设有转角飘窗,视野极佳。
客厅+餐厅横厅设计,虽然不是朝南的,但是2个空间均连接着大尺度的阳台,通风观景效果也非常好。
2处前室空间,增加了空间利用率,可以将一些鞋子、雨伞物品放置,以保证室内整洁。
万科天空之城总建筑面积约52万㎡,由住宅、办公、商业、幼儿园等业态构成。另外项目规划集合电影院、精品超市、酒吧、精品餐饮、儿童娱乐及早教等多元复合业态于一体的复合型商场,同时配备有立体绿化系统、阳光草坪、健身步道等,满足业主的理想日常。
虽然项目自身品质规划都很不错,但是它周边试车道+地铁噪音的不利因素或许也是一些买房者心中挥之不去的痛。
如果说买到了小区内部的房子,那这些不利因素倒是可以忍一下,但是如果没买到呢?
那么我们再来看看龙湖天璞。

龙湖天璞

龙湖天璞于2018年6月拿到了预售证,那次开盘的均价约为51800元/平米。这个均价跟之前的预期相差甚远,但“降价不降标”的性价比还是让其成为了上海6月最热的项目之一。
随后天璞的二期,也是最后一期也在12月下旬入市,虽然没有了一期的装修标准,但是二期的认筹热度依然不低。而这持续不退的热度归根究地有以下几个原因:
龙湖天璞所在的江桥板块,位于大虹桥商务区的北虹桥板块,同样受到大虹桥辐射利好,板块内的置业前景受到了大多数购房者的肯定,另外江桥板块内一手房市场房源比较稀缺。
项目共27栋楼,可以分为四个相对独立的社区,由小桥链接,小区内部自带三条自然水系,这对于水系稀缺的上海来说还是比较有亮点的社区设计;
另外其社区的景观是十分有特色的,“天璞”作为最高端的产品之一,此次社区也采用了龙湖地产比较擅长的五重园林的设计,高一点的楼层视野比较好。

这一次开盘入市的房源除了刚刚提到的没有了一期的装修标准之外,原来的一些问题,诸如商业配套能级不高、高能级商业只有万达广场,没有等级高的医院。
众多用户最关心的还是江桥的垃圾焚烧厂,虽然说项目距离焚烧厂有一定的距离,但是还是会受到一点点影响,另外虹桥机场的飞行航道有些也会经过项目,带来的噪音污染是不可避免的。
话虽如此,但是虹桥商务区是上海市重点发展的地方,周边红利板块肯定会在未来趋于成熟和科学化,配套等都会跟上来。
附上刚结束的龙湖天璞二期一房一价表,有兴趣的小伙伴可以看看:










这两个项目都非常好,但是也有目前不可避免的不利因素存在,那么融创壹号公馆呢?

融创壹号公馆
先来讲一下这一次融创壹号公馆的认筹情况。
认筹日期:12月17日-12月23日;
认筹地点:上海市松江区泗泾镇恒泽路188弄售楼处;
认筹金:
个人:认筹金根据本项目实际情况,需交20万元
首套房的存款证明金为100万元,二套房的存款证明金为200万元。
企业:认筹金根据本项目实际情况,需交20万元;
参与认筹企业的存款证明金为本次准售房源套均总价的100%。
自然人以个人和企业法人代表或股东的名义在同一楼盘不得重复认筹。
给大家看一下今天前线传来的认筹现场照片:




项目由14栋12--15层法式小高层组成,地暖+中央空调精装修交付;主推户型为85/87平米的3房2厅1卫、93平米的3房2厅2厅、121平米的4房2厅2卫,平均价格为48000元/平米,一房一价,总的价格范围在400-600万之间,有个别85平米的房源总价为370万左右。
然后要说的是,融创壹号公馆是16年的泗泾地王项目,属于融创“壹号院”产品体系的优质产品。关于泗泾和产品的大概念就不多说了,各个媒体和公众号都已经说烂了。

三湘商业广场,保利悦活荟,大润发、电影院、一点点、coco、肯德基,这种都能满足基本的生活需求。
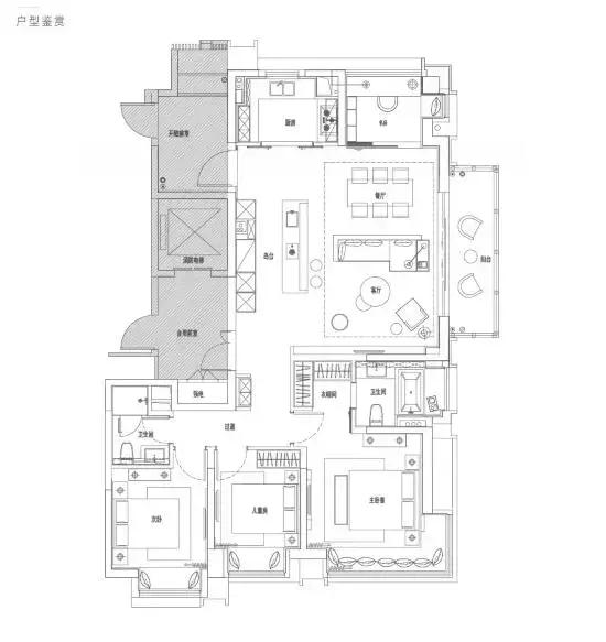
户型图一览:




这三个网红盘接连入市,谁会创下更好的成交业绩,这需要等到12月底或者1月份才会真正知晓,静待揭晓答案!
三个项目我们团队都进行了实地踩盘分析,每个都有自己的优势和劣势,具体怎么选择,就要看买房者自己的需求和是否介意附近不利因素了。