衣柜,是每个家庭里必不可少的一部分,它是一种非常好的收纳、储存型家具。一个好的衣柜可以提高生活质量,还可以使衣物保持良好的状态。然而,不合理的衣柜布局,就会上演一找衣服就把衣柜翻个“底儿朝天”的窘境。怎么能把衣柜空间利用最大化、合理化,让收与取都更方便呢?
今天舍长就从衣柜常规分区以及不同人群需求,来为大家分享衣柜收纳技巧,看看衣柜设计为何如此重要。
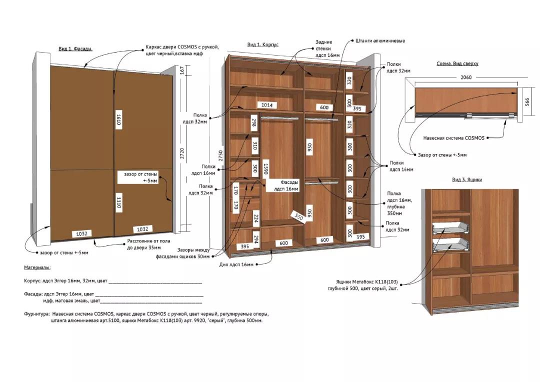
一、衣柜常规布局
衣柜通常需要3大类的收纳区域:

1、上层区(被褥放置区)
上层区由于拿取物品不方便,主要用于存放换季不用的被子或过季衣服,可以用储物袋或者储物箱装好,也有利于防潮。

2、中层区(悬挂区、叠放区、抽屉区)
悬挂区可以放置当季衣服,也可以悬挂大件衣物,如风衣、羽绒服、大衣、连衣裙、礼服、西服、衬衫等容易起褶皱的衣服,方便拿取,一目了然。


叠放区用于把不常用和不怕起皱的衣物进行折叠存储,以此节省空间。叠放的衣服不能太多,否则不仅压坏下层的衣服,还会造成取用时的麻烦。这个区域可以叠放毛衣、T恤、休闲裤等衣物。最好安排在腰到眼睛之间的区域,这样拿取方便。这个区域可以设计为可以调节的活动板层,方便根据需求变化高度或改为其他区域,例如挂放衣服增多后可以安放挂衣杆改为上衣区。
抽屉区可以选择存放一些比较小的衣物(内衣裤、袜子、领带、小首饰、小配件等),叠好放在衣柜抽屉内,可以选择使用“分隔板”固定分区,防止松散凌乱。


3、下层区(裤架区、暂存放置区)
裤架区专门用于悬挂裤子,不易起褶皱,所有裤子是对折起来悬挂。建议选购有防止裤子滑落的衣柜,以防裤子悬挂掉落。
暂存放置区可以放置收纳筐等一些不常用的东西。


二、不同人群的衣柜收纳布局
年轻夫妇的衣物是多样化的。一般将左右两边分别设置成男女方各自的储衣空间,柜体内的挂衣架通常分为长短两层分别储存大衣和上装,衬衫也可以放置于独立的小抽屉或搁板,不会因过多衣物挤压在一起而皱折难看。同时,悬挂的设计适应快节奏生活。

儿童的衣物,通常是挂件较少,叠放的衣物较多,且考虑到儿童玩具的摆放问题,最好能在衣柜设计时就考虑一个大的通体柜,只有上层的挂件,下层空置,可方便儿童随时打开柜门取放和收藏玩具,满足儿童好玩的心态。

如有问题,请及时与我们联系,我们将第一时间做出处理

三、定制家具的个性化需求
通过上面的分享我们可以看到,定制家具的重要性不言而喻。近几年,全屋定制在家居领域发展得如火如荼。有数据显示,在近两年有过装修或购买定制家居的人群中,80、90群体购买定制家居的比例分别为62%、74.7%,全屋定制已成为主流趋势。
全屋定制顾名思义,就是家具的个性定制。所谓个性,就是独一无二,而且和消费者房屋的空间相适宜,同时还要满足消费者不同实用性需求和个性审美。
那么,如何根据客户需求设计出合理化的定制家具呢?这就需要了解学习人体工程学,熟练使用CAD、草图大师等软件,同时,还要掌握房屋的测量、CAD图纸绘制、家具的功能布局和比例关系等家具设计专业知识和技能。


火星时代室内设计师课程,内容全面且贴合当下企业和用户对室内设计的高端需求。经过系统学习,学员们不仅可以掌握到CAD、 Sketchup、3ds Max、V-Ray、PS等专业软件的操作流程,还会有经验丰富的授课老师通过真实的商业项目案例来为学员细致传授室内设计行业的相关技巧和经验,使学员通过专业培养与训练,具备设计师专业素质、做出优秀设计方案、增强就业竞争力!
版权声明 | 文章配图仅供学习参考,引用图片版权归原作者所有
如有问题,请及时与我们联系,我们将第一时间做出处理
优秀设计方案、增强就业竞争力!
版权声明 | 文章配图仅供学习参考,引用图片版权归原作者所有
如有问题,请及时与我们联系,我们将第一时间做出处理