【关于设计的故事】两年前江户雅致小区的一位业主朋友找到我们,做了一套舒适感十足的台式美学空间方案。设计结束后,我们的业主朋友因为工作原因暂时离开了,项目工程也就停滞了下来。近期,他回到了沈阳,我们的工作继续衔接上,工程马上提上日程。
时间飞快,两年里城市的街道变了很多模样,流行的风格又有了新的内涵定义。我们的业主朋友却还是觉得两年前的这套方案很不错。
经典,其实是很简单的。除去那些磅礴历史中的闪光,人们日常中更多需要的是实用、耐久、且切中内心的器物。好看不土气,其实不难……

小区:沈*江阳**户雅致
风格:现代
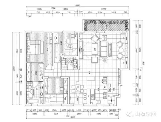
面积:180㎡
户型:三室两厅一厨两卫


▲理石、棉麻、皮质、实木,不同材质的混搭运用,让居室充满摩登栖息。亦不失稳重自然,大空间的通透格局让主人的大方气质卓现。


▲开放式厨房搭配吧台、餐桌,给爱热闹的主人小两口更多互动与聚会的空间。绿植墙面的设计,亦更符合现代人对绿色健康的生活要求。

了解更多家居内容,关注微信:山石空间设计生活家