
本案设计者

境远设计
设计师:俞列
擅长风格: 新中式 北欧 美式
与业主交流:本案男女业主都是公务员。刚接触时,客户比较担心户型功能设计和色彩搭配上,能不能超出自己的预期。所以在后续沟通中,一直跟客户保持良好的跟进。
与男业主聊聊兴趣爱好等,逐步了解客户的真正需求后,既在功能上满足了家里四口人一同居住,也处理好了生活互不干扰的空间规划,同时在色彩上做了很多协调搭配,使整个空间稳重又不失跳跃感,温馨大气。

项目地址:恒高路128弄恒盛豪庭
建筑面积:128平方
户型:三房二厅二卫一厨一阳台
设计&施工:境远装饰
项目名称:清境
风格关键词 :低奢简美
硬装发费:20万
品牌支持:马可波罗瓷砖、科勒卫浴、得奇思橱柜、菲林格尔地板、欧派木门
清境简美


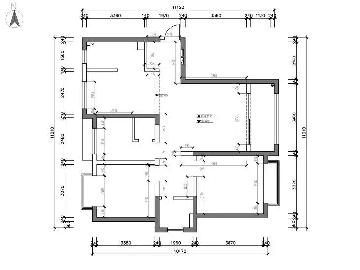
原始户型图

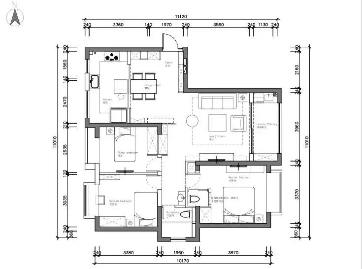
平面方案图
设计亮点:原始户型结构问题较多,从布局考虑中采用化繁为简,扬长避短的方式,既保留了各个空间的最大使用面积。同时各个空间的关系融会贯通,充分利用了空间来储物,半敞开式的厨房设计,既满足了客户的需求,又为将来生活功能做了很大提升。一卫改两卫的设计也便于主次卧的卫生分区。整体美式跟摩登风格碰撞出不一样的情调。
客厅



▲客厅的背景和阳台的打通设计,隔而不断。
厨房


▲厨房淡色系清爽干净。
餐厅



▲餐厅跟厨房的弹性设计,让过道的面积为餐厅服务,也让餐厅和厨房的互动更加密切。
父母房


▲蓝色基调,简洁舒适
主卧


▲主卧内新增加的卫生间,采用了通透玻璃设计,也是人多家庭的不二之选。
卫浴


▲卫浴以素白为基色,以金色为点缀,典雅贵气。
小孩房


▲孩子房飘窗的敲除也为卧室增加面积,同时孩子的书写区更加明亮。