
“摆脱一切你不需要的设计语言会带来一种激动人心的东西——纯净。” ——卡马雷 Without any unnecessary design languages, it will bring something exciting – pureness.”—— Kamare
//
01_
|设计师专访 |Designer interview
Q:为什么给这个 家 起名为《天空之境》?
A : 嗯……因为这个家的整体气质吧,纯粹、自然、澄澈,好像天空一般纯净,呆在里面也会非常自在放松。
Q:房子里好像没有太多储物柜,这和屋主的生活习惯有关吗?
A : 对!这个家比较特殊,屋主并不是长期住在这里,而是 偶尔过来度假小住,或者是当作工作的拍摄取景地, 所以屋主的需求是空间要开阔,不需要太多柜子影响活动。另外光线要好、空间不要有太强烈的色彩、风格印记,方便随时布景拍摄。
Q:面对这样的特殊需求,你做了哪些设计?
A : 空间格局我做了很大的改动,大胆 的 把四房改成了大两居 ,每个空间都非常的宽敞,空气、阳光也可以自由流动。
再加上自然的白色、原木色,点缀绿植,一个温暖自然,又充满生命的空间就此成形。
这个家我的设计手法我觉得是 回归本真 吧,没有花哨炫技,只是用光、空气、自然的语言做设计,可以随处看到木作、留白、呼吸感,对自然诗意的理解,在这个空间得到了很好的表达。
//
02_
|还原诗意生活 |Use nature to restore poetic life
HALLWAY
◇ 以自然之名,还原诗意生活



为了满足摄影背景的需求,我们在入户的端口去做了室内造景的处理,木质栅栏与绿植,大自然的清新气息,让生活多了些诗意与浪漫。
LIVING ROOM
◇ 集休闲,阅读,娱乐于一体的多功能空间

打开客厅与书房,阳台的隔断,三个功能空间自然地融为一体。大面积留白增加了室内的明度,阳光与风肆意地穿过大大的玻璃窗,宽敞通透的空间总是让人心情开朗愉悦。


浅色木纹与白色墙面勾勒出自然气息,人字拼地板与鹅卵石造型的地面,为空间带来更多的丰富质感,肆意感染着每一个置身其间的人。
DINING ROOM
◇ 质朴材质,自带森林般的治愈感

厨房同样选择开放式设计,增加了西厨空间,餐厨一体的造型不但让空间更开阔,同时也有了更舒适的动线。


质朴的原木造型餐桌,是特意为屋主寻找的定制款,不规则的树木造型仿佛让人置身山林,橱柜也选择了木色与仿石材柜体与之搭配,自带森林般的治愈感。
BED ROOM
◇ 拉伸纵向空间的极简设计



以细木条为基本元素设计的床头造型,整个空间的纵向线条被有意拉伸,以极简设计引入阳光,无需任何多余的家具,极至通透大开大合的空间节奏,使得从纷繁世界归来的人,在这里只缓缓阅读内心。

将一间房直接设计成衣帽间,与主卧构成套房形式,让起居空间更具私密性。根据屋主的生活习惯设计的衣帽间,不同尺寸的储物空间让收纳更简单,方便也是一种舒适。

次卧沿袭简约设计,大面积留白,为生活带来更多可塑性。日夜帘简洁实用,用两种透光度的材质,自由切换生活场景。
BATHROOM
◇ 自然材质的延伸,营造轻松与舒适

客卫进行改造,设计为干湿分离的形式,多人使用更方便。


仿木纹砖与公共区的木质元素相呼应,水泥砖营造质朴气息,以自然之名,还原生活诗意的全貌。
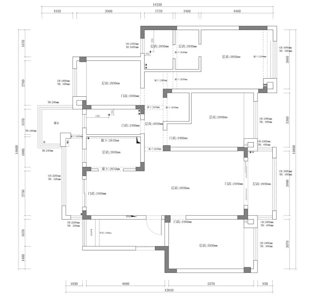
APARTMENT|户型图

原始户型是比较方正的四房格局,但空间分割比较凌乱,有的房间面积太小,比较鸡肋。所以我们进行了部分拆改,打开了空间,将它变成宽敞的大两居,更符合屋主的生活和工作需求。

1、将书房和阳台打开,与客厅融为一体,成为一个集休闲,阅读,娱乐于一体的多功能空间;2、打开厨房,形成餐厨一体的格局,增加了西厨空间,以餐桌进行空间的隔断,空间更显宽敞通透,使用起来也更方便。3、将一个房间设计为衣帽间,与主卧和主卫一起形成一个大的套房,与公共空间分离,保证了休息空间的私密性;4、主卫将衣帽间扩充进来,获得更大的使用空间,客卫设计成干湿分离的形式,多人使用更方便。
项目地点丨中国上海 · 嘉定
Project locatio
项目面积丨160㎡
Project Area
项目小区丨华润中央公园
Project cell
设计师丨严黔黔
Designer
使用材料丨木饰面、瓷砖、玻璃、 木地板
Use of materials