设计得到(百万设计师的职业提升平台)
施工图的问题对于设计师来说一直存在,无论是图纸深度还是细节,都令新手没有头绪,有些设计师甚至工作一年多,在拿到项目的时候也感觉无从下手。
在室内设计行业高速发展的这十几年,我们的整体方案水平是得到了显著提升的,但是我们的图纸质量以及项目控制程度却越来越低。
图纸好坏分不清,天真的以为图纸画的越多越好,在错误的道路上越走越远,而不自知。
布局、参照、图纸集、标准作图逻辑,设计方案理解、设计提资解读.……只懂一些皮毛,奢望进入一线设计公司,门槛都还够不到。
只会死记硬背标准节点,面对设计造型无从下手,不会分析底层逻辑,越学越累!
公司无标准,习惯混乱,不会团队分工,作图效率低!
甚至盲目学习插件工具,不重视图纸逻辑,终于沦为一个画图工具人!
上过太多天价网课,但“一看就会,一用就废”,连一套完整的施工图纸都画不出。

如果你还在被以上这些问题困扰,那么今天这篇文章你一定要看到底!
1、每个公司的制图规范都有其鲜明特点和独到之处!
施工图在整个行业中所扮演的角色越来越重,特别是对于刚入行或者入行不久的设计师,施工图能力成了公司考核比较重要的一个版块。
但是实际上,无论是已工作的或者刚毕业的设计师,根本不知道绘制出一套完整的施工图需要注意些什么!

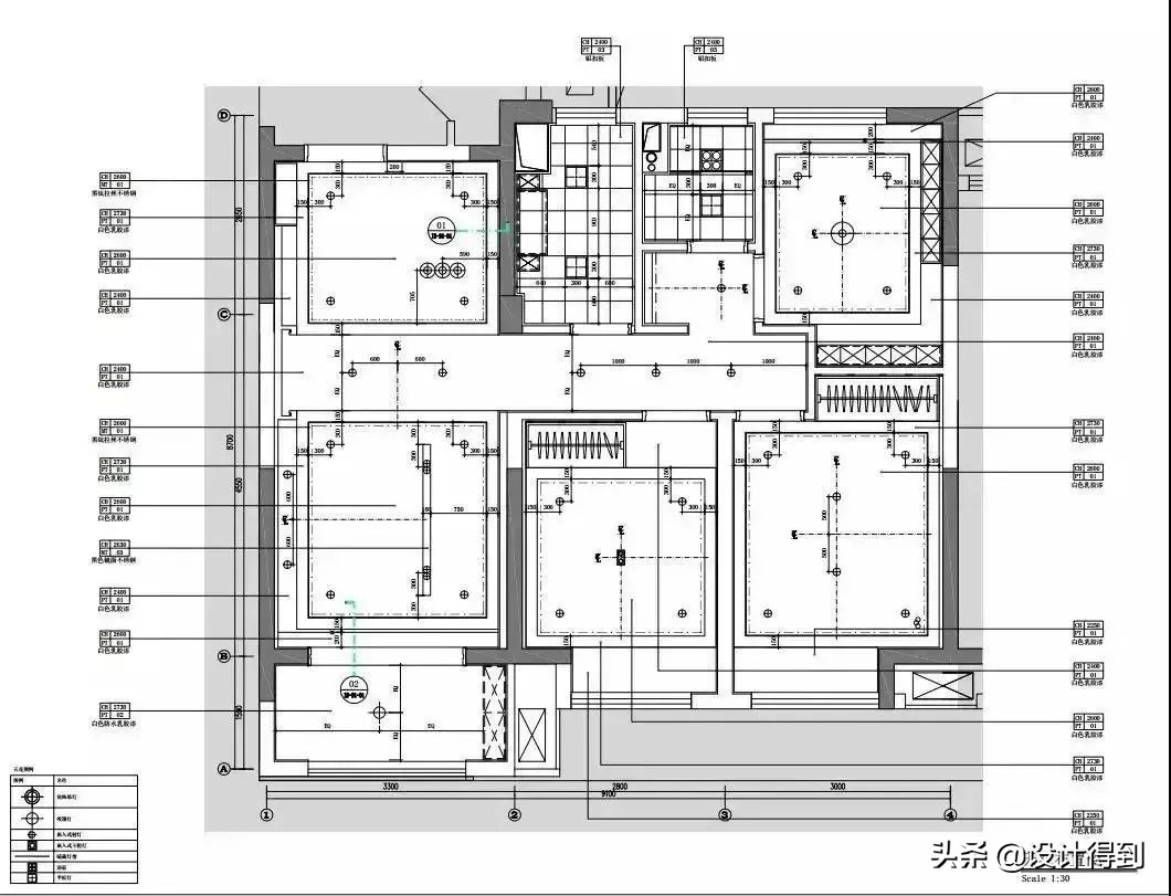
△平面布置图△
施工图从项目流程来讲,是在方案设计和扩初图基础上绘制的图纸。施工图最重要用途之一是能够指导施工。我们所绘制的施工图表达全面了,工人看懂了,后续施工才能顺利有序地进行下去。
那么,一套好的施工图应该是怎么样的呢?

△天花布置图△
完整的施工图需要有深度,能够准确地表达出装修信息,指导施工。图纸的深度不是越深越好,而是需要根据具体项目情况具体分析对待。通常需要做到各区域细节用材明确、标准工艺做法确定,天地墙的做法确定,墙体完成面能够准确定位以及相关机电点位能够整合。

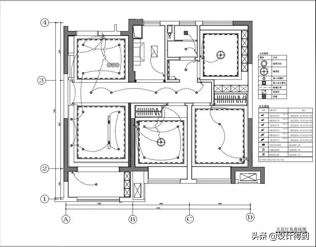
△天花灯具连线图△
一套完整的施工图,体系和内容必然是完整的,并且符合相关的规范。施工图体系包括目录、设计说明、材料表,图纸索引、图纸内容等。而图纸的内容除了平面图、立面图、节点图外,还有大样图、门表、局部大样图等。

△立面图△
2、掌握一套施工图完整绘制流程,至关重要!
图纸的绘制、图面的绘制看似容易,但也是最容易出问题的。比如图纸布局、比例大小、图纸图层设置、线型设置、尺寸标注等等。

△天花节点△
布局出图,最重要一环是图层的设置,图层设置有很多属性,除了图名外,还有颜色、线形、线宽等。这些设置都与图面绘制准确性息息相关。图纸的图层设置又与打印样式设置紧密相关,每一个图层颜色设置都对应着相应的线宽设置和淡显设置。

△墙身节点△
尺寸标注,标注关乎着施工图表达信息的准确度,不可或缺。尺寸标注和材料标注是施工图标注的重要组成,而标注样式是根据制图规范来制定的,不同的图幅,对于字高、大小、颜色也是不同的。
细节表达,一套完整的施工图除了必要的元素的表达,细节也影响着施工图的完整程度。比如,填充图案的样式大小、索引符号剖切符号的大小和位置、标注位置、布局排图等都需要注意。
做好细节把控,熟悉一套标准的施工图完整绘制流程,严格控制好施工图图纸方面的输出,才不会一直在施工图的修改上浪费大量时间、疯狂加班!