房产热点丨楼盘资讯丨政策信息丨市场数据
宝鸡楼市直播
西安房价一路上涨,土地成交价也跟着攀升,随之全国性的品牌房企对宝鸡地产的关注度也是相当的高,2017年开始,富力、碧桂园、恒大、蓝光、新城控股等一个接一个的入驻宝鸡,但值得注意的是,前四个出的都是精装修产品,为什么这些全国性的品牌房企出的都前后入驻宝鸡呢?宝鸡消费者对精装修产品的接受度和认可度怎么样呢?

带着这几个问题小编和宝鸡广播电台1028的主持人小布去了前三个项目富力湾、碧桂园凤凰城、恒大御景湾的售楼部、样板间、工地做了个详细了解,那么本期小编主要带大家了解的是宝鸡富力湾项目。
01
关于富力
富力地产,中国标准化运营精装地产领导者。1994年成立,2005年香港联交所主板上市2017年成为全球最大豪华酒店业主,2018年被中国房地产研究会、中国房地产业协会等权威机构联合评定为中国房企实力10强,中国房企综合发展第3名,中国房企商业地产综合实力第4名,六盘并进致敬陕西,四座城市(西安、渭南、汉中、宝鸡)缔造标杆。

宝鸡富力湾项目是富力地产在宝鸡的第一个项目,总占地4.6万㎡,总建筑面积20.6万㎡,总规划户数1316户,机动停车位1448个。位于高新一期的高新区天玺路与高新大道交汇处,是文教与商业并行的居住核心地段。

02
关于产品
项目产品
项目总共7栋住宅,都是高层,面积:105㎡—160㎡,2020年12月20日统一交房,全部精装修交付。

在售信息
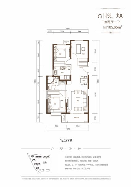
在售楼栋:5#、7#楼,两栋楼都五证齐全,房源面积:115.23㎡、116.30㎡、105.39 ㎡、105.65㎡,成交均价:8300元/㎡,预计2020年12月20日交房。

户型及样板间展示

目前在售楼栋5号楼和7号楼,主打的就是以上105.65 ㎡和116.30㎡的两个户型,一个是三室两厅一卫,一个是三室两厅两卫,因为我们去了样板间有实际看过两个户型,个人比较喜欢105.65 ㎡这个户型,一个卫生间对于购买这个面积的家庭来说足够使用,没有浪费面积,每个房子也不会显得那么紧凑,并且客厅、厨房、餐厅是相连的,所以入户处在视野上给人感觉比116.30 ㎡的户型还要宽敞。
03
关于配套
项目交通配套
项目位于宝鸡市高新区天玺路与高新大道交汇处,距离高新天下汇、银泰城国金中心、高铁南站仅5分钟车程;行政中心、连霍高速仅10分钟车程;老城区经二路商业圈仅15分钟车程。
项目商业配套
富力湾项目自带有规划5千平米的社区商业街,涵盖24小时便利店,水果蔬菜超市,美容美发,咖啡店等等,能满足业主日常所需。及区域内已经成熟的天下汇、银泰城以及陈仓老街等大型购物商超,也仅有5分钟车程的距离。
项目教育配套
与小区一墙之隔有慧佳智能双语幼儿园,仅一路之隔有今年9月份开始正常使用的高新小学,距离项目1公里范围内宝鸡中学,除此之外,项目周边还有宝鸡高级中学、宝鸡文理学院等教育资源,项目周边的教育配套还是可以的。
项目医疗配套
距离项目3公里位于高新大道的高新人民医院,是三甲级医院,。往北十五分钟可以到达二级甲等医院宝鸡市第二人民医院,并且后期小区内部还会规划社区医疗站。
04
关于装修
整个项目都是精装修产品,1500元/㎡的装修标准,采用了国内国外家居领域知名的装修品牌:“全球五星级专用品牌”科勒、摩恩、“能效管理专家”施耐德、“中国绿色建筑陶瓷”欧亚陶瓷。
交付标准为以下品牌或其他同等品牌:海尔、科勒、施耐德电气、乐家、嘉宝莉漆、美标、日立、欧亚陶瓷、摩恩、科马。并且配有风光声测试、6重安防系统、生态除霾新风系统
所有的装修材料及保质期都会在合同内详细注明。
05
关于物业
项目的物业是富力自己旗下的恒富物业,是国家一级物业,横跨5国,五星级物业服务,收费:1.5元/㎡/月。
六心服务模式

8项服务承诺
06
总结
小编给大家分享的都是小编到售楼部了解到的信息,小编和1028主持人小布在富力湾呆了两个小时左右,开始是项目经理给我们讲了项目基本信息,后来安排了一个特别热情的置业顾问,非常详细的给我们讲了项目背景然后带我们看了样板间,所以小编尽可能的给大家讲清优势和劣势,讲清产品真实的情况,给置业的你一个参考。
项目优势
就小编亲自去项目了解后,个人觉得这个项目首先它是大品牌开发商的产品,了解到他们对建房质量要求是非常严格的,在户型设计和品质方面还是值得信任的;在就是区位优势,富力湾是高新一期唯一一个精装修项目,也是富力湾在宝鸡的第一个湾系列项目,目前周边生活配套已完全成熟;另外他们的物业是富力自己旗下恒富物业,是国家一级物业,业主入手精装房,那物业过不过关,是一个至关重要的方面,有国家一级物业服务,业主后期的生活质量也是一个保障,项目非常适合有实力并且注重品质的刚需家庭和改善型的购房者。
项目劣势
项目整体配套都是比较好的,非要说不足之处应该就是它地处高新区天玺路与高新大道交汇处,地理位置确实比较好,但项目靠近马路,应该会有噪音,但据置业顾问介绍他们用的都是双层中空玻璃,能降低90%的声能,这个情况应该能改善很多。
07
结束语
关于富力湾项目的分享就到这,那么关于小编开头提到的两个话题:为什么这些全国性的品牌房企出的都前后入驻宝鸡呢?宝鸡消费者对精装修产品的接受度和认可度怎么样呢?大家有什么想法和见解,可以积极留言讨论。
《房产快乐家》 是由超弦有限公司和战略合作伙伴宝鸡人民广播电台联合打造的一档专业、全面、权威、维护消费者权益的房产类栏目。FM102.8周一至五10:00-11:00首播,15:00-16:00重播。
节目整合房地产及相关行业的各类信息,将最新的政策信息、楼盘资讯、生活配套等新闻进行整合报道。定期邀约政府相关部门、专家学者、业内资深人士、开发运营商等把有关房产方面的政策、新闻、信息,采取实拍+分析+采访相结合,视频+图文+音频多种形式,全媒体矩阵+视频直播+广播直播等多种媒介报道给广大消费者。为消费者提供名盘、热盘、新盘展示,详细介绍地段,价位,交通,周边环境,优惠,政策等信息。
本栏目涵盖的信息版块有:
(1) 房产快讯:涵盖宝鸡市房产资讯、关注最新热点房产事件和现象,透视地产界每一个新举措、新思路、发展趋,让广大消费者在第一时间了解到地产及相关信息的最新资讯。
(2) 楼盘点击:对宝鸡在售楼盘、精品名宅,进行分析、点评,为消费者提供最新、最全的楼盘信息,让消费者不在盲目看房和购房。选房购房:全面指导宝鸡市人民选房购房的方法策略和注意事项提供政策法规指导,避免让消费者在购房时权益受到侵害。
(3) 材料行情:分析介绍推介家装、装饰家中的主要的材料;发布各种家装材料的价位、品质、购买地点,让消费者在装修的道路上不再浪费时间和精力,不在被混乱的装修市场所忽悠。
请大家继续关注宝鸡楼市直播,小编将持续为大家推出关于楼市信息,如果大家对以上项目有一些自己的看法或想知道哪个楼盘的信息,都可以在线留言哦!
——宝鸡楼市直播 编辑 长颈鹿