项目好,服务好。实地踩了10多个楼盘后,终于有个项目获得了老王看房小编们的一致“好评”。这个项目就是新站区皖投万科·天下艺境。
从案名就能看出,天下艺境是由安徽本地国企皖投和全国著名房企万科合作的项目。作为联姻之作,两家房企在天下艺境项目上究竟产生了什么化学反应,让小编们称赞不已?

少荃湖图
NO.1 |万科+皖投 双品牌
2017年1月13日,皖投置业以单价973.26万元/亩,总价12.593亿元竞得新站XZQTD222号地块。不久,万科也加入进来。
皖投万科·天下艺境是万科首度进军新站项目。此前,万科在合肥已开发金色名郡、金域华府、万科城、森林公园、城市之光、时代之光等多个项目。皖投作为安徽本土国企,在合肥也开发过望湖城·桂香居、天下锦城、湖东景园、天下名筑等多个项目。两家企业在合肥均积累了一定的市场口碑。
皖投万科·天下艺境总占地面积8.6万㎡,容积率2.0,总建筑面积21.8万㎡,共规划25栋楼1475户,10栋11层小高层,7栋18层高层和8栋26层/28层高层。配建1624个停车位,绿化率40%以上,精装交付。

皖投万科·天下艺境效果图
NO.2|三横三纵三轨道
皖投万科·天下艺境位于新站区张衡路以西、龙子湖路以北,被“三横三纵三轨”交通网络包围。三横是从南往北分别为北二环、淮海大道、东方大道;三纵从东往西文忠路、铜陵路、新蚌埠路。
文忠路向南可接包公大道,铜陵北路高架连裕溪路高架贯穿南北一号高架同时其延伸线向北达天水路(正在施工),新蚌埠路南向可达合肥汽车客运总站、火车站以及安徽白马商贸城。

拍摄图售楼处区位
预计2019年底试运营地铁1号线延长线和建设规划的3、4号线位于项目附近。公交线路有301、302、681、686等。
商业配套方面,主要有百大、拓基广场和距离项目约500米的磨店美食老街,可以满足日常需求。20分钟车程能迅速抵达瑶海万达、家天下生活广场、安徽大市场商圈。

合家福购物广场

附近街边银行
NO.3|医疗相对完善 教育氛围较优
皖投万科·天下艺境项目东面1.2公里处有一个磨店卫生院,项目西南侧有新建的三级甲等安医四附院,目前已经建好即将投入使用。北边在建的京东方数字医院,是合肥第一家数字化医院。

京东方数字医院
项目东北方500米是集初中小学为一体庆平学校,西边是168中学。据置业顾问介绍,安徽示范高中合肥九中已选址于项目附近。
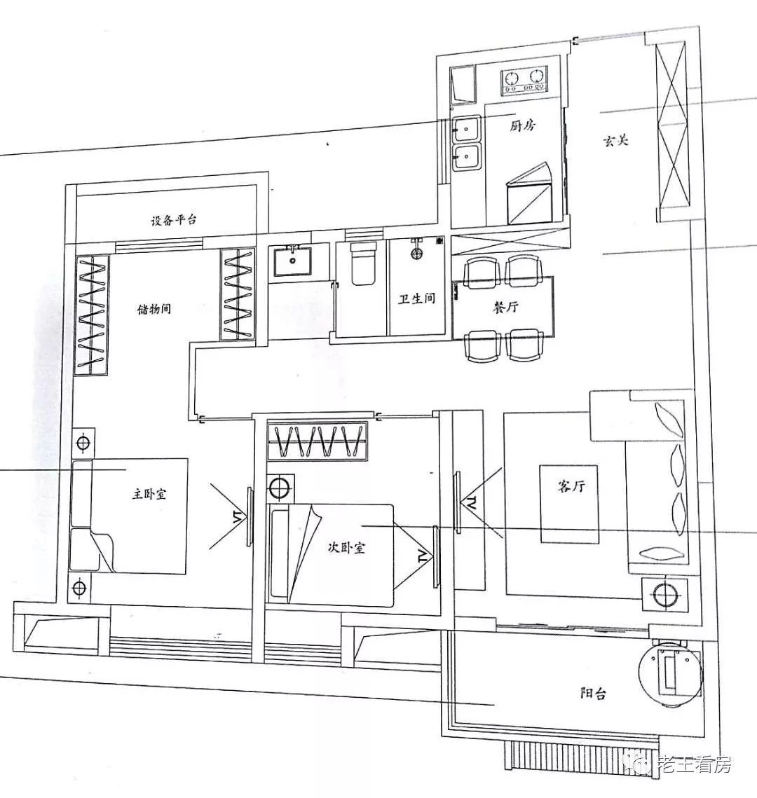
NO.4|户型设计有提升
户型设计上,皖投万科·天下艺境延用了万科原有的优势,同时进行改进和提升,主要是户型面宽变大,采光和通风得到一定改善,提升了居住舒适感。
89㎡ 三室两厅一卫:三开间朝南,但过道狭长。


拍摄图-客厅

拍摄图-主卧

拍摄图-次卧

拍摄图-卫生间
93㎡ 三室两厅一卫:南北通透,客餐厅连阳台一体,休闲空间大。

106㎡ 四室两厅一卫:阳台空间大,同样过道狭长。

122㎡ 四室两厅一卫:全明户型,书房也朝南,实在罕见。


样板房图
NO.5|园林景观 全龄段设计
万科小区景观效果一直令人称赞。皖投万科·天下艺境通过一个大公园包含多个不同功能的小公园的设计理念,以十个特色核心景观公园实现全龄化人群共享。儿童公园、900平中央公园、社区花园、宅间花园、跨代活动公园、青年活动中心、宠物乐园......
幼儿园

老年活动中心

口袋公园

NO.6| 看房总结
优势:皖投天下艺境项目处于新站区少荃湖板块,空气清新,适宜居住,交通便捷,并且主动配备共享单车停放点。精装修既环保又节省了购房者的时间和成本。

工程进度航拍图

共享单车停放点
不足:附近商业氛围弱,规划地铁离项目有一段路程。目前龙子湖路和张衡路在修建,小区距离公交站点较远。项目四周开发尚不够成熟,有一定荒凉感。
皖投万科·天下艺境在售1#和19#,分别属于高层和小高层,户型面积89—122平米,均价13700元/平米。有意在新站区购房者可以实地考察。