家的概念是什么?
家的味道又是怎样的?
保证家的基本功能的同时,
怎样让居住更加舒适和赏心?
怎么用设计创造一种新的生活方式?
这里,易尚用设计还原对于家的所有想象。
◆项目地址:襄阳保利海上五月花
◆项目面积:470㎡

离梦想与心安更进一步
本案业主为大型企业高管,夫妻二人已到知命之年,有一个远在他国留学的女儿。男主人闲暇时候好茶道,好客,喜欢以茶修身的生活方式和以茶为媒的生活礼仪。而女主人的一个偏好是喜欢养多肉植物,增加业余时间的利用,减压放松还可以养心。
在对家的要求上,业主追求户型的舒适便捷性的同时,更加关注品质和休闲,还有家整体的一个安心的感觉。

让艺术设计与落地效果在最终完美匹配
在设计师与业主充分沟通之后,在各方面达成共识,并确定了整体设计风格为新中式。我们认为,如果在最初没有确定好软装的风格样式,很多时候因为受到硬装的局限,很多软装效果会出不来,为避免软装设计和硬装设计的"脱节",设计师确定了"倒推方案",从软装开始,考察家具、灯饰、窗帘等软装搭配,然后再出整体效果图。

客餐厅效果图

客餐厅实景图

地下室改动前后布局图
地下室是业主及客人娱乐休闲的主要场所,我们设计了棋牌区、活动区、客房和卫生间等区域。地下室有一个问题是,业主希望负一层在不使用空调、新风系统的情况下也可以保证良好的通风性。于是,我们使用玻璃窗将普通的采光通风窗向上抬高了一部分,使自然风可以从侧面进入,巧妙的提高了地下室的通风效果,使得有特殊要求的男业主对设计师称赞有加。

地下室实景照

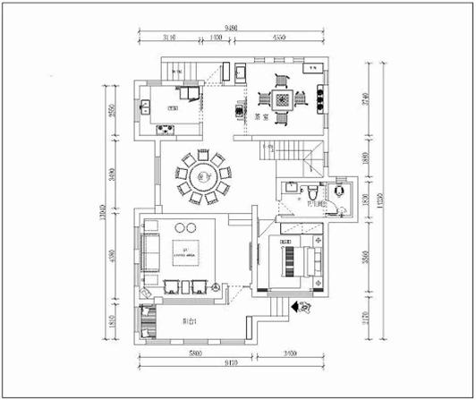
一层改动前后布局图
地上一层是一家人在一起交流最频繁的场所,也是男主人和客人品茶休闲的地方。我们设计了餐厅、客厅、厨房、茶室、老人房。
考虑到将来茶室的使用会比较频繁,因此在茶室一角也设置了清洗茶具的水池,不必再穿过走廊到厨房里。考虑到厨房门和茶室门二者的相冲,我们在厨房门正对面设计了一处小门庭,避开对冲,也增添了一个亮点。

门厅实景图

茶室实景图
餐厅是家庭中最温馨也是最团聚的场所,由于男女业主平时工作比较忙,因此舒适的氛围、方便的位置与放松的感觉是设计考虑的重点。现在,男女业主可以把在家里餐厅用餐的时间,也当做是一种放松休闲的方式了。

餐厅效果图

餐厅实景图

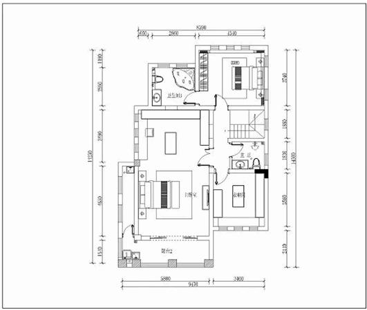
二层改造前后布局图
业主有个在外留学的女儿,但是每年还是可以回来住上一段时间。如何为她打造一个回到家就能舒心的睡上几觉、做上几个好梦的卧室也是业主比较在意的一个点。
二层主要是主卧和女儿的次卧。主卧的标配是卧室、衣帽间、主卫及书房,业主喜欢在睡前看书,还设计了一个阅读区域,和主卧相通。同时也考虑到上楼梯后进入次卧方便、次卧和卫生间出入方便,我们也将两处分别打通。

主卧效果图

主卧实景图
真正享受生活的人,天台不会用来晒衣服和堆杂物,事实上他们都会把它利用好,其实天台可以扩展出很多美观又有情趣的生活空间,例如,我们把女主人养殖多肉植物的爱好设计在了顶层露台上,充满自然气息,再给露台加一个遮阳伞或者顶棚,可以防止夏季烈日直射还可以避雨,伞下可以放置桌子和椅子,惬意地喝着周末的下午茶。

天台实景图
除此之外,在别墅防盗网的安装使用上,我们并没有在所有的地方都采用,因为只顾及到放盗防蚊的情况,必然会牺牲很多的通风性及采光效果,因此,我们在适当加强安防系统的基础上,在几个特定的位置,设置了防蚊的植物,兼顾了隔热、采光和防蚊。
正是这样一个个的细节,在不经意间,删繁就简,去伪存真,在这样的中国风之中,找到了家的本源。
设计师说
"选择一个设计师,不是看他/她说的多天花乱坠,图纸多么的丰富,而是看其作品对现的程度,也就是效果图与现场照片的对比。向现实靠近的能力也就是方案落地的能力,才是唯一重要的。"

襄阳家博易尚别墅装饰设计总监——陈锐
陈锐
家博易尚装饰“容成”设计事务所
设计总监
和谐中国“中国公益设计大奖三等奖/优秀奖”
第七届中国国际建筑装饰及设计艺术博览会
“2011-2012年度室内设计百强人物”
中国建筑装饰协会2015年度杰出设计师

家博易尚别墅装饰18年专注别墅大宅设计装修,是襄阳市首屈一指的高端装饰品牌。有文化的设计、有品质的施工、有系统的服务,体现高贵,彰显身份!欢迎预约。