
近日,由岚庭集团战略运营中心策划主办的《岚庭集团第一届家装设计双联展》活动正式拉开征稿序幕。作为家装行业首屈一指的资深代表,我们更懂得如何在设计艺术与生活需求之间寻求美与实用的平衡。以此为出发点和主旨,本次艺术展联合岚庭装饰和幸福魔方装饰两大平台、180余位专业家装设计师,共同展示艺术与生活的设计智慧。

这套位于宗申塞纳维的三层洋房,面积约180㎡,男主人是有生活阅历的成功商人,女主人是懂得品味生活的职场女皇,儿子在国外留学。生活有情调、有品质、对于品牌、材质和软装搭配的重视程度,远远超过对复杂造型设计的青睐。
楼盘:申塞纳维洋房
户型:180㎡
风格:简欧风格
设计师:刘贤洋
设计要求
需要 :居家,周末可以邀约朋友到家小聚,有质感,需要自己的休闲时光。
主题:流金岁月。要质感但不浮夸,要简练但不失精致,要大气但不失温馨。
风格:简欧
材质:微晶石砖,水曲柳面板,墙纸,水晶灯
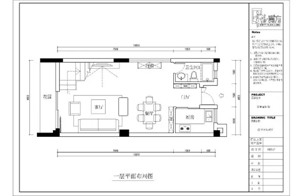
一层为客餐厅区域,金色皮质沙发配精致银色雕花与浮雕墙纸遥相呼应,墙面简洁的线条衬托出水晶灯华丽多彩,实木扶手纹路是主人品味生活的见证。

【岚庭幸福魔方装饰】申塞纳维洋房180㎡简欧风格装修案例

【岚庭幸福魔方装饰】申塞纳维洋房180㎡简欧风格装修案例

【岚庭幸福魔方装饰】申塞纳维洋房180㎡简欧风格装修案例

【岚庭幸福魔方装饰】申塞纳维洋房180㎡简欧风格装修案例

【岚庭幸福魔方装饰】申塞纳维洋房180㎡简欧风格装修案例

【岚庭幸福魔方装饰】申塞纳维洋房180㎡简欧风格装修案例

二层为书房和次卧,次卧墙纸与窗帘反应小主人正青春飞扬。书房白得纯净,是主人读心的地方。

【岚庭幸福魔方装饰】申塞纳维洋房180㎡简欧风格装修案例

【岚庭幸福魔方装饰】申塞纳维洋房180㎡简欧风格装修案例


【岚庭幸福魔方装饰】申塞纳维洋房180㎡简欧风格装修案例
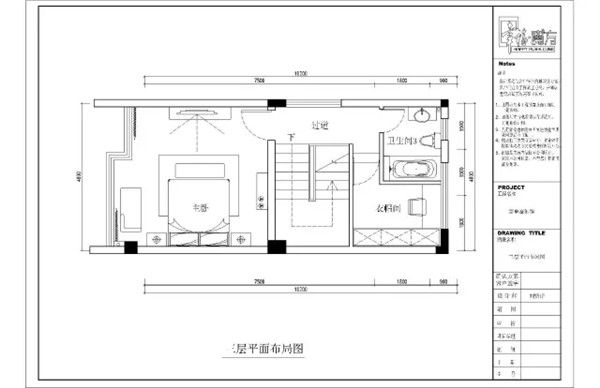
3楼整层都是主人的生活空间:超大的主卧及采光顶面,带浴缸的卫生间,采光通风很好的独立衣帽间。惬意生活悠然而生。

【岚庭幸福魔方装饰】申塞纳维洋房180㎡简欧风格装修案例

【岚庭幸福魔方装饰】申塞纳维洋房180㎡简欧风格装修案例

【岚庭幸福魔方装饰】申塞纳维洋房180㎡简欧风格装修案例

【岚庭幸福魔方装饰】申塞纳维洋房180㎡简欧风格装修案例

主卧的水曲柳采光吊顶及达到1.5米宽的楼梯是亮点,在有限的面积内不会显得局促拥堵。整个色调淡雅,装饰画精致,反应主人家从容的生活态度。

【岚庭幸福魔方装饰】申塞纳维洋房180㎡简欧风格装修案例

【岚庭幸福魔方装饰】申塞纳维洋房180㎡简欧风格装修案例

【岚庭幸福魔方装饰】申塞纳维洋房180㎡简欧风格装修案例

【岚庭幸福魔方装饰】申塞纳维洋房180㎡简欧风格装修案例

【岚庭幸福魔方装饰】申塞纳维洋房180㎡简欧风格装修案例
本期设计师

姓名:刘贤洋
毕业院校:成都理工大学
从业资质:11年
设计风格:现代、混搭、欧式、中式、新古典
设计理念:创新是设计师天职
参展宣言:被认可是一种快乐,出作品是一种责任,出好作品是一种追求
幸福魔方装饰
从幸福魔方成立之初,就提倡“装修比买菜更简单”
以一口价的消费理念满足客户的个性化需求。
我们倡导品质健康的生活方式。从每一个细节开始,轻松搞定装修。 更多企业及产品资讯,请随时关注(幸福魔方:zsxfmf)微信