
//家的故事
信任是源于日积月累的相处。本案是业主陈先生在盛一装修的第二套房子了。谈及之前那次装修,陈先生对采访的羊小编竖起了大拇指。设计师张工是盛一资历最老的设计师,做事认真负责,处处从业主的角度考虑,为他解决了不少难题。整个装修过程陈先生基本没怎么操过心,几个验收节点过来和主管、管工碰一下头就OK了,这样的全包装修品质很符合陈先生这样工作繁忙的白领的装修理念。
这次陈先生需要装修的房子是一套典型的上海老公房。面积小,约50平左右。设施老化,建造工艺差,墙壁、地面、天花板破旧不堪,坑坑洼洼。房型差,入户只有一个过道厅,无法承担小户型客餐厅的职责。
对于本案,就和羊小编一起来看看盛一的设计师张工这次是怎么妙手回春的吧!
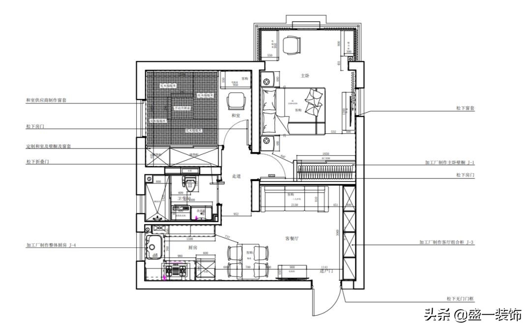
//户型图


面积:50㎡
房型:2室1厅
业主:陈先生
风格:现代简约
设计师:张永权
客餐厅



▲改造的房子结构很差,地面坑坑洼洼、天花板也裂的很厉害,设计师通过局部吊顶、地面水泥砂浆找平等方式把问题都解决了。
原本的厅只能算一个过道厅,通过向主卧“借取”空间并经过一番布局设计后,现在陈先生拥有了一个真正意义上的客厅。
进门右侧是盛一合作加工厂定制的客厅组合柜,并设计有一个换鞋凳,换鞋挂衣服十分便利,极具收纳功能。东洋之花的地板与客餐厅家具相得益彰。


▲陈先生家的厨房是开放式的,为了夏天烧饭能够凉快一点,客厅装个一个一拖一的中央空调管辖厨房及客餐厅区域。由于厅的面积原因就不考虑一拖三啦,其他房间配置的则均是挂壁式空调。
厨房



▲原木风总是那么扣人心弦,陈先生对日本文化颇有研究,简约的日式厨房正是他的心头好。设计师设计的这款浅色厨房,原木色与白色的结合使整个空间看起来充满了小清新的感觉,让身处厨房的人时刻感受到大自然纯净的视觉享受。
看似狭小却实用的U型厨房明确划分了功能区域,打造出三角工作区让空间得到充分的利用,恰到好处地展现出流畅的线条美。配合嵌入式烤箱及厨房上方的整体吊柜创造了大量的实用及储存空间。


▲开放式的厨房设计,美观、采光好,但不可避免的会让人担心油烟问题。装普通移门?略显压抑。陈先生和设计师商量决定在厨房外侧使用日本品牌立川的折叠门。一旦油烟较大,可以拉上隔除油烟,折叠门优越的防油污性能将大大减少清洁烦恼。
卫生间




▲卫生间的总宽度只有1米3左右,要容纳马桶、洗衣机、镜柜等产品,当中的走道就更狭窄了,对设计要求很高。为了便于陈先生进出,设计师为他配置了挂壁式马桶,省下了大约有20多公分的行动空间。
挂壁式马桶所占空间小,对于老房这种面积小的卫生间,可以让空间更辽阔。如果马桶移位,可以用它避免地面抬高。它的水箱藏在墙中,水流声音小,没有太多冲水噪音。比起落地式马桶,挂壁式马桶容易清洁,不容易留卫生死角。


▲家中其实有很多角落都可以通过设计让它们成为实用的收纳空间,还能除去很多卫生死角。
陈先生家的卫生间很小,因此门旁的空间也可以利用起来。选择适合的开门方式,能够避免使用时的不便。松下的折叠门与普通的推拉门相比占用的地方很少,因此可以不用考虑镜柜宽度以及墙壁收纳对门开合的影响,空间受限的业主可以选择。
卧室




▲卧室由于改造时把墙体内移将部分空间借给了客餐厅,导致活动空间不足怎么办?
设计师给出了这样的解决方案:敲掉了阳台的半墙,将阳台的空间并入卧室。这样主卧的面积就一点没有变少,而且还让空间变得更为整体及便利。晚上睡觉时把阳台的窗帘一拉,私密又安静。


▲根据陈先生的需要,盛一合作的加工厂为其定制的衣柜。白色衣柜简洁,干净,视觉上创造一种开放空间的感觉,契合整个卧室的风格。
和室





▲次卧采用了榻榻米和室的形式,和式空间追求的是一种放松的生活姿态,不管是设计还是造型都充满了和风。一组大型的储物柜,可以将坐垫、茶几或其他杂物都收纳其中,极大的增强了储物功能。而考虑到未来的孩子需要休闲空间、朋友们来做客以及陈先生的父母有时会来探望这三方面。家中设计一个榻榻米更是尤为重要。
榻榻米在需要的时候可以作为书房、可以作为客卧、也可以作为一个休闲娱乐的场所。这样一间清爽雅致又多功能的和室空间,谁不喜欢呢?
羊小编的话

老公房,在户型以及整体空间面积上都不是特别理想,年久之后就会出现各种问题,为了让居住更加舒心,就需要专业的装修公司对其进行二次改造。盛一拥有丰富的老房改造经验,如果您也有类似的房子需要装修,请毫不犹豫的来找我们~

(如果对我们有什么建议或者想看哪方面的装修知识欢迎大家在留言板踊跃发言,也许下期的主题就因你而定哦~咨询装修请点击阅读原文)
盛联盛一装饰有限公司
地址:茂名南路205号瑞金大厦辅楼F603室
地铁:1/10/12号线陕西南路站
公交:96、786路等均可抵达
停车指南:瑞金大厦辅楼2-5层 免费停车