
有些东西,
并不是越浓越好,
要恰到好处。
深深的话我们浅浅地说,
长长的路我们慢慢地走。
——《恰到好处的幸福》

1、将书房和客厅打通形成一个整体,书房、客厅留双通道,可以让在空间中跑动的孩子不用折返,让空间有趣味。2、把原本的一个卧室设计成儿童娱乐室,两个小孩玩耍学习的地方。3、充分利用过道,墙体增加收纳柜,储物功能齐全,满足业主储物需求。
|生活,就是要取悦自己|

中灰色棉麻沙发,色泽沉稳不失大气,气质庄重而含蓄,纤细铁质置物架搭配,冷硬凛然,一刚一柔的艺术契合,后现代简约落地灯设计,新颖独特,为家人带来温馨的氛围。

中花白大理石圆形茶几,温润的大理石,多变的花纹,搭配黑色不锈钢材质几脚,形成冷峻而不失温暖的格调。

真皮单椅,秋橘配色,低调优雅,如贵公子般风度翩翩,随遇而安,随心随性,这是对生活品味的极致表达。
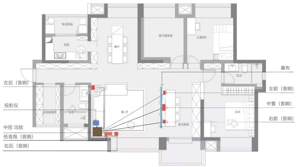
视听布置

p:家庭影院~
隔断布置
客厅是由书房和客厅打通而成,为了不使空间显得空旷单调,用一面特色储物墙代替传统的电视柜,既有装饰收纳之用,又有隔断两个空间之意。大理石外框,嵌入原木立体收纳柜,设计细微之处独具匠心。

开放式书房,动线合理,大书桌爸爸可以加班画图,空闲也可以带着小朋友一起做手工,增加亲子互动空间,趣味十足,温馨自然。倚墙合理规划打造安装了一整面顶天立地柜,满足全家人的储物之需。

|见证每个日常的幸福|

餐厅的一大亮点设计:设计了整面的照片展示墙,每个独立的区域摆满了一家人旅游过的不同地方、不同阶段的照片,独具匠心的创意装点,营造出一片多彩旖旎的世界,还原了一个完美的家居空间。

p:黑框门后就是厨房啦~
厨房和餐厅隔断设计成工艺品展示柜,摆放收藏的工艺成品,极大的满足了日常物品的摆放要求,既美观又实用。
|原野,自在畅想|

现代简约实木床,棉麻靠背,舒适透气,大气沉稳不失活泼,原木北欧调,向往自然质朴的生活,在自然怀抱里找寻内心的安定。搞怪趣味的黑猩猩装饰挂画,个性十足,轻松自在,给家带去不一样的感官体验。
|少女的梦幻城堡|

在色彩的搭配上,选用的是粉红、淡蓝色,活泼鲜艳,简洁明快,具有童话的意境。室内光线充足,简单实用的书桌和储物柜,让儿童在自己的小天地里自由的学习生活。

P:娱乐室
大面积采光窗户,简单精致符合儿童身高的家具,充足的活动空间,在设计上充分的考虑到了安全性、合理性、健康性的搭配原理。

洗脸柜设计
普通洗脸柜高度不符合大人及孩子的身高,而且台面下一般为平开门,整体镂空,不利于物品分类收纳。在本方案中:1、根据大人身高在台面下设计了一个落地抽,拉出可以让孩子在上面洗漱,下面还可以放置日常物品;2、避开下水盆及落水管的位置,柜体设计根据常用、不常用物品来安排卫生间收纳;3、在镜柜下设计灯带,光线柔和,自然打到脸上,美好的一天从这里开始。

p:底部抽屉可供小孩洗漱使用
小孩可以自主使用,方便美观,细心的考虑,人性的设计;卫生间干湿分离,在讲究空间动线流畅及向光性的同时,注重空间形式感,赋予空间新的灵感重塑。

在这个车水马龙的城市里,设计出让心灵平静的空间,能从生活各个角度找到幸福。阳光不经意间洒在窗台,眼前的美好跃然展示,无须刻意的繁琐,回归初心,把复杂的生活简单化。
设计:欢乐佳园装饰

推荐一个超赞的微信公众号:绘本家居