
建设地点 广东惠州
图纸编号 1704
尺 寸 面宽 34.3米 进深 57.9米
建筑面积 2094.0㎡
项目概况

△总平面示意图
基地情况:
东:空旷场地
西:空旷场地
南:空旷场地
北:空旷场地

△场地情况
项目简介:
业主在项目前期希望设置多个近200m²的大套房等多功能空间;在立面造型上,业主偏爱传统中式风格,并希望整体造型融入周围景观环境。设计师根据场地情况,及业主的需求和喜好,将项目形式确定为中式四合院。
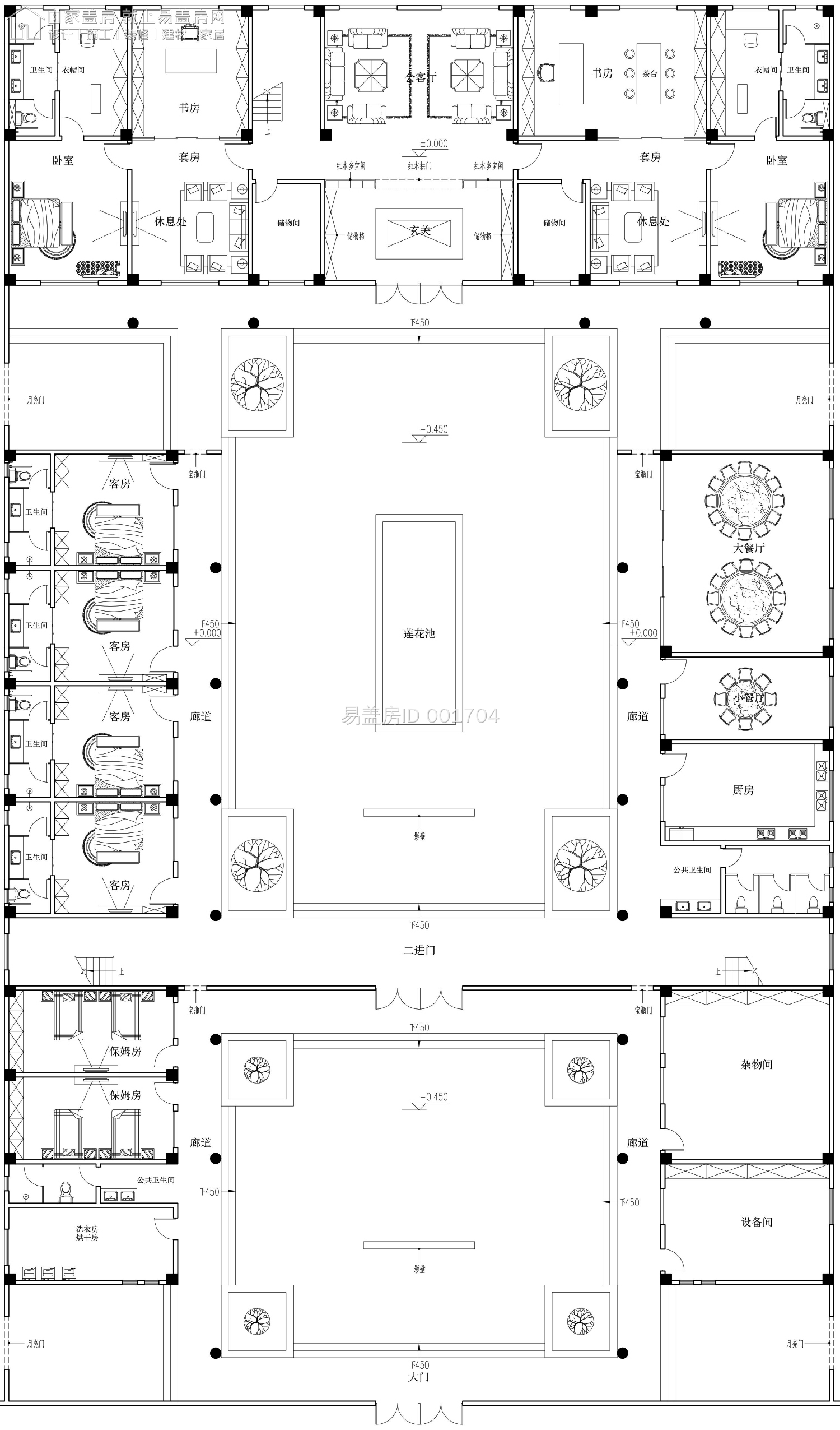
平面布局
户型概况:
2层 / 12室 7厅 13卫 1厨 4衣帽 4储藏 1杂物 1设备 1洗衣房 2茶区 1茶室 3书房 1健身房 1KTV室 1藏酒区 1品酒室 2露台

△一层平面图
平面功能分区明确,倒座房为客用储备空间,设置两间保姆房搭配杂物、设备和洗衣房使用。东厢房为餐厨空间,预留了双餐厅设计;西厢房为4间客卧套房,以满足逢年过节的待客需求。
正房正中玄关与大会客厅相邻,东、西两侧空间均为套房形式,分别为业主自家使用空间。为了方便老人日常生活,在父母所在套房布置有起居室和茶台区。同时,房间内开阔空间也方便老人走动。

△二层平面图
整层空间以娱乐休闲为主,主房中部增设健身房,东厢房设置了KTV影音室、藏酒区和品酒室;南侧的露台提供观景视角,也提供了足够的休闲空间,使得建筑在满足实用性的前提下,整体造型更加均衡和美观。
造型设计

△西南侧效果图

△东南侧效果图
项目整体为中式四合院,立面造型以经典的白墙灰瓦作为主要元素,搭配木材质装饰,让整体展现出独有的复古韵味之感。

△鸟瞰图

△东北侧效果图
建筑东、西立面与庭院连接部分选择月亮门,家和、团圆的美好寓意与精致美观的造型相结合。

△主立面效果图

△局部效果图
露台采用木材铺贴地坪,内部的庭院空间则采用石材铺贴地面,搭配绿色植被景观,使得整体氛围更具大自然的温馨气息。

△庭院效果图

△庭院效果图
倒座房前的影壁可作为天然屏幕,在夏季的傍晚,听着远处绿植与风声交流,放松且惬意。

△庭院效果图

△庭院效果图
设计师采用二进院设计,一进院主要作为公共空间,中部增设影壁、假山等中式元素,提升整个部分的中式氛围。二进院中部增设水景,提升居住者的体验感。

△东立面图

△西立面图

△南立面图

△北立面图