
Rodolfo Cañas extends "oversized skylight" from Mogro House in Chile由专筑网小R,王雪纯编译智利建筑师Rodolfo Cañas在圣地亚哥为其家人设计建造了这座住宅,其最鲜明的特征是屋面上的不锈钢巨型天窗。A stainless steel volume topped by a skylight protrudes from this house in Santiago, which Chilean architect Rodolfo Cañas has completed for his family.

这座建筑由此被称为“天窗住宅”,其天窗从建筑的上部向外延伸。细长的体量上覆盖着不锈钢面板,让光线通过上部的大型开口进入到建筑的内部,室内设一座黑色钢楼梯,让住户可以通过此去往屋面。这也是人们在街道上唯一能够看到的建筑部分。The residence is nicknamed Skylight House after the extension that peeks out above the house. Clad in stainless steel panels, the slender volume lets light in through a large opening at the top, and contains a black steel staircase inside that leads up to the roof.This is the only part of the home visible from the surrounding streets.

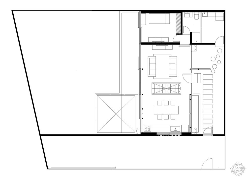
Rodolfo Cañas说:“只有通过天窗才能看到建筑内部的活动。”这座建筑的地面层两侧都环绕着玻璃幕墙,前侧是一面黑色的高墙,这面墙体贯穿了整座建筑。这座住宅的另一个名字是“Mogro”,意指建筑所在的圣地亚哥社区,即“Montenegro”。"Only one oversized skylight gives a glimpse of what could be happening inside," said a project description from Rodolfo Cañas.The ground floor of the home, which is enclosed on its two long sides with floor-to-ceiling glass, is hidden behind a tall black wall that runs the entire length of the property. Another name for the house, Casa Mogro, is a contraction of the Santiago neighbourhood in which it is located, called Montenegro.

这座住宅于2018年完工,其中地面层和地下层分别有一间卧室。Cañas曾经也希望再扩建一个楼层,但是出于经济原因并没有实施。Cañas说:“这座建筑的当前状态是最终项目版本的三分之二。”Completed in 2018, the minimal home encompasses two bedrooms laid out on the ground level and in the basement. Cañas is also interested in the possibility of building another storey above the ground floor, but wanted to wait, to save on costs."This house is two thirds of a final project that is not necessarily going to be completed," according to Cañas.

这座建筑目前并没有扩建的计划,但是其现有的混凝土面板屋面已经能够承担多一个楼层的荷载。在落成的实际建筑中,屋面主要用作露台。Although no expansion is currently planned, the thick concrete slab that forms the roof of the home was designed to be able to support the weight of another storey above it. In its current form, this surface acts as an expansive rooftop terrace.

Cañas说:“原设计方案还剩三分之一并没有实施——那就是建筑露台。”主卧套房位于建筑的下部楼层,通过院落来保持光线的充足,同时也减少了外部的影响,保障了使用者的隐私。客户的卧室和浴室都能够通过滑动门面向外部的空间开放。"It has an elevated terrace and eventually could be the place of the missing third of the house," Cañas explained in a project description.A master suite occupies the lower level, and gets plenty of light through a sunken courtyard, while protecting the occupants from prying eyes. The owner's bedroom and bathroom can both open onto this sheltered outdoor space via floor-to-ceiling sliding doors.



在楼上,开放式厨房和餐厅通过金属楼梯与起居室分隔开。地面层完全面向建筑前侧与后侧的花园开放,建筑师认为,这种布局就如同一座被透明房子围合的室内花园。另一间卧室和浴室位于住宅的末端,对面是厨房。Upstairs, the open kitchen and dining area are separated from the living room by a floating metal staircase that leads up to the roof. The ground floor is designed to fully open to the home's front and rear gardens, a layout that the architect describes as "an interior garden with a transparent house sheltered inside of it".Another bedroom and bathroom anchor the end of the home, across from the kitchen.

在整座住宅中,单色家具和裸露混凝土面板、钢材完美地结合在一起。近期在智利的类似项目有由Alvano y Riquelme Architects事务所设计的住宅,这座住宅的外部空间面积甚至大于内部空间,另外还有一座谷仓,这座建筑的采光主要来源于屋面的雕塑天窗。摄影:Aryeh KornfeldThroughout the home, monochrome furniture complements the palette of exposed concrete and steel.Other recent projects completed in Chile include a home with more exterior space than interior area by Alvano y Riquelme Architects, and a barn that brings in light through a sculptural skylight in the roof.Photography is by Aryeh Kornfeld.







【专筑网版权与免责声明】:本网站注明“来源:专筑网”的所有内容版权属专筑网所有,如需转载,请注明出处