
春风地产隶属于春风集团,集团下有春风动力、春风贸易、春风商管、春润物业、春风地产等企业。
春风与辰项目位于重庆九龙坡彩云湖休闲宜居版块核芯地段,携手众多国际一线团队,打造春风最新人居力作——春风与辰,让彩云湖真正回归改善时代。项目用地面积约2.4万方,总建筑体量约8.8万方,容积率2.6,绿化率约30%,借鉴了国际一线的度假酒店园林风格,打造彩云湖墅级艺术作品,采用“一环一轴八主题”的园林布局,为高端人士定制质感生活。

考察了众多国际一线的度假造园造景之法,结合住宅楼群分布特点,精心设计每一寸土地的风景视角,打造以“JING享拾光”为主题的一环一轴八主题的国际度假园林,兼顾观赏性和参与性。八主题:绿意水光园、奇趣童乐园、星空游泳池、悬浮绿荫台、林下会客厅、城市观景台、阳光运动场、漫享会客厅。
在春风与辰这个项目上,春风地产邀请国际一线的合作方来做“高端定制”:建筑正象、建筑规划天华、园林美溪景观、架空层泛会所设计厚朴、精装设计上海逸蝶、情景样板房设计汉敦 HWCD等。

项目团队在考察了国内国外多个高品质度假项目后,花了很长的时间进行产品研发,光建筑方案就经历了12次颠覆性调整;而精装产品设计更是考虑了60多种不同的生活方式和生活场景。
这些国际一线的大师团队,每一位设计师专家都投入了全部精力,奉献出了过往十余年甚至是几十年的经验与热情。

总面积约2200㎡的3.0全龄段架空层泛会所,挑高5.7米,设计四大空间,九大功能包括:奇趣成长园、邻里会客厅、青年派对客厅、共享书屋、动感活力场、解压瑜伽室、四点半学堂、善居休闲室和假日剧场等。
项目容积率为2.6,总建筑面积6.2万平方米左右,业态的最佳选择,布局的最优解是规划的核心问题。设计前期结合业态选择进行了大量的规划研究,高层、小高层、洋房、别墅业态多维组合排布、排查和选择。最终,结合规划条件及总图排布肌理研究,货值的反复测算,50%占比装配式等要求与要素,总图业态锁定在高层住宅50%,创新叠院40%,小高层10%。

规划草图©ZEN

规划多方向研究©ZEN
地产住宅设计需要精耕细作 感性和理性的平衡 从来都不简单
好的地产住宅项目是货值和情怀的有效平衡,设计排布与营销定位是螺旋交替关系,一个是结果端,一个是实现端,相互影响相互制约,地产设计项目需要即叫座又叫卖,好的总图布局是二者的完美解题、最佳平衡。

总平面图©ZEN
项目用地北侧为城市干道,有一定的噪音干扰,东西两侧为老旧小区,南侧为生活界面。故项目主要出入口规划在用地南侧,便于社区生活;高层远离干道布局,规避一定的不利因素;高层和小高层利用周边现状建筑的错位关系,带来开阔的视野;多、低层设置在开阔界面,形成组团;北侧则选用户型99平方米构成的单朝向楼型避免噪音干扰。

规划分析图©ZEN
用地的不规则性为规划布局的独特性提供了契机。顺应边界,将塔楼沿东侧和南侧布置,在尽可能节约退居的前提下,为低密核心区留下足够的空间,寻找场地轴线的同时,回应城市肌理、界面及空间。一轴一环的规划布局,轴线礼序,视野开阔,点板结合,高低错落,在整体不对称的格局中局部对称,使规划形制自由舒展,又暗含古典审美逻辑。

沿街手绘图©ZEN
北侧为城市开敞界面,过往车辆比较多,经过与春风以及政府协调,项目将北侧20米宽的城市绿带纳入到设计中一并打造,270米界面满满种着郁郁葱葱的树木,建筑掩映在其后,为项目增加绿化面积的同时提升了城市形象。

沿街手绘图©ZEN
春风与辰择城芯主脉而立,进一步繁华便捷,退一步宁谧美好,规划完善的配套、恰到好处的距离、诗意韵染的园区,深度诠释了春风的初心和价值所在,亦再一次惊艳世界。


雕琢光阴的轮廓线,春风与辰定制研发建筑立面,以对点线面的精准把握,塑造建筑的高端气质与高级美感,敬献自由舒展的国际度假风建筑。

作为迭新之作,在建筑风格上,春风与辰采用现 代度假风,致敬世界顶级度假建筑设计一 Marchwiel (马赫威埃尔)度假山庄,建筑外形 比例遵从黄金分割比的设计理念,展现传统审 美与现代科学结合的匠心魅力,建筑整体气质 蕴含高级美感、大气优雅。



在立面设计上,采用大比例开窗面和宽幕阳台, 双层中空Low・E玻璃,外形上形成无限延伸的 大气感,成就独特的建筑光学立面。色彩上采用 暖白色调为主,以木色为辅;局部点缀木格栅, 其特有的温暖和优雅,简约而不简单,将国际度式建筑风格更好的呈现。

设计了极具仪式感的地上、地下双重归家动线。实现车库和一楼双精装大堂,车库CQ检测系统,不同人群都能享受到品质归家体验。

人车分流、差异化归家......春风与辰深谙各类人群归家需求,精研更合理、更尊贵的归家动线,让每一次归家,都拥有满满的仪式感。

以自然为贵胄,以艺术为点缀,春风与辰营造一环一轴八主题园林盛景,实现有诗有茶、有园有景的大美栖居逸境。
受限于场地边界的不规则性和周边复杂环境的影响,春风与辰的户型设计采用全定制研发,无论建筑朝向,户型资源分配,以及楼型选择等,都与总图紧密联系又相辅相成,让每一套房子都有自己明确的亮点与特点。
每个地块都有属于自己的布局和产品,产品研发是一个无止境的过程。建筑高度80米,实际容积率2.6,合理用场地边界,定制楼型,项目多低层占比高达40%,共推出四类定制产品:
高层宅邸
面积集约更注重功能性,更在有限的面宽下拥有更多的景观面;

T4标准层平面图 全面宽布局©ZEN
平层洋房
阔景阳台,超宽视野,南北通透,空间方正舒适,四房产品功能齐全;

T2 99㎡洋房 一层平面图©ZEN

T2 99㎡洋房 二层平面图©ZEN

T2 99㎡洋房 标准层平面图©ZEN

T2 99㎡洋房 体量示意图©ZEN
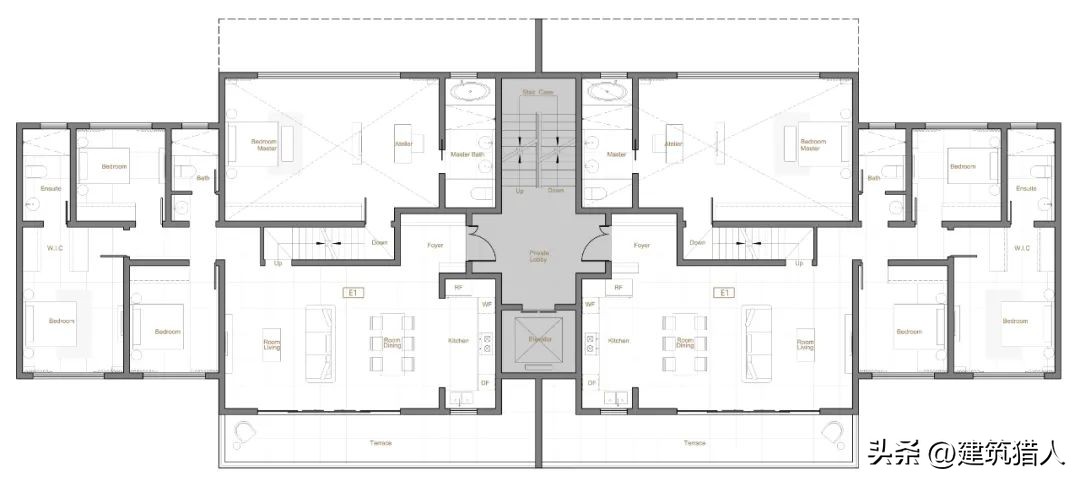
跃境叠墅
位居地块价值核心位置,双面景观资源加持,更有挑空赠送,每个房间均有足够舒适的尺度。

T2 128㎡叠院 跃下层平面图©ZEN

T2 128㎡叠院 跃上下层平面图©ZEN

T2 128㎡叠院 生成示意图©ZEN

T2 128㎡叠院 过程研究平面图©ZEN