对于“家”的设计
每一处设定,每一块材质
都包涵对生活轨迹思考
让你更爱生活的房子
才是一个好的家
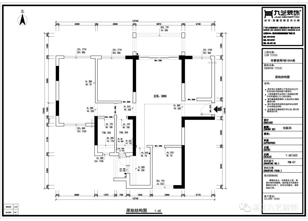
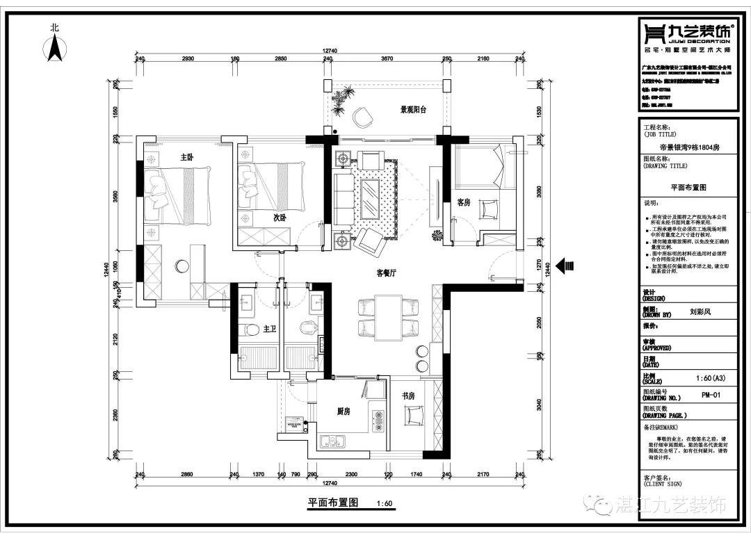
项目城市:广东·湛江
项目名称:帝景银湾
项目面积:110平方
设计风格:轻奢现代风格
设计理念: 设计所表达的,是一种感受、一种心态、一种舒适的、开心的生活方式。在轻奢与现代结合中,将功能与美感和谐的统一在一起,实现简单精致家居生活。


这个家,没有气势磅礴的华彩乐章,却用循序渐进的设计语言,汇聚成自然舒缓的旋律,为生活蓄积温柔的抚慰力量!家,是日常生活的地方,是能静下心舒展自己的地方,是用心去拥抱的地方。

空间动静分离,巧妙布局,既保证功能实用性,又具有互动,沟通性,很好的体现了功能与美学的平衡。引自然入空间,创造了一种情绪化的抽象形式,将色彩、形状、平衡、深度、构成、尺度、触感等形式因素的重新解读。

精致的线条、和谐的色彩以及顶尖的材质,碰撞出独特的感官冲击力。巧用玻璃镜面反射,带来更为开阔的用餐体验,让视觉无限延伸。水晶质感的吊灯,细节的装饰更能表达屋主优雅气质。

卧室最能体现主人的生活状态,与常规格局不同,整个空间以一种贯通式的布局形式展现在人们面前,也体现了主人追求自由,不受拘束的个性。家具和装饰挂件也选用了现代元素相的特质,简约又独特。

如果说客厅是家里的脸面,那卫生间就是自己的里子。设计师利用自然和谐的大理石纹理效果,优雅大气,地面和墙面材质相统一,达到整个空间的延展性。
把淋浴墙面独立出来,突出空间的独立性,卫生间采用全透明玻璃设计,既做了干湿分离,又透出大理石的天然纹路,尽显奢华本质。梳妆台设计简单,更显得干净整洁。
随着人们生活节奏和工作节奏的加快
我们越来越希望
有一个简单的地方能放松身心让自己慢下来
家就是首选
家,是温馨的,是有爱的
也应该是一个灵魂的栖息地