项目地址:汇通太古城
建筑面积:130平米
装修风格:现代简约风格
设计说明:本案女主人,喜欢简约时尚的生活格调,色彩喜欢明丽鲜亮,所以本案围绕现代简单为基础,三口居住之家,以简洁明快的设计体现出了现代社会生活的精致与个性,符合现代人的生活品位。

▲客厅以几何造形为辅,体现材质感为主,打造一个整洁、时尚的空间。

▲花朵的壁纸,让沙发墙装饰更为丰富,暗色的花朵,不显张扬,让空间更为活泼!

▲客餐厅多采用米色色调,温馨舒适,空间规划以实用为主!

▲餐厅上方的弧形吊顶,区别于其它空间,刚柔并济更显空间柔和唯美。

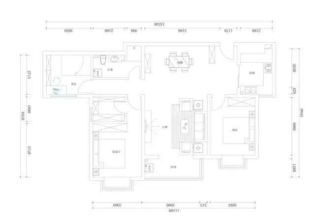
▲平面布局方案
喜欢以上作品,请关注【城市人家装饰】,为大家带来更多精彩案例!
如果您是西安的业主,请在【评论】中留言,了解装修xiancsrjzs,我们会第一时间为您和您取的联系。
如果您喜欢这篇文章欢迎收藏、转载。用时随时能找到,也可以分享给您的朋友!