装修预算Budget
总预算¥17万
毕业照Photos
![[日志]小两口的甜蜜婚房苏州3室2厅1厨1卫](https://cdn.hamiltonhmartha157.workers.dev/origin/7fa00064b57b0544289.jpg)
进门客厅。
![[日志]小两口的甜蜜婚房苏州3室2厅1厨1卫](https://cdn.khatunraisa900.workers.dev/origin/7fc000650d984e80f0c.jpg)
阳台。
![[日志]小两口的甜蜜婚房苏州3室2厅1厨1卫](https://cdn.afieakhtn.workers.dev/origin/7f900064cbe01f0f3f9.jpg)
餐厅。
![[日志]小两口的甜蜜婚房苏州3室2厅1厨1卫](https://cdn.zdzzes.workers.dev/origin/7fa00064b5998068160.jpg)
厨房。
![[日志]小两口的甜蜜婚房苏州3室2厅1厨1卫](https://cdn.resistlatasha.workers.dev/origin/7fa00064b58bbba9c16.jpg)
干湿区。
![[日志]小两口的甜蜜婚房苏州3室2厅1厨1卫](https://cdn.perryykatherine68.workers.dev/origin/7fd00064f442828b48e.jpg)
次卧。
![[日志]小两口的甜蜜婚房苏州3室2厅1厨1卫](https://cdn.gaylordvicky.workers.dev/origin/7f900064cbfc02f7a81.jpg)
主卧。
装修过程
Process
2011.03.03 准备阶段
房子买了2年多了,今年要结婚了,装修的事情提上日程。
看材料的准备从去年就开始了~自己做地板的,所以对于木头的东西还是很了解的,但瓷砖和洁具就不懂了~空了就在市场上看款式,进行对比!反正货比三家不吃亏,嘿嘿。
今年主材涨价时一个趋势,春节一过赶紧就过来把主材先订好~
装修本来考虑自己做,但是大家上班没有时间和精力去花费在一根水管或者一个钉子上。幸好朋友做装潢的就请他帮忙半包给他了,我们需要做的订好主材就可以了。这样省心不少~
开工日子订在3月6日。那天正是我们老板看好的黄道吉日,也是我们做活动的收关之日~!在一连串鞭炮“噼里啪啦”响完之后~嘟嘟冲的小窝开工啦~!!!!!
2011.03.04 准备阶段
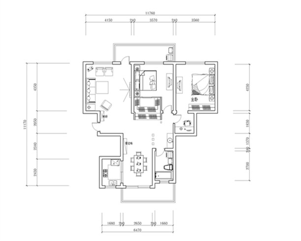
![[日志]小两口的甜蜜婚房苏州3室2厅1厨1卫](https://cdn.beverlytuckerg139.workers.dev/origin/7fc000650dad7d1266f.jpg)
平面图先上,有没有TX和我家房型一样滴。
2011.03.06 水电阶段
![[日志]小两口的甜蜜婚房苏州3室2厅1厨1卫](https://cdn.shnavhscbs.workers.dev/origin/7f900064cc0effed7f7.jpg)
今天开工放的鞭炮。
2011.03.12 水电阶段
三天没有去工地上看了,一直忙的呀,今天喝完朋友儿子的满月酒,和老公火急火燎的赶往施工现场,真希望看到这三天的变化,进门。。。
2011.03.12 水电阶段
![[日志]小两口的甜蜜婚房苏州3室2厅1厨1卫](https://cdn.gaylordvicky.workers.dev/origin/7fc000650db25c18865.jpg)
开槽排电线。
2011.03.12 水电阶段
![[日志]小两口的甜蜜婚房苏州3室2厅1厨1卫](https://cdn.gaylordvicky.workers.dev/origin/7fb0006509cd17a4afb.jpg)
水管从顶上走,哈哈。
2011.03.12 水电阶段
![[日志]小两口的甜蜜婚房苏州3室2厅1厨1卫](https://cdn.estradaganna599.workers.dev/origin/7fa00064b5add988a73.jpg)
垃圾都很整洁的扫在了蛇皮袋里,不错。交作业了~嘎嘎!
2011.03.16 水电阶段
![[日志]小两口的甜蜜婚房苏州3室2厅1厨1卫](https://cdn.hadnvahdfnab.workers.dev/origin/7fd00064f45322cd6f3.jpg)
今天去房子里看了下,水电排的差不多了~
2011.03.16 水电阶段
![[日志]小两口的甜蜜婚房苏州3室2厅1厨1卫](https://cdn.afieakhtn.workers.dev/origin/7fb0006509ed8416bde.jpg)
其他我也不太懂,看上去还是蛮不错的!懂的给我建议一下。
2011.03.16 水电阶段
![[日志]小两口的甜蜜婚房苏州3室2厅1厨1卫](https://cdn.perryykatherine68.workers.dev/origin/7fc000650dc16129ab3.jpg)
今天瓷砖也都送到了!
2011.03.16 水电阶段
谢谢吴总给我安排的好好的,没让*操我**心!晚上去看了下整整齐齐的堆放着,不错,很期待贴砖完毕的感觉。明天要上水泥黄沙,砖估计在18号左右开始贴。
2011.03.16 水电阶段
![[日志]小两口的甜蜜婚房苏州3室2厅1厨1卫](https://cdn.hadhaahjvau.workers.dev/origin/7fc000650dd4e0db01e.jpg)
后阳台用价美物廉的仿古砖,很期待装好了的样子。
2011.03.18 水电阶段
先说说装修开工以来到现在已经12天了,水电工明天还有最后一天就结束了!
昌硕装饰的朋友真的很帮忙。认识这么帮忙的朋友真的是我三生有幸,让我省心不少,基本没有操心,隔三岔五的晚上去看看,那活干的真是清爽带劲,希望之后的工作都会顺下去。
再谢谢丹丽张老板,德美吴帅哥等帮助我的商家。谢谢你们的看在我的面子上给我的超级给力价!非常感谢你们,我嘟嘟会记得。
好了,话不多说,上PP了哦... ...
2011.03.18 水电阶段
![[日志]小两口的甜蜜婚房苏州3室2厅1厨1卫](https://cdn.estradaganna599.workers.dev/origin/7fa00064b5bc4aa8104.jpg)
材料上PP了。
2011.03.18 水电阶段
![[日志]小两口的甜蜜婚房苏州3室2厅1厨1卫](https://cdn.resistlatasha.workers.dev/origin/7fa00064b5ce9061a33.jpg)
弱电箱总闸。
2011.03.18 水电阶段
![[日志]小两口的甜蜜婚房苏州3室2厅1厨1卫](https://cdn.afieakhtn.workers.dev/origin/7fb0006509d40d232b8.jpg)
水管试压。
2011.03.20 泥木阶段
今天堂弟订婚,忙了一天,刚去新房子看了下施工情况,不管多晚,还是要上来完成跟各位TX汇报滴。厨房间的墙砖和卫生间的墙砖已经贴好了,哈哈!上图了...
2011.03.20 泥木阶段
![[日志]小两口的甜蜜婚房苏州3室2厅1厨1卫](https://cdn.hadhvssabah.workers.dev/origin/7fa00064b5dd60fcbd9.jpg)
厨房间的情况:清一色白砖,干干净净的,没有花纹,好打扫,嘻嘻!
2011.03.20 泥木阶段
![[日志]小两口的甜蜜婚房苏州3室2厅1厨1卫](https://cdn.andersonyamy719.workers.dev/origin/7f900064cc30c43d9ec.jpg)
卫生间现在贴的跟我之前订的有所区别,考虑来考虑去还是用这款,看上去效果更洋气。
2011.03.20 泥木阶段
还有我想说,师傅手艺真不错!片与片之间平平整整的,手摸上去不扎手,很满意!昌硕装饰赞一个。
2011.03.22 泥木阶段
![[日志]小两口的甜蜜婚房苏州3室2厅1厨1卫](https://cdn.hadhaahjvau.workers.dev/origin/7f900064cc2b0c89f4c.jpg)
后阳台的地砖正在铺设,我只能看到每一天的不同,哈哈!
2011.03.23 泥木阶段
![[日志]小两口的甜蜜婚房苏州3室2厅1厨1卫](https://cdn.beverlytuckerg139.workers.dev/origin/7fd00064f47b4b1465a.jpg)
刚从新房子工地回来,今天换上新的防盗门啦~~上图,嘿嘿!
2011.03.23 泥木阶段
![[日志]小两口的甜蜜婚房苏州3室2厅1厨1卫](https://cdn.estradaganna599.workers.dev/origin/7fb0006509fc8e7f47a.jpg)
厨房间热水器管道,中间的是煤气管。
2011.03.23 泥木阶段
![[日志]小两口的甜蜜婚房苏州3室2厅1厨1卫](https://cdn.hadhvssabah.workers.dev/origin/7f900064cc53badecd8.jpg)
这就是做完防水了。。。。。
2011.03.28 泥木阶段
瓦匠师傅还有2天结束,瓷砖是补了又补!建议未装修的同学瓷砖一定要让商家提前去测量。明天晚上去看看阳台封的咋样了,哈哈!
2011.03.29 泥木阶段
![[日志]小两口的甜蜜婚房苏州3室2厅1厨1卫](https://cdn.zdzzes.workers.dev/origin/7fb000650a0d27cc550.jpg)
卫生间已成雏形,哈哈~看图。
2011.03.29 泥木阶段
![[日志]小两口的甜蜜婚房苏州3室2厅1厨1卫](https://cdn.hamiltonhmartha157.workers.dev/origin/7fd00064f488c597e57.jpg)
封阳台的框架已经完成~明天师傅要帮我们保护 起来,估计后天木工师傅进场了。
2011.04.04 泥木阶段
![[日志]小两口的甜蜜婚房苏州3室2厅1厨1卫](https://cdn.shnavhscbs.workers.dev/origin/7fc000650e041445826.jpg)
阳台封好了。
2011.04.04 泥木阶段
![[日志]小两口的甜蜜婚房苏州3室2厅1厨1卫](https://cdn.hallgjennifer723.workers.dev/origin/7fc000650dec87ee3a1.jpg)
木工进场第一天,吊顶。
2011.04.11 泥木阶段
晚上去工地上了,过来交作业啦~4-5天没有去了,今天一进去大变样啊~话不多少,赶紧上图。
2011.04.11 泥木阶段
![[日志]小两口的甜蜜婚房苏州3室2厅1厨1卫](https://cdn.andersonyamy719.workers.dev/origin/7fc000650dfee8d895b.jpg)
这边本来考虑用一块玻璃的,最后还是决定用珠帘,动感现代活力一点。
2011.04.11 泥木阶段
![[日志]小两口的甜蜜婚房苏州3室2厅1厨1卫](https://cdn.hacbsshhac.workers.dev/origin/7fa00064b60219e9321.jpg)
鞋柜木工师傅打好了~!嘿嘿。
2011.04.11 泥木阶段
![[日志]小两口的甜蜜婚房苏州3室2厅1厨1卫](https://cdn.hadhvssabah.workers.dev/origin/7fc000650e11d7ca147.jpg)
电视墙背景正在完成中~!。。。
2011.04.11 泥木阶段
![[日志]小两口的甜蜜婚房苏州3室2厅1厨1卫](https://cdn.khatunraisa900.workers.dev/origin/7fc000650e29284f937.jpg)
客厅顶上很简单的造型。
2011.04.11 泥木阶段
![[日志]小两口的甜蜜婚房苏州3室2厅1厨1卫](https://cdn.hadhaahjvau.workers.dev/origin/7fa00064b6128cf5205.jpg)
餐厅这块地方是我最满意的,空间挺宽敞的。
2011.04.11 泥木阶段
![[日志]小两口的甜蜜婚房苏州3室2厅1厨1卫](https://cdn.mendezhlauren156.workers.dev/origin/7fd00064f49afb03042.jpg)
这个是顶上唯一的亮点,嘿嘿~现在已成雏形,等上好油漆就能看出效果啦。
2011.05.11 油漆阶段
![[日志]小两口的甜蜜婚房苏州3室2厅1厨1卫](https://cdn.hamiltonhmartha157.workers.dev/origin/7fc000650e394652e22.jpg)
装门的师傅电话我,门装好了,晚上去看看拍点照片上来。木门图上来啦。
2011.05.16 油漆阶段
![[日志]小两口的甜蜜婚房苏州3室2厅1厨1卫](https://cdn.beverlytuckerg139.workers.dev/origin/7fc000650e647ad472b.jpg)
来了来了~今天装灯和装橱柜,忙的我帮忙穿水晶,真累。繁忙之中,还是不忘要做功课的,上主卧灯。
2011.05.16 油漆阶段
![[日志]小两口的甜蜜婚房苏州3室2厅1厨1卫](https://cdn.mendezhlauren156.workers.dev/origin/7fa00064b6317441e36.jpg)
次卧正好我出去买灯带了,回来的时候就已经装好啦。
2011.05.16 油漆阶段
![[日志]小两口的甜蜜婚房苏州3室2厅1厨1卫](https://cdn.hacbsshhac.workers.dev/origin/7fc000650e402cf6e23.jpg)
客厅灯是我的大爱,带遥控A,B,C三档位。哈哈~这应该是我觉得网购最值的东西了。
2011.05.16 油漆阶段
![[日志]小两口的甜蜜婚房苏州3室2厅1厨1卫](https://cdn.afieakhtn.workers.dev/origin/7fd00064f4abec23160.jpg)
餐厅灯装上效果也是大爱,哈哈,很温馨。
2011.05.16 油漆阶段
![[日志]小两口的甜蜜婚房苏州3室2厅1厨1卫](https://cdn.hafbsskggab.workers.dev/origin/7f900064cc8f90db134.jpg)
橱柜前几天就做好啦,油烟机和煤气灶今天装好啦,上图。
2011.05.25 油漆阶段
![[日志]小两口的甜蜜婚房苏州3室2厅1厨1卫](https://cdn.hasbaahbca.workers.dev/origin/7fc000650e554e3de29.jpg)
从客厅看餐厅,餐厅还是挺大的 后阳台移门未定做额。
2011.05.25 油漆阶段
![[日志]小两口的甜蜜婚房苏州3室2厅1厨1卫](https://cdn.zdzzes.workers.dev/origin/7fd00064f4b4aef1690.jpg)
客厅灯市亮点,客厅挺大的,看着非常舒服。
2011.05.25 油漆阶段
![[日志]小两口的甜蜜婚房苏州3室2厅1厨1卫](https://cdn.khatunraisa900.workers.dev/origin/7f900064cc9fa0271f4.jpg)
进去就是两个房间啦,柜子上的移门还都没有装呢。
2011.05.26 油漆阶段
![[日志]小两口的甜蜜婚房苏州3室2厅1厨1卫](https://cdn.hadhvssabah.workers.dev/origin/7fd00064f4cc8e93827.jpg)
刚去工地上看了下,地板开始铺了,颜色很喜欢。
2011.06.01 油漆阶段
等了那么久,终于要过来交作业啦。电视背景正在制作中... ...半成品先发上来大家看看,我也很期待成品。家里色调主要白色,背景用青草色感觉很清新,个人很喜欢。油漆都是多乐士的。
2011.06.01 油漆阶段
![[日志]小两口的甜蜜婚房苏州3室2厅1厨1卫](https://cdn.hamiltonhmartha157.workers.dev/origin/7fb000650a36526ad63.jpg)
电视背景正在制作中... ...
2011.06.01 油漆阶段
![[日志]小两口的甜蜜婚房苏州3室2厅1厨1卫](https://cdn.afieakhtn.workers.dev/origin/7fa00064b64da7d6a17.jpg)
最受期待的马赛克照片上来了,今天正好把台盆也装好啦,就一并发上来啦。台盆柜怎么感觉小了?旁边看来只能用绿化掩饰了。
2011.06.01 油漆阶段
![[日志]小两口的甜蜜婚房苏州3室2厅1厨1卫](https://cdn.resistlatasha.workers.dev/origin/7f900064ccabc2ec73e.jpg)
看下宝仕龙的电器造型,真不错。大家更多款可以到他店里看看,挺清爽的。
2011.06.13 竣工阶段
装修终于结束了,自己也怀孕了, 貌似最近上网明显少了,大家再耐心等待一下。家里还有最后的小五金,花格,水晶帘没有装了,师傅这几天回老家了,但这些不影响我的拍摄,先上吧。
2011.06.13 竣工阶段
![[日志]小两口的甜蜜婚房苏州3室2厅1厨1卫](https://cdn.gaylordvicky.workers.dev/origin/7f900064ccc8f41dcdc.jpg)
看三个整体:站在这个角度可以看到餐厅和卫生间。
2011.06.13 竣工阶段
![[日志]小两口的甜蜜婚房苏州3室2厅1厨1卫](https://cdn.afieakhtn.workers.dev/origin/7f900064ccd3bddae9b.jpg)
客厅。
2011.06.13 竣工阶段
![[日志]小两口的甜蜜婚房苏州3室2厅1厨1卫](https://cdn.hafbsskggab.workers.dev/origin/7fd00064f4d32b5813f.jpg)
卫生间内景。
2011.06.13 竣工阶段
![[日志]小两口的甜蜜婚房苏州3室2厅1厨1卫](https://cdn.hallgjennifer723.workers.dev/origin/7f900064cce47b138c6.jpg)
看一看 瞧一瞧。
2011.08.23 入住阶段
![[日志]小两口的甜蜜婚房苏州3室2厅1厨1卫](https://cdn.mendezhlauren156.workers.dev/origin/7fd00064f4efe759366.jpg)
已经弄的差不多了,进门客厅。
2011.08.23 入住阶段
![[日志]小两口的甜蜜婚房苏州3室2厅1厨1卫](https://cdn.hacbsshhac.workers.dev/origin/7fa00064b6886a121f2.jpg)
沙发的特写。
2011.10.12 入住阶段
![[日志]小两口的甜蜜婚房苏州3室2厅1厨1卫](https://cdn.hasbaahbca.workers.dev/origin/7f900064cd0cacb58b7.jpg)
厨房。
2011.10.12 入住阶段
![[日志]小两口的甜蜜婚房苏州3室2厅1厨1卫](https://cdn.hasbaahbca.workers.dev/origin/7fb000650a7dd8adf3e.jpg)
洗脸盆。
2011.10.12 入住阶段
![[日志]小两口的甜蜜婚房苏州3室2厅1厨1卫](https://cdn.hafbsskggab.workers.dev/origin/7fb000650a859918125.jpg)
卫生间。
2011.10.12 入住阶段
![[日志]小两口的甜蜜婚房苏州3室2厅1厨1卫](https://cdn.hacbsshhac.workers.dev/origin/7fc000650e73e34e998.jpg)
次卧。
2011.10.12 入住阶段
![[日志]小两口的甜蜜婚房苏州3室2厅1厨1卫](https://cdn.beverlytuckerg139.workers.dev/origin/7f900064cd19aeaa3c7.jpg)
书房。
2011.10.12 入住阶段
![[日志]小两口的甜蜜婚房苏州3室2厅1厨1卫](https://cdn.hamiltonhmartha157.workers.dev/origin/7fa00064b69046191e4.jpg)
主卧。
2011.10.13 入住阶段
已入住,核算了一下装修金额,超预算了。。。超了一半预算,钱就这样没有了耶。 一切从头开始,再夹着尾巴赚钱,哈哈!
——————————————————————————
如果你还有更好的案例或攻略,或者有什么和小美一起聊聊的,欢迎回复或者关注最美装修(微信号:zuimeizhuangxiu)一起吐槽。给我们投稿也是非常欢迎的!
更懂装修,更多好文章!