如果建筑就是组织人们的生活方式,户型就是组织人们的室内生活场景。
从自住角度说,它能让你住的更舒服。
从保值增值角度说,户型是一套房子变现交易的临门一脚。
买不买房看地段,掏不掏钱看户型!
当下哈尔滨的户型,有尊重购房者吗?

户型的本质是什么?
满足居住者的正常生活需求!
绝大多数情况下,你的正常生活需求并不能在你所挑选的户型中,得到完全满足。
为什么?
因为房企在户型设计过程中,首先考虑的是如何让项目最赚钱,卖的最快。
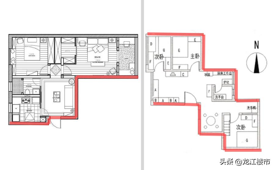
梦回到童年,“俄罗斯方块”走起!
你敢相信,这是在哈尔滨真实存在的户型!

小开间、长进深,压抑感十足。
南北通透就不奢求了,怎么连一个明厅都没有?
就这格局,谁买谁“尴尬”!
无论是自住还是出租,都对居住者是个考验。
对于购房者来说,这种一眼就能看出奇葩的户型还能清醒抉择。
最怕的就是遇到假通透、伪明厅的户型......
花了类似的价钱,却实则入坑,纯纯就是一个“无语”的大动作!
所以,世上没有“十全十美”的户型,只有适合自己的户型。
那么,一个户型的优劣该如何判断呢?

户型格局
❶看型
从型来看,刀把型、手枪型、锯齿型别买!

过多的拐角占用大多是居住面积,十分浪费空间。
从风水上说,手枪型与刀把型一样缺角严重,十分不吉利。
而好户型要格局方正。
不是整套房子是个方形,是各个房间和功能区域较为方正。

△金地峯范建面约132㎡三室两卫户型
这样的房子不存在过多的拐角过道,利用率较高。
❷进深、开间
户型的进深与开间之比要合理。
进深与开间之比一般介于1:1.5之间较好。
开间:指的是东西向的宽度;
进深:指的是南北向的深度。

△万科智慧未来城建面约128㎡户型
进深过大,开间过小,会影响户型采光通风,房间内会显得比较暗;
进深偏小,开间过大不利于房间保温,浪费能源。
❸采光
根据《住宅项目规范》,每套住宅应至少有一个居住空间能获得冬季日照。

住宅采光应符合下列规定:
每套住宅卧室、起居室、厨房均应有直接采光;
每套住宅中侧面采光的采光系数平均值满足2.0%的居住空间至少应有1个;
当一套住宅中居住空间总数超过4个时,侧面采光的采光系数平均值满足2.0%的居住空间至少应有2个。
住宅卧室、起居室一般照明光源的色温不应高于4000K。
采光离不开朝向。
南向的房子通风采光明显要比其它朝向的要好,但都是朝南,东南和西南还是不一样的。
通常排名为:
东南向 > 南向 > 西南向 > 东向 > 东北向 > 北向 > 西向 > 西北向。
❹通风
南北通透的户型是标准的好户型,因为这样的房子空气对流通风好。

△万科金域悦府建面128㎡三居户型
不要以为南北有窗就是南北通透。
南北通透需要餐厅、客厅、厨房在同一动线上对向通风。
LDK客餐厨一体化,通风系统中间没有墙面阻挡。
卧室需要南北分居,门对门通风顺畅。
明厨明卫,通透性更强。

空间布局
什么样的空间布局是合理的?
一定是动静分区,动线清晰。
❶动静分离
动区:客厅、餐厅、厨房、次卫等。
静区:卧室、书房、主卫等。

△华崴·学府拾號建面110㎡三居户型
动静分离的户型,舒适度更高。
动区是人活动较为频繁的区域,离入户门较近。
静区为居住者休息区,一般在户型内侧。
动静分离可以做到会客、娱乐、休息互不打扰。
❷干湿分离
干湿分离是卫浴设计中比较流行的设计概念。
干湿分离包括洗手台、浴室分离;或者淋浴区与坐便、面盆区的分离。
干是指洗手台,湿是指浴室。

使用传统的浴室设备,洗澡之后充满水汽。
潮湿的空气长期在浴室中滞留,会造成了空气的污浊。
❸动线合理
一个好的户型,要尽量做到动区和静区互不打扰,多条动线互不交叉。
动线分三类:
居住动线——围绕卧室展开,讲求私密性;
家务动线——围绕家务劳动展开,主要涉及厨房;
访客动线——围绕访客展开,主要涉及客厅,但要尽量避免与居住动线和家务动线产生交集。

动线良好的户型从入户门进客厅、卧室、厨房的三条条线不会交叉。
动线较差户型进厨房要穿过客厅,进主卧要穿过客厅,客厅都成公共走廊了。
另外厨房布置在户型深区,卫生间距离主卧和次卧都很远。

面积尺度
常规情况下,户型有七个功能模块:
玄关、客厅、厨房、餐厅、阳台、卫生间、卧室。
从面积来看,自然是越大越好。
面积越大,钱包越憋。
那么各个功能区面积的底线和舒适度是多少呢?
❶玄关
玄关是指厅堂的外门,也就是居室入口的一个区域。
可以有效的将住宅室内与室外间隔。
进入室内换鞋、更衣或从室内去室外,玄关起到了缓冲作用。
根据不同标准,面积可以分为三类。
低适用标准:1-2㎡或没有;
“舒适”尺寸:3-5㎡;
“高舒适”尺寸:大于5㎡。
❷客厅
客厅一般是整个家庭的活动中心,在形状方面以方正为宜,南向为首选。
根据不同的户型标准,面积要求可以分为三类。
低适用标准:
开间3.9米,进深4.5米,建筑面积17.55平方米,
这类户型挑选家具和家电有限制,不能太大。
“舒适”尺寸:
开间4.5米,进深5.1米、建筑面积22.95平方米,面积适中;
“高舒适”尺寸:
开间5.1米,进深6.6米,建筑面积33.66平方米,客厅的搭配可以更加自由。
❸卧室
根据《住宅项目规范》,卧室的使用面积不应小于5㎡。
住宅套型不设起居室时,卧室使用面积不应小于9㎡;
卧室短边净宽不应小于1.8m。
卧室、起居室和厨房不应布置在地下室。
当布置在半地下室时,应合理布置,采取必要的通风、防潮、排水及安全防护等措施。
从舒适度来看,主卧面积是卧室中较大的,次卧相对较小。
同时,次卧可以根据不同需求设置儿童房、老人房、客房、书房等。

△保利天悦建面约125㎡-127㎡户型
主卧室面积也有三个标准。
低适用标准:开间3.3米,进深4.5米,能满足基本的舒适感;
“舒适”尺寸:开间3.6米,进深4.8米;
“高舒适”尺寸:开间3.9米,进深5.1米,会更为舒适。
❹厨房
根据《住宅项目规范》,厨房的使用面积不应小于3.5㎡。
厨房应配置洗涤池、水龙头、案台、灶具、排油烟机等设施或预留安装位置。
从舒适度来看,厨房面积应大于5㎡。
80-90㎡的两室,6㎡的厨房就可以基本满足4口之家的需求。
大户型的厨房可以选择9㎡,可以更好满足生活需求。
❺餐厅
一般,餐厅布局在厨房附近或厨房里。
餐厅的面积也分为三个标准。
低适用标准:空间≥6㎡;
“舒适”尺寸:空间≥12㎡;
“高舒适”尺寸:空间≥16㎡。
❻卫生间
根据《住宅项目规范》,每套住宅应设卫生间,应配置便器、洗浴器、洗面器等卫生器具或预留安装位置及条件。
布置便器的卫生间的门不应直接开在厨房内。
便器、洗浴器和洗面器集中配置的卫生间的使用面积不应小于2.5㎡。
卫生间不应直接布置在其他住户的卧室、起居室、厨房和餐厅的上层。
卫生间的设置应符合下列规定:
1 跃层或多层套型,布置有起居室或卧室的楼层至少应配置1间配置便器和洗面器或预留安装位置及条件的卫生间;
2 卫生间便器和洗浴器旁应设扶手或预留安装条件;
3 卫生间门应具备或预留向外开启的空间要求。
卫生间防水应符合下列规定:
1 卫生间地面应设防水层,墙面、顶棚应设防潮层;
2 卫生间淋浴区墙面防水层高度不应小于2.00m,洗面器处墙面防水层高度不应小于1.20m,其他墙面防水层高度不应小于0.30m;
3 卫生间地面设有地漏时,应设坡度不小于1%的排水坡坡向地漏。
卫生间面积也有三个标准。
低适用标准:公卫≥3㎡;
“舒适”尺寸:主卫≥4㎡、公卫≥3㎡;
“高舒适”尺寸:主卫≥6㎡、公卫≥4㎡。
❼阳台
根据《住宅项目规范》,设有阳台时应符合下列规定:
阳台栏杆净高不应低于1.10m,阳台栏杆应有防止攀登和防止物品坠落的措施,栏杆的垂直杆件间净距不应大于0.11m;
开敞式阳台应采取有组织排水和防水措施;
放置洗衣机的阳台地面应采取有组织排水和防水措施;
各套住宅之间毗连的阳台应设分户隔板。

赠送面积
赠送面积是指开发商利用商品住宅现行的建筑设计规范,尽量多设计可利用但又不计算或只计算一半面积的居住空间。
一般开发商赠送的面积多为:
阳台、飘窗、露台、错层、地下室......
以提高空间使用率为“噱头”,让购房者觉得“物超所值”。
❶阳台
阳台是建筑物的室内延伸,比较常见的有悬挑式、嵌入式、转角式三种。
在赠送阳台的规则里,全封闭与未全封闭差别很大。
全封闭按照全部面积计算,而半封闭按照一半的面积计算。
❷飘窗
飘窗有内飘窗和外飘窗两种。
飘窗是否计入建筑面积,取决于飘窗台到天花板的高度。
如果高度低于2.2米,则不计入计入建筑面积。
此外,低于2.2米的落地窗也不计入建筑面积。
❸阁楼
很多人都喜欢买带阁楼的房子,这样买一层的房子还赠送一层。
阁楼一般位于顶楼,且房屋屋顶有一定的坡度。
根据《哈尔滨市特殊层高建筑计容建筑面积计算细则(试行)》,阁楼层高超过4.9米,你就要付双倍的钱。
❹入户庭院
入户庭院是否计入建筑面积,可以分为3种情况:
有顶、全封闭,一户专用,计入建筑面积;
有顶、全封闭,但是两户或者多户专用,计入公摊面积;
没有顶的庭院,这种情况下不计入建筑面积。
❺露台
而露台本来就是免费赠送的。
按照2013年新版的《建筑工程建筑面积计算规范》规定:
露台、露天游泳池、花架、屋顶的水箱及装饰性结构构件,不计入建筑面积。
❻核心筒
核心筒就是在建筑的中央部分,由电梯井道、楼梯、通风井、电缆井、公共卫生间、部分设备间围护形成中央核心筒。

事实上,它会影响到邻里关系,影响到居住体验和日常出行动线。
尽量不选择入户门正对电梯门的户型,减少噪音的产生。

当下哈尔滨的户型,有尊重购房者的,也有十分不尊重购房者的。
大家一定要擦亮“火眼金睛”:
户型选择要方正;
进深与开间之比一般介于1:1.5之间;
要注重采光和通风;
空间布局上要选择动静分离、干湿分离、动线合理的;
面积尺度上要量力而行,选择适合自己的;
赠送空间方面一定要“头脑清醒”,小心掉进开发商的“千层套路”......
你家的户型尊重你了吗?
以上正文,来自@龙江楼市
欢迎留言、私信,有问必答,谢谢各位~
龙江楼市原创稿件,未经授权禁止转载,否则后果自负!