鸿顺的超低容积率住宅项目来了!近日,搜狐新闻·搜狐焦点济宁小编在相关渠道获悉, 济宁鸿顺·御和园项目 的修建性详细规划方案获批前公示,具体参数如下。

总平面图
工程概况
项目名称 :济宁鸿顺·御和园项目
建设单位: 济宁鸿顺新城房地产开发有限公司
项目位置 :西邻车站南路,南邻东赵路。
主要技术经济指标
总规划用地11063.86(约16.6亩);总建筑面积:22364.44㎡;其中地上建筑面积为14382.02㎡、地下建筑面积为7982.42㎡;容积率为1.3;建筑密度35.04%;绿地率35.04%;建筑类型包括 住宅、幼儿园公共配套设施 等;规划机动车停车位104个。

日照分析图




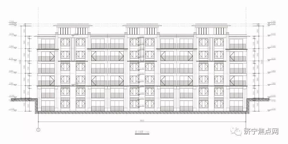
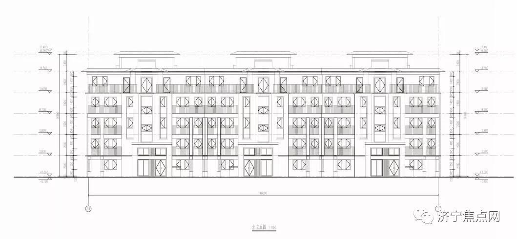
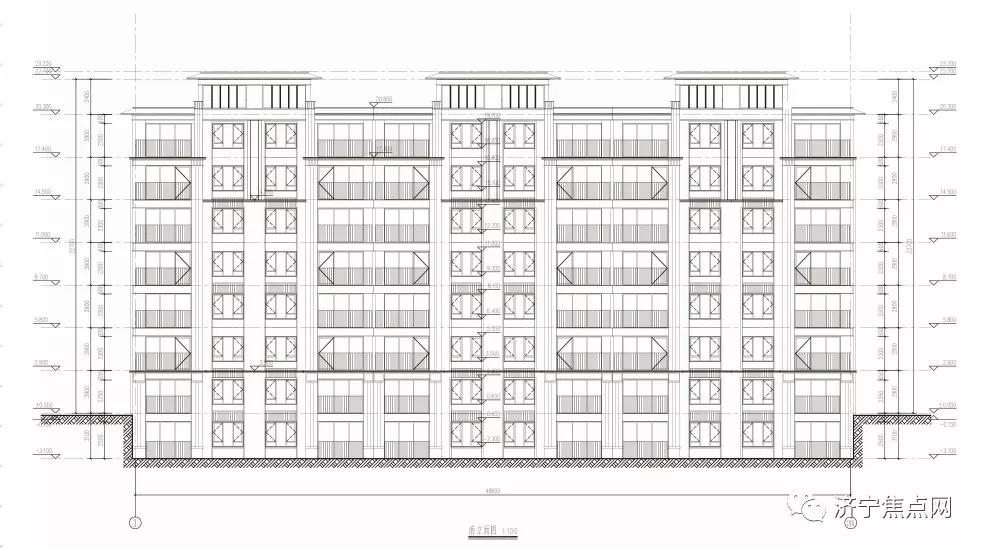
立面图




效果图

鸟瞰图