就在刚刚!江北新区又迎来了一项重磅教育利好,南京工业大学实验小学正式签约江北新区!选址就在顶山街道七里桥社区,也就是原先地块规划的胡桥路配建小学!

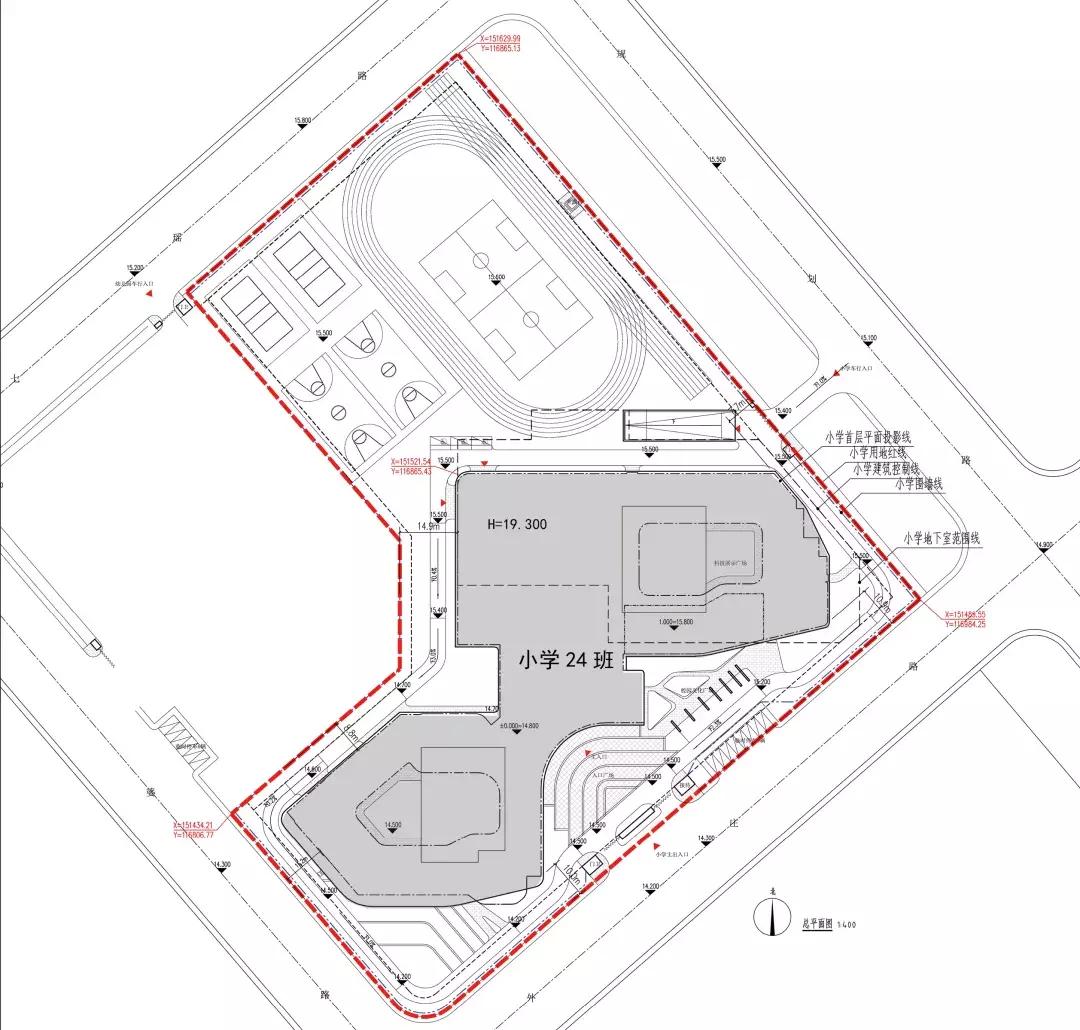
学校位于七瑶路南侧,占地面积23113㎡,建筑面积27328㎡,总投资1.5亿元,设计理念和设施先进,规划4轨24班,计划2019年9月正式招生!

在南工大实小的周边有多家楼盘,包括明发云庭、明发悦庭、美麟香漫山、通宇林景蘭园、通宇林景熙园、金地浅山艺境。现在这几家小区的业主都要笑了!

而南工大实小的进驻,将会彻底带活周边的生气和活力。并且其办学条件也十分优越,打造的是高水准小学,能极大地缓解周边小区业主孩子上学难的问题!

南工大实小鸟瞰图
根据签约协议来看,南工大实小作为江北新区成立来第一所与高校共建的小学,将依托南工大的优势办学资源,力争将南工大实小打造为江北新区基础教育创新示范基地,将狠抓教育质量。

南工大实小效果图
其实在地段位置上,也可以看出南工大实小的签约进驻其实分量很高。因为整个区域紧挨着江北核心区,即使离中央商务区也十分近。可以说是与核心区共享优质配套。

此外,除了南工大实小之外,江北新区的教育建设渐渐步入正轨,都在抓紧落实建设中,今后是江北教育资源迎来大爆发的时刻!
1
定向河小学
定向河小学为一所5轨30班小学,位于纬七路隧道口,旁边就是阳光帝景与中央商务区。占地面积约33亩,总建筑面积约26332.25㎡。学校内将配备教学楼、行政楼、试验楼、室内外运动场地、食堂等配套设施,目前已经封顶。

2
汉开书院
台海科工园国际学校——汉开书院新校址为一所10轨30班中学,位于江北新区台海科工园内,占地面积约75亩,总建筑面积约35386㎡,将于2019年使用新校区。

3
金陵中学浦口分校
目前,金陵中学浦口分校较大可能就位于雨山路板块,中交锦蘭荟旁边。也就是规划的智城路配建学校。总投资约8亿元,总用地面积约134861.09㎡,总建筑面积约111540㎡,其中地上总建筑面积约99540㎡,地下总建筑面积约12000㎡。

将配建的4轨12班的幼儿园、14轨84班的小学、12轨36班的中学。根据规划,预计今年12月1日设计开工,明年1月1日施工开工,2020年6月30日建成!并在2020年4、5月份通过官方渠道公布该校的学区。