1、绘制
线 L 圆 C 插入块 I
多线 ML 圆弧 A 创建块 B
多段线 PL 椭圆 EL 属性定义 ATT
多边形 POL 点 PO 填充 H
矩型 REC 圆环 DO 文字输入 T
2、修改
复制 CO 倒角 CHA 删除 E
镜像 MI 圆角 F 文字样式 ST
偏移 O 分解 X 编辑多段线 PE
阵列 AR 样式刷 MA 编辑多线 MLEDIF
移动 M 返回 CTRL+Z 列表显示 LI
旋转 RO 实时平移 P 查询面积 AA
缩放 SC 实时缩放 Z 等分 DIV
拉伸 S 特性 CTRL+1 编辑文本 ED
修剪 TR 打断 BR 边界创建 BO
延伸 EX 连接多段线 PE 遮盖面 PIW
刷新 RE 快速选择 QSELECT 标号 SN
3、标注
直线标注 DLI 对齐标注 DAL 半径标注 DRA
直径标注 DDI 角度标注 DAN 中心标注 DCE
点标注 DOR 连续标注 DCO 快速标注 QDIM
标注样式 D
4、其他
帮助 F1 正交 F8
文本窗口 F2 捕捉 F9
对象捕捉 F3 极轴 F10
坐标 F6 对象捕捉 F11
栅格 F7
新建 CTRL+N 保存 CTRL+S 打印 CTRL+P
打开 CTRL+O 另存为 CTRL+SA 返回 CTRL+Z
关闭 CTRL+C 打印预览 CTRL+V
复制 CTRL+X 全选 CTRL+A
剪切 CTRL+C
黏贴 CTRL+V
点选:点击选择对象。
左框选:从左向右拉出框选,将选择的物体全部放了框中。
右框选:从右向左拉出框选,将选择的物体一部分放入框中。
1.图幅及规格

(1)由于图构的需求或装订的方便,充许各种图幅长边加长。
(2)标题栏的款式和大小尺寸,依不同设计单位暂时没有统一规定。但一般都放在图样的下边、右边、右下角。

线形的画法及应用
CAD尺寸长度是以毫米为单位。




地面练习1制图
1、使用“线”L或“多段线”PL绘制出房间的整体造型。
“线”L,一段直线有两个端点组成,两点做一条线。在CAD中一段线有三个点,两个端与一个中心点,在我们点击一段线时候我们会发现在线段上出现三个点,用左键点击两个端点中的任何一个端点,都可以做到让线段的长短、角度发生变化。在我们用左键点击中心点时,线段会跟着我们的鼠标整体移动,只改变位置其他不变。
“多段线”PL,多段线是有“两线段”或“两个以上的线段”组成的线叫做“多段线”,多段线是相连接的线段,在CAD中选择多线段中的任何一段线都可以选中全部的线段。
说明:“多段线”是有线段组成的线,是一个整体。
2、在完成房间结构后,要对其内部做石材的分割,我们可以使用“线”+“偏移”O命令或者“填充”H命令来完成内部的石材分割。(要求:地面石材分成600*600)“线”+“偏移”O命令:在房间内做一条线段连接两边的墙壁(位置有客户确定),然后用“偏移”O做上下、左右的线段偏移,要求偏移600。
“偏移”O,从原有基础上的线段偏移,当我们在CAD中输入O“偏移”,会显示出输入偏移距离,根据你所偏移的距离输入数值,(比如:我想要偏移的距离是600,那么我输入的数值就是600),在输入完数值后,按“空格键”或“鼠标左键”都可以完成命令确定。然后别急,你的操作还没完成。在确定后会显示“选择偏移对象”选择你所有偏移的对象就可以,在选完对象后,用“鼠标左键向要偏移方向的空白处点击一下就完成了。”(相同数值的偏移不需要重复输入数值,鼠标左键点击可以继续使用)
“填充”H,打开填充窗口后,“类型和图案”栏中有个“样例”,它的右边可以选择多种填充样式,选择完你喜欢的样式后“确定”退出,在“样例”上方有“颜色”编辑器,可以任意选择你所喜欢的色彩。
往下是“角度和比例”,角度:角度共360度,+正值做逆时针旋转、—复制做顺时针旋转。比例:在CAD中,比例1或0,不做变化。比例1以上做倍数增加,如:比例2放大2倍、比例4放大倍。比例1以下做倍数递减,如:比例0.5缩小2倍、比例0.25缩小4倍。(想要得到填充正好的大小,公式:原有比例÷填充后的数值×要填充数值=需要填充比例)
右边框“边界”,填充最重要的是你所有填充的图形是否“闭合”和“连接”。在确定“闭合”和“连接”后选择:“拾取点”或“选择对象”。
这两个是有区别。
1、“拾取点”:选择填充图案的空白处即可,按空格键即可返回。
2、“选择对象”:选择填充图案的边界,按空格键即可返回。
往下看会有一个“创建独立的图案填充”在未打钩时填充图案为整体。
在打钩时填充图案为独立分开。
左下角“图案填充原点”选择“指定的原定”点击以设置新的原定,我们可以自己设定图案的原点,更方便使用填充工具。
3、分割完房间的石材尺寸后,在绘制一个“矩形”REC(100*100)并放置每一个块大板的角上。
“矩形”REC,在CAD中输入rec在窗口做一个起点,然后在任意的一个地方做一个结束点,一个任意大小的矩形就做出来了。
想要标准的尺寸的矩形:输入rec在窗口做一个起点,在输入栏中输入@,长,宽。在CAD中四个方向有正负值之分,右是正、左是负,上是正、下是负。输入的顺序是左右后上下。
矩形有四条线八个点组成,在当我们点击矩形会发现四个角上有四个端点,可以任意拖动,改变矩形形态,在四条线段中间有四个中心点,点击后可以改变矩形的长宽。
4、制作完图纸型,对图形做标准,表明尺寸大小。“标准样式”D
“标准样式”D,打开标注样式,左边已设置的标准样式,中间可以预览标准效果,右边分别有“设置为当前”“新建”“修改”等命令。
“设置为当前”:使用标准样式必须先设置为当前不然无法使用刚设置的标准或改变标准样式。
“新建”:在设置新的标准必须新建一个标准。
点击“新建”命令,进入新建窗口,1、设置新样式名称:起一个新的名字。2、基础样式:作为新建标准样式基础样式。
继续,进入标准样式设置窗口:
1、“线”:

2、“符号与箭头”:
箭头1与箭头2分别指标准两端的样式。
“引线”LE
箭头大小:尺寸按毫米计算。
3、“文字外观”:
文字样式:选择不同的文字样式格式。
文字颜色:选择文字色彩。
文字高度:尺寸按毫米计算。
从尺寸偏移:文字与尺寸的距离,尺寸按毫米计算。
4、“主单位”:
单位格式:小数。
精度:在标准尺寸小数点保留量,一般选择“0”。
确定退出,就完成标准设置了。
“修改”:设置完的标准样式不满意的就行在次设置。
完成操作后,关闭退出。
直线标注 DLI 连续标注 DCO 快速标注 QDIM
5、绘制图后,进行编号开料。

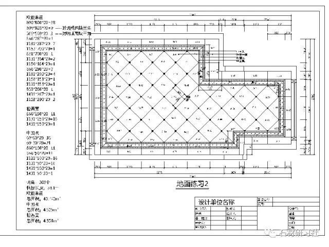
地面练习2制图
1、使用线绘制出房间的造型。
2、在房间内部做800*800尺寸规格45度拼板。“旋转”RO
“旋转”RO,旋转角度共360度,+正值做逆时针旋转、—复制做顺时针旋转。
输入RO,确定,确取旋转的中心点,输入旋转角度。
3、在外包一层50、150、100的围边。“偏移”O
4、要求贴墙余量板尺寸大致相同。
5、添加标准。
6、编号。
编号加载:工具——加载应用程序——选择编号插件——点击加载
“编号”SN是通常编号工具的快捷键
打开编号工具,
一、起始编号: 是指输入的第一个数值
二、增量: 数值增加倍数。
如:起始编号为1,增量为1。编号设置:1、2、3、
如:起始编号为1,增量为2。编号设置:1、3、5、
三、前缀与后缀:
前缀是指在数值前永远不变“代号”
后缀是指在数值后永远不变“代号”
四、字高:尺寸按毫米计算
7、开料。
将石材尺寸、数量、面积等有关信息表达出来。
如图:

一、缺角的按整块开料。
二、三角的看做矩形开料,加3毫米的刀缝。
单位转换公式:
毫米mm、厘米㎝、米m、平方米㎡、立方米m³
1000毫米=100厘米=10分米=1米
1000毫米=1米
1000000平方毫米=1平方米
1000000000立方毫米=1立方米
在通俗话中1厘米被叫做“1公分”。

地面练习3制图
1、绘制房间平面的尺寸。
“多段线”PL,在以前的课程中我们了解多段线含义。以下要说说多段线的“半宽”H,在输入PL,选取基础点后,在状态栏中可以看见“半宽”H的一个附加命令,输入H,显示要你输入线形的宽度,要输入两次,表示两个端点的宽度,一个输入相同的值,在默认情况下我们使用的半宽为“0、0”。
2、在房间中央制作有4条几何形组成的缺角矩形。(要求:内部矩形尺寸在450至500,长条宽120。)
一、先绘制一长条几何形。

二、使用“镜像”MI,制作一个缺角矩形。

“镜像”MI,所谓镜像就是指把一个物体如同
镜子一样的出现在对面,大小一样、距离相同,
方向相反的状态。
操作步骤:输入MI,空格确定,选择原对象,
选择起点与终点,起点与终点会形成一条直线,
作为镜面做“镜像”操作。在完成以上操作后,
是否删除源对象,默认为‘N’不删除对象,输入‘Y’可以删除源对象。
三、保存为“块”B,进行一定数量的复制,也可以使用“复制”CO“阵列”AR。
➀为了方便选取一些小而复杂的造型,我们把它转换“块”,块的定义就是把零碎的线条组成为一个整体,方便于选取。操作步骤:输入B,空格确定,这时会出现一个编辑为块的窗口,1、输入名称。2、拾取基础点:块的点只有一个。3、选择对象:点击按钮选择要编辑为块的内容,空格返回“块编辑窗口”。在下面有三个选择,分是“保留”“转换为块”“删除”。
保留:对原有图形不做变化,系统储存为块。
转换为块:将原图形转换为块,系统储存为块。
删除:删除原有图形,系统储存为块。
不管在选择各一个选项,在文件中都会系统储存为块,可以通过“插入块”I,进行取出图形。完成以上步骤后按“确定”退出。
已经为块的图形,双击块,可以进入块的修改,修改后同一个块复制都会改变。
➁“阵列”AR,进行快速复制操作,阵列分为:矩形阵列与环形阵列。
矩形阵列:做上下、左右的等距复制操作。
输入AR,选取对象,在矩形阵列中事先看到是行与列,行是竖向的数量、列是横向的数量。在行与列中输入你想要的阵列数量,右边预览框可以先预览。往下有行与列的偏移量的设置,偏移量是指第一基础点到第二基础点偏移数量,操作完成确定退出。
环形阵列:做绕中心点做旋转复制操作。
输入AR,选取对象,选取旋转中心点,
1、项目数量:是指阵列时复制的数量。
2、填充角度:是指阵列时应许复制角度量。
操作完成确定退出。
3、绘制完内部图形后,在外侧制作一全围边。(内部斜纹45°,可以使用“等分”DIV。)
“等分”DIV,把一段线分成不同数量相同距离的命令。
操作步骤:输入DIV,空格确定,选择等分对象,输入等分的段数,空格完成操作。
操作完成后,“线”会被“点”分成距离相同间距。在没有设置点样式时,一般默认为小点(看不见的点),为了方便使用点就必须把点放大。
格式——点样式——打开点样式窗口,可以看到有许多的点样式供我们选择,可以一个造型中等点样式,以便以容易选择。在往下是点的单位大小:按毫米计算。
点的“相对大小与绝对大小”。
相对大小:相对大小是对屏蔽的缩放而变化。
绝对大小:按所给的单位大小设置,不改变单位数值,不会做任何变化。
4、要求贴墙余量板尺寸大致相同。
5、对图形添加标准。
6、对其编号与开料下单。
“正交”F8,开启正交绘制、移动、复制等操作只能进行上下左右。关闭正交起操作转换为360度。
“移动”M,对图形做位置的移动操作,图形大小不做任何改变。
操作步骤:输入M,空格确定,选择移动对象,选择基础点,选择终点,基础点与终点公差就决定了你移动距离、方向、角度。
“复制”CO,对图形做复制操作,数量增加,图形大小不做任何改变。
操作步骤:输入CO,空格确定,选择复制对象,选择基础点,选择终点,基础点与终点公差就决定了你移动距离、方向、角度。
“修剪”TR,对超出的线进行删除操作。
操作步骤1:输入TR,空格确定,选择基础线,空格确定,选择被删除的线,空格确定。
操作步骤2:输入TR,两次空格确定,选择被删除的多余线,空格确定。
“延伸”EX,对未连接的线进行延长操作。
操作步骤1:输入EX,空格确定,选择基础线,空格确定,选择要延长的线,空格确定。
操作步骤2:输入EX,两次空格确定,选择要延长的线,空格确定。
“刷新”RE,对窗口缩放大小限定时,进行刷新。(也可以双击鼠标滚轮)
拼花练习1
要求制作1200*1200的拼花。
如图:

打开CAD,菜单栏——插入——光栅图片参照——打开需要的图片
用“多段线”PL参照拼花造型描绘。
操作步骤:先用线段把拼花分成“4分之1”或“8分之1”。
输入PL,选择基础点,“圆弧”输入A,“第二个点”输入S,开始重复的圆弧描绘,转化成“直线”输入L。
(要求:一般情况下,拼花的外圈围边尺寸4边相等,数值为整数,)
(注:在描绘图形时,不要出现特别尖锐的角。)
如图:绘制8分之1

在使用镜像绘制整图 如图:整图

拼花材料表明图(工程提供)
“圆”C,
操作步骤:输入C,空格确定,选择圆心点,输入
半径数值,空格完成操作。

1、给拼花算面积,制作加工图。
在刚刚完成的拼花中取4分之1,取4分之1是为了方便计算。
如图:

将其填充,在分解图形算出4分之1的面积。
使用“边界创建”BO,取出造型。
操作步骤:输入BO,空格确定,出现边界创建窗口,选择要编辑的空间,空格返回,确定。
将不同材料的造型放入不同的“图层”。跟以便以我们操作。
“图层”的运用:图层在工具栏的第二行、第二个。
1、在图层工具的最前是图层编辑器:用于新建、修改等作用,
2、从灯泡到锁都是图层开关与冻结按钮。
3、图层的选择与运用。
点击图层编辑器按钮,进入图层编辑器。

前两个按键为新建图层,三是删除,四是设置为当前图层。

如图:在这个窗口中,我们就可以对图层的名称、颜色、线型、线宽进行设置。
使用“列表显示”LI或“*人贱**工具”Y获得各造型的面积。
将刚“获得面积”*4 / 1000000 = 整体平方米
将出来的造型有序的排放好,再将所有造型复制叠加在一起,划分好切割线。
完成。
拼花练习2
要求制作1800*1200的拼花。
如图:



门槛石与窗台板
一、门槛石
门槛石的作用主要用于地面铺设时连接不完美“接缝填充”,起到“美观”作用。
一般量出门套的长与地面板材拼接余留量的宽。(门槛石一般在施工到中后期进行安装)
如图:(门槛石样式)

门槛石檐口如果要求造型加工的话,在檐口上绘制表示线形,表示加工要求。
二、窗台板
台板分类:落地板、檐口板。
1、落地板:
广义:所谓的落地板就是指放在地上的窗台板,常用落地窗。
义:一般靠平窗户的窗台板叫做落地板。
2、檐口板:板材檐口造型超出窗户墙体的叫做檐口板。

线形表示:

板材檐口要做造型,将要做造型的檐口想内偏向一小段距离,在设置线形。(线形的样式没有规定。)
同时在旁边将“节点”标准表明尺寸,并转换为块,(有需要的话将节点放大),在旁边注明线形样式。如上图。
“线形样式”设置,在上工具栏最后第三个线形控制器,左击点开,会出现一些已有线形,我们可以这里进行选择,没有你想要的线形就点开“其他”,进入“线形管理器”右边“加载”按钮,进行线性添加,选择你喜欢的线形,确定退出。这个时候在工具栏中就可以选择你刚刚选择的线形,进行使用。

在“节点图”中,我们会以一个三角形来表示:石材的抛光面。如上图。
墙面练习1卫生间
至文件夹“墙面练习”:
CAD文件墙面练习1卫生间,寻找课程内容。
同:表格文件墙面练习1卫生间,石材下单表。

这种倒角的名称与应用。
墙面练习2大厅
至文件夹“墙面练习”:
CAD文件墙面练习2大厅,寻找课程内容。
同:表格文件墙面练习2大厅,石材下单表。


绘制异形节点
1、先测量出节点尺寸 2、将直线画好
3、量出起点到终点的长与高,画出直线。“圆弧”A,下弧左边为起点、上弧右边为起点,选择起点,“端点”E,选择终点,“半径”R,输入半径,空格完成。

4、圆弧大于180度,用三点做圆的方法来制作。
先画出圆弧的终点与最低点或最高点,然后用“圆弧”A,选择起点、中点、终点,做出圆弧,将其连接完成绘制。
一、弧度计算:L
1、同心圆弧算弦长: (L1 /R1=L2/R2)、 (L2=L1/R1*R2)

2、已知圆半径和弦长求弦高。(弦高为H、弦长为L、半径为R):H=R-(R^2-(L/2)^2)^(1/2)

3、求弧长:弧长=2*R*ASIN(H/(2*R))
