资本寒冬?行业暗淡?市场越来越糟糕?房地产开发不行了?······
近几年来,人们被悲观论调所迷惑,把逃离房地产开发和建筑行业作为前途出路。

很多人说:实体经济不行了!对此马云做出有力回应:中国不是实体经济做不出来了,是实体经济由于缺乏拓精神和创新精神而不行了。
缺乏开拓和创新精神,使很多企业跟不上瞬息万变的市场变化步伐。
在城市住宅房地产项目开发上,华钥设计回到设计本源,探索出让产品和市场共赢、开发商和消费者互惠的模式。
我们的方*论法**是:从市场、资本、产品的核心关系出发,去繁归简,聚焦关键。在实现资本利益最大化的同时,为社会创造更加美好的人居环境。
对于甲方,房地产开发的终极落脚点是什么?当然是盈利,达到资本+的目标。
对于乙方,如何满足客户如此需求?必然要掌握关键点进行设计,打造具有市场竞争力的房地产住宅产品。
-
何为「关键」?
「立事物之根本,决胜负之要塞」,万物皆有主次之分,轻重之别。「关键」是华钥对待问题的价值观。去繁归简,聚焦关键,提效率,增价值
-
何为「设计」?
「设」为「筹划、谋略」,建骨架、定方向
「计」为「丈量、核算」,算数据、谋精确
「设计」合为以数据说话的谋划
-
华钥之「关键设计」
以谋略定方向,用数据来展现,为产品、事物、问题找出核心要点所在。
-
那么地产项目中如何找到关键点进行设计?
通过合理设计提升可售面积(住宅、商业、车位)的产品溢价,同时降低可售及不可售面积的建造成本。

-
怎样提升住宅产品溢价?
通过整体规划布局的考量、户型设计优化、整体楼盘的产品形象及内部居住空间优化等方式实现。
-
如何控制成本?
严格控制建筑结构的含筋量及混凝土量,优化核心筒楼、电梯间等公共空间的公摊面积,尽可能使构建标准化以及通过新材料的运用及构造方式的优化减少材料的损耗。

说了一堆理论,也许你有点儿晕。那么接下来「兰州玥珑城项目」这个实例,告诉你「关键设计」方*论法**是如何实现的。
规划产品溢价提升
兰州玥珑城项目位于兰州市安宁区,随着城市的开发与更新,如今项目用地周边已变成高楼林立的城市森林。

由于缺乏外部景观资源,我们只能向项目内部寻求其他价值空间提升。同时如何降低外部交通噪音、周边楼盘的视距、视线干扰等不利因素的影响成为总体规划思考的关键。
因此设计之初,我们对项目地块的周边楼盘的楼栋高度、位置,场地商业及居住价值、日照环境等因素进行了深入的研究分析。


由此我们推导定制出项目的基本规划策略——「大花园、大景观」,让内部花园成为整体项目溢价提升的第一要素。

在此基础上,我们进一步分析了项目内部不同楼栋位置在景观视野、楼栋间距、噪音影响及视线遮挡等各方面的优劣等级,评定出不同楼栋的位置价值,针对性地设置户型产品。我们决定在位置较优处设置大户型,在位置一般处设置小户型,同时在户型平面上通过其他方式尽可能补足位置上的劣势。

最终,本着「将景观资源利用最大化,提升整体规划产品竞争力」这个原则,我们确定了项目的基本规划布局。

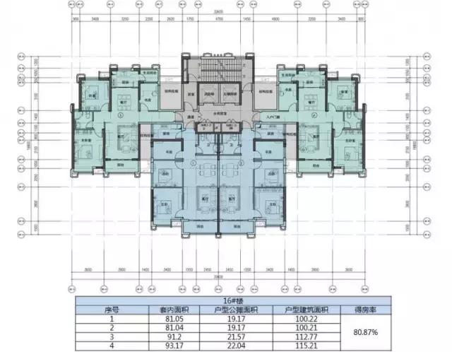
户型产品溢价提升
户型设计上,我们的首要原则是遵循当地居住习惯。通过实地考察与调研,我们定制出了最适合本项目的户型产品策略。

并且在满足当地居住要求住宅内部功能配置基础上,我们尽力提升户型整体舒适性。

考虑到作为北方城市的兰州对日照有更多的需求,我们采用了三开间朝南的户型设计,争取更多的南向采光的同时,将更大的景观面向花园展开,这对比兰州市场一般两开间朝南的户型产品显著提升了户型的溢价空间。

户型方正、南北通透是我们产品设计的基本特点。在此基础上,我们尽可能增加户型的赠送面积,同时考虑内部空间功能的灵活性及可变性,实现空间的升级改造,进一步挖掘产品卖点。

整体形象及内部空间产品溢价提升
在产品外观风格选择上,我们采用了兰州市场接受认可度较高的artdeco风格。同时对小区主入口、沿街商业的整体造型、顶部檐口、线脚、材料运用等方面进行细致刻画,从而提升项目的品质形象。

△小区主入口效果图

△商业沿街效果图
商业空间产品溢价提升
设计之初,我们首先会对商业不同的模式进行比较与测算。

通过区位分析与周边商业环境的分析与评估,我们认为商业内街能有效地提升整体区域商业氛围,增加沿街商铺数量。同时,一二层一体化的商业模式,能很好地降低二层商铺的销售去化压力。转角或端头设置大商铺也能使商业空间溢价有较大的提升。


△商业内街效果图
开发成本控制
在了解如何控制开发成本前,我们首先要了解一下住 宅项目开发成本控制所包括的内容:
◆ 结构的含筋量及混凝土量(结构平面要规则方正、高宽比控制合理)
◆ 电梯间的公摊面积(控制公摊面积)
◆ 构建的标准化(窗户尺寸、门尺寸等)
◆ 材料运用及构造做法(减少贵的材料使用,构造做法简洁,避免过多纯装饰性构建)
◆ 竖向设计合理(减少土方量,尽量做到土方平衡;竖向结合地下车库设计,利用高差减少土方开挖。)
◆ 地下车库设计合理性(净高、覆土、结构、设备、人防)
在兰州玥珑城项目设计当中,我们将楼梯间置于外侧,直接通风采光,避免封闭楼梯间加压送风设备管道的面积占用,同时通过各专业的协同设计,将设备管井的面积最小化,有效地提升标准层的实用率。

在地下车库的平面布置上,我们通过经济的柱跨、柱网与楼栋位置的模数优化、合理设置人防、设备用房及消防分区,在包含人防的情况下,单车位停车面积控制在38㎡以下,有效地提高地下车库停车效率(一般地下人防车库单车位面积为40㎡)。
此外在地下车库层高设计上,通过各专业管线平面及竖向上的空间优化,尽可能地压缩竖向空间的占用,在保证净高的前提下,将层高做到3.6m,同时通过室外场地竖向设计的优化,减少覆土高度,大大减少了地下车库的土方开挖,降低开发成本。

△总鸟瞰图
追逐利益是资本市场永恒的话题。美好人居环境是消费群体所关注的核心。优质房地产产品和开发商利益并不是一种对立关系。设计者的使命,就是为这两者找出平衡与共赢。
去繁归简,聚焦关键。华钥设计院,致力创造更加美好的人居环境。