上海业主在买房时看中了均价在8万/㎡左右的古美华府,但对于145㎡户型拿不定主意,就想听听大家的意见以求个心安。
我觉得吧,80分三星户型还是值得二孩家庭购买的,但方形大厅,确实有面积浪费之嫌。具体理由如下。

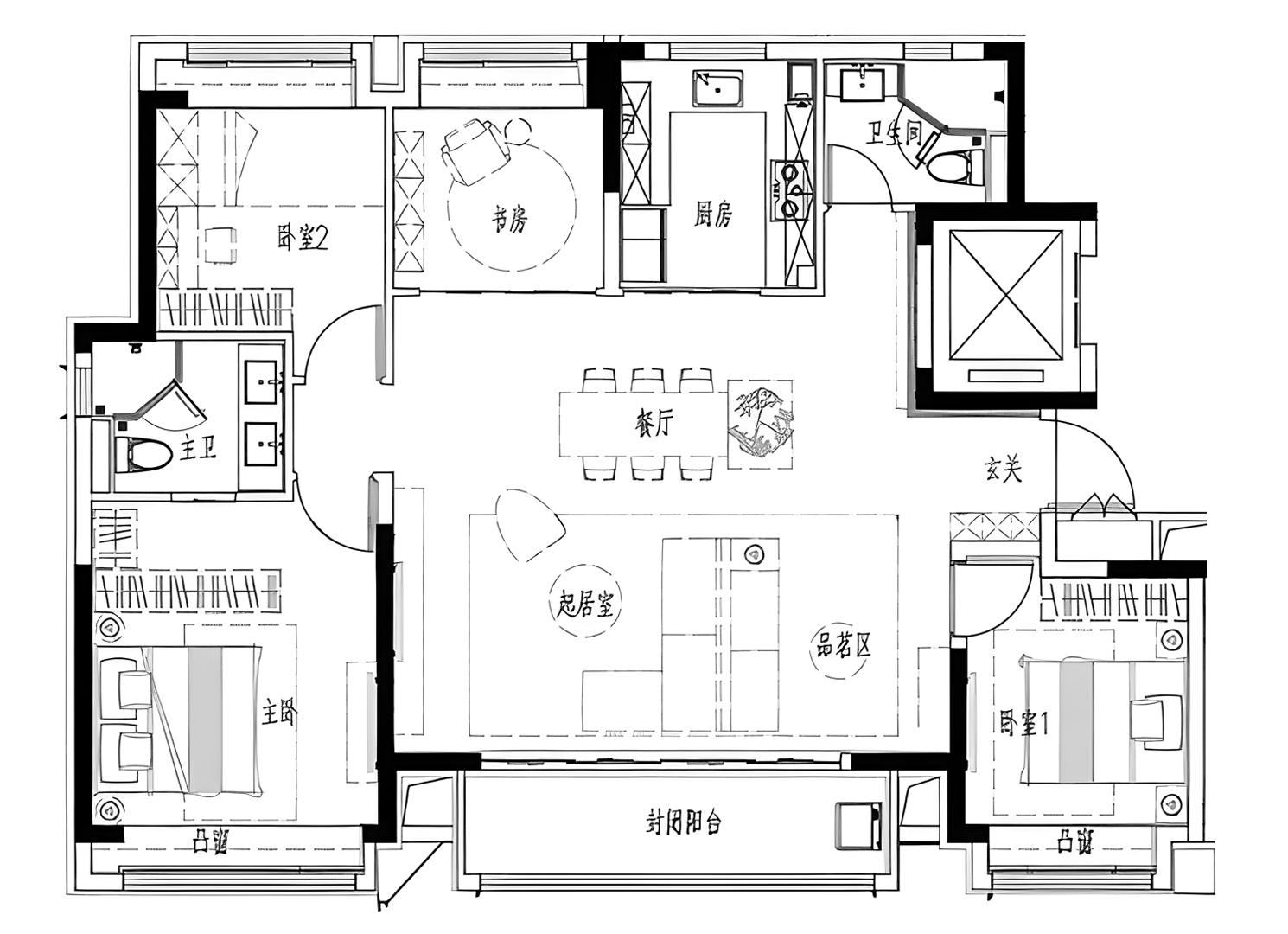
首先, 要提醒大家注意,标准层平面图中我并没发现消火栓的位置,所以到时候你们就需要问上一问了。
另外,两部电梯,哪个大哪个小诸位总归看得清吧?
林先生说不适用于本案。我晕,我是来帮诸位选房子的,多分享点选房小知识难道不好么?万一将来能用得上呢?笑。
其次, 四室两卫的改善户型,市面上的主流建面还是在140㎡左右。本户型145㎡,虽略有超标亦属正常范畴。因此仅就投资价值指标而言,本户型还是相当不错的。
多提一句,在当前各个房价段位中,我认为1200万-1300万左右的房子,应该才是最受欢迎的。
再次, 大横厅的格局最宜客餐厅横放,因为对于动区,这两个功能用房就代表了一切。
那现在如此方正的过道(四个区域)怎么摆放、怎么充分利用就需要诸位削尽脑尖了。只不知层高多少?大空间还得用大层高来匹配啊。
除此之外,在书房独立的前提下,我会直接判定本户型存在明显的面积浪费现象,差评送上。

最后, 四开间朝南指标当然宜居,主卧套也算中规中矩,但两个次卧在尺度上感觉还是略有不足。还好,两个卫生间全明。
综上,可以给予本户型80分三星不错评级,最宜二孩家庭或是三代同堂业主改善自住。
大家觉得这个户型怎么样,是否值得购买?咱们评论区见。关注我,一起让选房变得更简单。