注 :文中部分信息已更新,但价格不方便更新,主要品鉴社区定位、品质和户型特点。
熙龙湾二期,2011年入伙,共695户,以四房五房纯大户型为主(加上赠送面积,可根据需要拓展几个房间),小区均价在11-12万/平左右,楼王栋、个别赠送多、装修好的均价可能高至13万+。
作为宝安中心区的老牌顶级豪宅,也是鸿荣源早期开发品质最好的楼盘,和一期一路之隔,学位就差了一大截(一期带的是海旺学校学位,二期则是宝安实验学位);同时是90/70政策屠刀下的幸存者,户户带高赠送,且属深圳少数的非拼合纯大户豪门社区,要知道在当时,非拼合户型是开发商售房时的一大杀手锏,但真正能达到小区全是非拼合户型的少之又少,就连深圳湾的鸿威海怡湾当时也是挂羊头卖狗肉,除部分是非拼合外,其他都是拼合的。
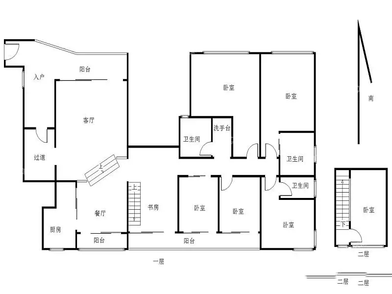
熙龙湾二期,基本上都送入户,其中偶数层入户比奇数层大,户型更实用,依据户型结构我们分三个阶梯分析:复式海墅洋房、7栋和3栋楼王、入门级户型。

小区最近海的是稀缺复式海墅,仅32套,当时样板房设计在一楼,加上赠送达到650平的实用率,差不多是建筑面积的3倍,这样震撼的实用率开发商开盘也是惜售的,而且命名“龙御”造势。
1栋、2栋都是8层墅级洋房,顶层设计总统套卧,前后送超大露台,首层前后送私家花园和地下室。
1栋01户型为349平送74平左右,02户型为371平送80平左右;2栋01户型253平送58平左右,02户型267平送54平左右,二者户型结构一样。洋房总价在小区中是最高的,客户群体很少,一般是对宝中有偏爱,或者看中未来潜力的人群才会购买,交易活跃度低,目前没有放卖。

3栋和7栋是楼王栋,基本上中高楼都是一线海景,除了海景资源,户型也是小区最优的,主打复式和跃式平层,在这两栋主要户型中,每种户型又都有细微的差别,能够多方位的满足不同大户型买家的口味。
7栋楼王,3梯3户,位于花园中间,270度海景和花园景观均享受,相对3栋02户型临路来说,7栋三个户型都绝对安静。
其中01户型是278平南向,赠送非常多(在81平左右,所以复式的单价也会比较高,再加上装修的话,出现一些单价13-14万的也是正常,具体大家可以看图示),进门处还带6米高露台,超大L型阳台,住家舒适度非常高,很少放卖。(户型格局参看下图)

虽然是楼王栋、户型好,但低楼层是个无法改变的硬伤,视野、采光之类都受影响。你继续卖,卖得出去算买家输!下图就是这个在卖的01毛坯房,阳台是真的宽敞

02、03户型都是226-228平左右西南向的跃式大平层(赠送在64-69平左右),进门送大入户,奇数层和偶数层的区别就是露台位置不一样(在餐厅或客厅旁边),偶数层比奇数层实用,客厅餐厅均带阳台,通透性非常好,视野会被01户型遮挡部分,不过房间之间私密性好,房间可根据需要改到7-8个,实用率非常高。(下图分别是02、03户型图


三种户型中肯定是01户型要好点,但是也要看个人喜欢,同样是大面积户型,考虑景观的话,复式还是平层,都可以根据自己需要来选择,具体就看总价范围和性价比了。这几个户型放卖和成交都比较少,仅有的就是上面介绍的两套卖了3年多、价格不断往上报的房子。初期买这里的群体主要就是从住家出发,资金实力都不差,现在受前海自贸区辐射,加上欢乐海岸已经开建,日后升值绝不是问题,现在就已经提前涨了一波了,这两套在卖的能近3年之久,业主看涨心思再明显不过。
3栋小楼王有01、02、03三种户型,都是西南向,整体卖点和格局上与7栋楼王接近。
其中01户型是288平中空复式5房,赠送在81平左右,进门带6米高露台,也是超大L型阳台,住家舒适度非常高,很少放卖。
02户型179-182平左右大平层,赠送59平左右,送大入户和景观露台,奇数层和偶数层的区别就是露台位置不一样(要么在餐厅旁边,要么在客厅旁边),客厅餐厅均带阳台,通透性非常好,左边视野会被01户型遮挡部分,实用率也高。
03户型191-195平左右大平层,赠送66-63平左右,和02户型一样,奇数层和偶数层的区别就是露台位置不一样,此外进门还送6米高大露台,相当于02户型的大入户变成了大露台,前后带双阳台,右边视野部分会被遮挡。
二期也还有总价低点的中等大户型(最小是3房),分布在4栋AB单元、5栋BC单元,都有赠送,只是赠送的面积没200平以上的面积大。
二期也还有总价低点的中等大户型(最小是3房),分布在4栋AB单元、5栋BC单元,都有赠送,只是赠送的面积没200平以上的面积大。
4、5、6栋我们就简单介绍下,大家可继续参看下面这张图表对不同户型面积的标注(稍有误差,但不影响),最前面的数字是户型面积,后面是赠送面积,一个面积对应后面两个小面积的,是奇偶数层赠送不一样。

4栋AB两个单元连在一起,二期入门级户型都在这里,也是小区第一批开盘放售的。其中AB单元03户型都带三角形入户,A单元04户型带方正入户。
5栋ABC三个单元,其中BC单元连在一起,都为平层户型,总高29层,均朝南看花园、游泳池,详细面积和赠送参看图片。其中BC单元的02户型都是奇数层餐厅出阳台,偶数层客厅出阳台;C单元02、03户型入户有的方正,有的是三角形入户。
6栋分AB两个单元,A单元为2梯2户, B单元为2梯3户。A单元都是跃式大平层,虽有赠送,但是都没有入户。B单元02、03跃式大平层偶数层赠送比奇数层多。

小区自身因素是,单证大户型,自住占比高,住家氛围好——强于壹方中心玖誉和壹号公馆;带实验学位、楼栋密度低——直接和一期拉开距离;楼下虽没有大型商业配套,但满足生活基本需要,人流车流少,住家安静;地段一流,自贸区宝中第一滨海豪宅(地段和区域格局对标深圳湾翡翠海岸),前面欢乐海岸2.0都是低层建筑,海景资源在远期规划上基本不受影响,沿江高速下沉方案也已确定了。
当时买这里的老宝安人居多,所以自住占比高,投资的也有小部分,但是目前情况来看,不管是自住还是投资业主,都惜售,从上面在卖的几套案例就可以知道,3年没卖出,价格还越卖越高,业主们真不急卖,倒像是在不断试探市场的接受度如何,生怕贱卖了,毕竟都深信欢乐海岸、滨海公园一带起来后还要涨一波。
要说他最大的缺陷,就是总价和单价都高,一期现在也不便宜

当前的二期的价格大家都觉得很高了,可能要回落,深圳湾的翡翠海岸之前也被吹得很高,而在调控加码下,目前价格稍微有点回落,主要这里住家的多,放卖少下也不明显,总之就是价格并没有新的突破,大幅回落也不可能。
宝中虽然不能直接对标深圳湾,但从潜力值上挖掘,熙龙湾房价可能暂时回落不了,基建不是白建的,毕竟是宝安乃至自贸区重点打造的顶级区域,个别急卖业主降价抛盘影响不了小区均价向上的大势,反而是买入机会。
不过肯定不是一般人都能买入了,有钱任性,就图圈层、住家档次的,还是建议去深圳湾淘,未来宝中也不差,就看个人如何选择,预算差不多到位,对宝安情有独钟、后期还想赚点房产升值带来的红利,熙龙湾可以考虑,学位要想不差,那肯定偏向二期了。
欢迎大家关注评论,共同探讨房产置业问题!!