一个舒适的二层农村别墅,定能唤醒内心深处轻快的自己,农村自建房发展至今,不变的依然是那份实用且安逸的居住感受。
今天我们为大家带来的户型,正是基于实用这一原则上设计而出,二层小宅,经典大气,结合当下所必备的挑空客厅与上人露台,更能带来别致享受。
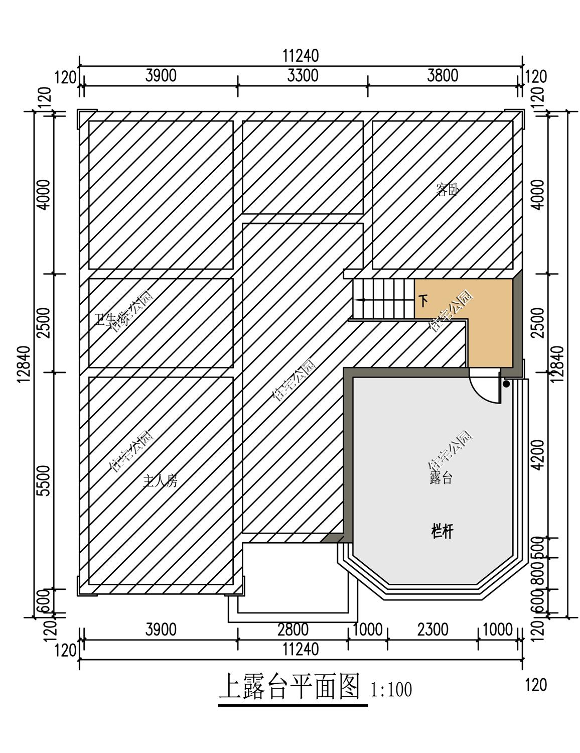
住宅特点:适中占地、挑空客厅、上人露台、弧形采光窗。

占地尺寸:11.2m×12.84m
占地面积:143.8㎡
建筑面积:246㎡
建筑高度:9.152m
建筑结构:框架结构
建筑情况:5卧室 1厨房 1餐厅 2卫生间 1大客厅 1起居室 1露台

平面布局图:
按照业主需求,房屋设计为简欧风格,将近一半的面积由接待空间所包围,7.1米的面宽尺寸,大气丰盈,十分舒适。
厨房双向采光保证室内明亮,厨餐一体化设计,空间合理运用,就餐极为方便。
洗漱空间做了干湿分离设计,提高生活效率。
一间老人房,满足父母生活;一间储藏室,满足杂物堆放的需求。

二层四间卧室,布局井井有条动线分明,挑空客厅增加了房屋室内阔度,视线无遮挡。
考虑到房屋面积受限,因此并未在卧室里设计卫生间,一二两层均设有干湿分离的卫生间,方便生活。

小楼梯可通往露台,日常衣服晾晒有了去处,还可以在露台这里放上太阳能热水器,怎么实用怎么来!

关注本号,每天都有新户型,还有乡邻晒家,建房省钱小妙招一手掌握。