
人与建筑的交互,视线与光影的协奏,透过建筑与光影,在行进中感受时间的流淌。

项目位于中山市南头镇穗西村,针对场地周边多为农田和住房,道路尚未开发,场所体验较差等特点,售楼中心在设计之初提出设置道旗、精神堡垒、植物、挡墙,提高项目标识性,设置围挡屏蔽外界环境,营造场所体验等策略。


展示区设计所营造展示氛围引起人的情绪变化,而这正与海浪不同形态相关,设计中用场所情绪曲线结合海浪形态落入场地。我们提取海浪线条,与场所情绪结合,分起势、蓄力、高潮、潮落四个部分海浪线条而融入场地。


项目提出创造具有时代气息的生活方式,塑造丰富的城市空间,打造中央景观庭院小区的建筑规划理念。基于建筑风格,整体设计结合当地生活,以现代艺术手法剖析场地,以自然、轻奢感受诠释场地,缔造时尚现代的生活方式。


整体立面打造为现代、简约、动感的建筑风格。采用简洁的体量,结合光线、镜水,让光影的变化显得灵动而极具层次。


立面精细化控制,与成本控制互相调和,追求最佳的立面效果,兼顾幼儿园规范要求与销售中心使用需求。外饰面以石材、玻璃和深色金属为主要材料,微微起伏的U型玻璃,错落变化的肌理节奏,营造精致时尚的现代气质。



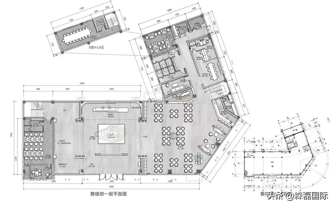
一层平面图

二层平面图