这是围绕一位艺术家的工作需求和生活状态而设计的建筑改造项目,55这个数字对于业主而言代表特殊的意义,所以我们将这个项目命名为Apartment 55(A55)。
This is an architectural renovation project designed for working requirements and living conditions of an artist. We named the project Apartment 55 (A55) because the number 55 has a special meaning to the owner.
▼露台夜景,terrace night view

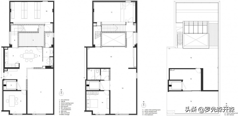
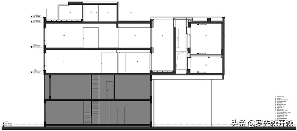
场地位于一栋五层公寓的顶楼,业主希望保留现有露天庭院,同时兼顾工作,会客,展览,起居等功能。希望营造创作空间的绝对隐私感,对于作画的位置,光线的角度和视线所及的景象,都需斟酌考量。这个项目的挑战在于,在原有结构的承载力限定下的腾挪转移。空间梳理之后我们重新定义了建筑和庭院,组织安排了动线和垂直交通。在对整体结构进行了全新的计算之后,新增荷载控制在9吨之内。设计的全新钢结构被‘绑’在原混凝土框架结构之上,避免对原结构产生负面影响,并起到一定的围箍作用。
▼功能分区示意图,function division diagram

The apartment is located on the top floor of a five-story building. The owner wants to keep the existing courtyard and ensure the functions of work, reception, exhibition and daily life at the same time. His studios require an absolute sense of privacy, thus it takes a great amount of consideration about the position of the painting, the angle of the light and the vision of the artist himself. The biggest challenge of this project is how to renovate and make rooms for all functions within the limits of the carrying capacity of the original structure. After reorganizing the spatial arrangement, we redefined the building and courtyard, and rearranged the horizontal and vertical circulation. The added load is controlled within 9 tons after the latest calculation of the whole structure. The brand-new steel structure is “tied” to the original concrete frame so that it can not only avoid negative impact on the original structure but also play a certain role of enclosure.
▼一层餐厅,dining area on the first floor


▼厨房,kitchen

▼从展览空间望向餐厅,view to the dining room from the exhibition area

▼一层展览空间,exhibition area on the first floor

在空间规划和动线上,是由主入口开始向内延伸的公共区(会客,展览),向半公共区和私人区域(起居,画室)过渡。每个空间性质的转化,通过轨道移门的开启和关闭,窗的位置和玻璃透明度,结合楼梯和走廊的过渡空间,来引导访客对于空间的可见和可达性。我们在工作区域为艺术家设计了三个画室,通过新增钢结构来控制层高,开窗和房间的尺寸,同时通过自然光和墙壁的反射对画室光环境的影响,营造了氛围各不相同的创作空间。
▼流线及结构分析图,circulation and structural diagram

As for the circulation and spatial planning, it starts at the main entrance and goes inward to the public areas (reception room, exhibition room), and transitioning towards the semi-public areas and private areas (living room, studio). In order to provide visibility and accessibility for the visitors, they can experience the transformation of spatial properties through the opening and closing of the sliding doors, the position and transparency of the window, and combining the transitional spaces between the stairs and corridors. We designed three studios for the artist in the working area, and it constructs different creative spaces with various atmosphere by controlling the height through the new steel structure, the position of the window and the size of the room, the effect on the light environment through the reflection between the natural light and wall.
▼二层大画室,the large studio on the second floor


▼二层工作室,working area on the second floor


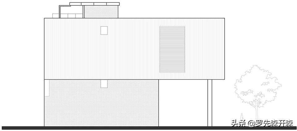
为了增加空间的隐私感,内向庭院中新增建筑立面的幕墙起始标高为5.6米,这意味着首层会客区的视线高度上没有任何开窗,让整个庭院成为一个均质的露天展览空间。立面背后由隐藏一层通向二层大画室的楼梯过渡空间,玻璃幕墙结合庭院和天光作为一个自然采光的玻璃盒子,以此来过滤直接进入大画室的自然光,使得画室光线更加柔和。天光渲染了由一层公共/半公共空间,过渡向画室和私人空间的情绪变化和仪式感。
▼庭院,courtyard


In order to increase the sense of privacy of the space, the new curtain wall starts at 5.6meters at the elevation of inner courtyard, which means that there are no windows at eye level of the reception area on the first floor, making the whole courtyard a homogeneous open-air exhibition space. A staircase leading to the large studio on the second floor is hidden behind the facade as a transitional space. The glass facade combines the courtyard and daylight into a glass box full of natural light, therefore filter the direct sunlight that comes into the large studio, and making the light softer in the meantime. Skylight renders the emotional changes and ritual sense of transition from the public/semi public space on the first floor to studio/private space.
▼楼梯间,stair well

空间气氛和情绪的过渡,通过材料的颜色,材质和光线混合构成第二次转化。首层会客区大面积使用深灰色纳米混凝土地面以及墙面,手工打磨的颗粒感配合颜色木纹的纹路和光泽,整体压低会客区的色调,与庭院的淡灰绿色真石漆形成室内外的对比,强调从室外投射进入的自然光给空间带来的精神体验。由一层走廊转向楼梯上二层,空间的色调开始转淡,浅灰色墙面和同色木地板,配合天光强化进入私人工作区前的情绪准备。二层整体使用浅灰色纳米混凝土地面和灰白色墙体,落地玻璃幕墙让光线作为空间唯一的表情,为工作区带来静谧和纯粹。三层露台可俯瞰大画室和庭院,夜晚从玻璃幕墙漫射出的光线,作为城市景观,渲染了整个建筑的气氛。
▼自然光为空间带来精神性的体验, the spiritual experience brought by the natural light projected from outside


The mixture of color, material and light, constitutes the second transformation of atmosphere and emotion. A large area of nano-concrete is used on the floor and wall of reception area on the first floor; granular sensation of hand polished surface with texture and gloss of the wood, which is darkening the whole hue of reception area and in contrast to the courtyard with glaucous real stone paint. It emphasizes the spiritual experience brought by the natural light projected from outside. The hue of the space starts to fade once turning from the corridor on the first floor to a stairway leading up to the second. The wall and wooden floor are both light gray, it strengthen emotions with daylight together right before entering the private working zone. Light gray nano-concrete floor and white wall is used for the whole second floor. Daylight comes though the curtain wall and brings serenity and purity to the working area. The large studio and courtyard can be overlooked on the third-floor terrace, with lighting diffusing from the glass facade at night exaggerating the architecture as an urban landscape.
▼从楼梯间望向厨房,view to the kitchen from the stair well

▼画室木门细部,wooden door detail

A55从设计到建造完工为期三年,在这个限制条件极其苛刻的项目中,我们尝试最大限度地为建筑空间带来与功能相宜的变化和节奏,感知和形式,轻盈和沉重,光影和颜色,希望这些交织在一起的综合体验,连同业主创造的艺术一起,缓缓降临。
A55 takes up to three years from design to completion. Limited to the extremely harsh constraints of the project, we try to maximize the change and rhythm of the building in accordance with the function, along with perception and form, lightness and heaviness, light and color. Hopefully, these integrated experiences will slowly coming together with the art created by the owner.
▼轴测图,axon

▼平面图,floor plans

▼立面图,elevation

▼剖面图,section

项目地点:北京
基本功能:住宅/工作室
建筑规模:300平方米
建成年份:2019年
室内设计:左通右达建筑工作室
施工团队:大有和诚建筑装饰