凤凰网房产快讯 4月15日,凤凰网房产从南京市江宁区人民政府网获悉,NO.2018G54地块房地产开发项目3#、7#、11#、13#、17#规划调整批前公示。

N.2018G54地块房地产开发项目位于南京市宁区信诚大道以北、玉振路以东,用地面积约79.75亩。

(项目区位图)

(总平面示意图)
当前项目单位根据江苏省《住宅设计标准》及消等相关规范要求,拟对该项目3#、7#、11#、13#、17#核准平面图进行调整,具体调整内容如下:


(3#调整前)


(3#调整后)
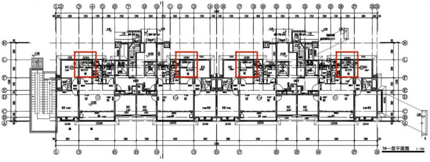
1、取消3#一层至十六层平面中22轴至26轴D轴至E轴相交区域内门洞及局部隔墙。

(7#调整前)

(7#调整后)
2、将7#一层至十六层平面中F轴至L轴区域书房与生活阳台之间的推拉门调整为门连窗。
3、对11#一层平面中17轴至20轴与B轴至E轴相交区域内以及11#二层至十六层、13#一层至十六层平面中B
轴至E轴与13轴至21轴相交区域内书房及卧局部隔墙进行调整;同时对11#、13#二层十六层平面中9轴至11
轴、23轴至25轴与G轴至H轴相交区域内的单扇门调整为双扇门。
4、因设计单位出图失误,补充17#楼一层平面西侧楼梯间及风井。
经核,本次调整不涉及建筑面积、高度、功及地块相关经济技术指标变化。

(效果图)
据了解,金基禄口G54地块案名已定:奥园金基天著尚居。项目地块于2018年12月18日出让,该地块经过1轮竞拍,被金基以总价10.6亿拿下,楼面地价7024元/㎡。
12月29日,奥园金基天著尚居开盘,首开1、2、5、6、10号楼,共计352套精装房源,建筑面积为85-118平,销许均价18777-20132元/平。


(效果图)
最新动态:奥园金基天著尚居预计5月加推352套精装房源,具体信息待定。