上周,西北新城义承金川府和东原印江山的叠墅项目同日获发预售正式上市,这两个项目都是片区内少有的低密度社区,且关注度比较高,那么这两个片区内仅有的叠墅产品究竟怎么样?各自有什么优缺点?小编从项目的区位、规划以及产品多个维度进行来PK一番。

东原印江山和义承金川府都位于西北新城
首先,我们先了解一下两个项目的具体位置
东原印江山位于沙河北路与普吉路口,已签约的红旗小学就项目对面,邻近云南省阜外医院,周边在售的楼盘有三千时光、清河居花栖里,距地铁4号线金川路直线距离约1公里,旁边还有西北部客运站。
义承金川府北临春城慧谷小区,南临上峰新村,靠近西三环,东侧为海源北路高新一小,项目距首创奥来直线距离约500米,旁边还有延安医院高新医院,项目距离地铁4号线大河埂站点约2.3公里,旁边有海源寺车场,多条公交途经。
两个项目的区位都不算片区核心位置,也都离地铁较远,但由于西北新城配套已比较完善,拥有五华区文体中心、宜家家居、吾悦广场、阜外医院、五华区人民医院、以及地铁4号线等配套,居住氛围与生活便利度都不错。
其次,看项目规划

东原印江山效果图
东原印江山项目占地面积189亩,为商住混合用地,分四个地块开发,首推的10号地块,以“高低配”的形式,规划4栋高层和7栋叠拼,容积率2.6,绿地率40%。项目内部规划“原聚场”,后期商业的交付也将提升业主的生活便利度。

义承金川府效果图
而义承金川府则是纯住宅地块,整个项目占地面积140亩,规划了23栋洋房和15栋叠拼,容积率仅1.83,小区内打造约20000平米新中式园林,居住环境清幽。
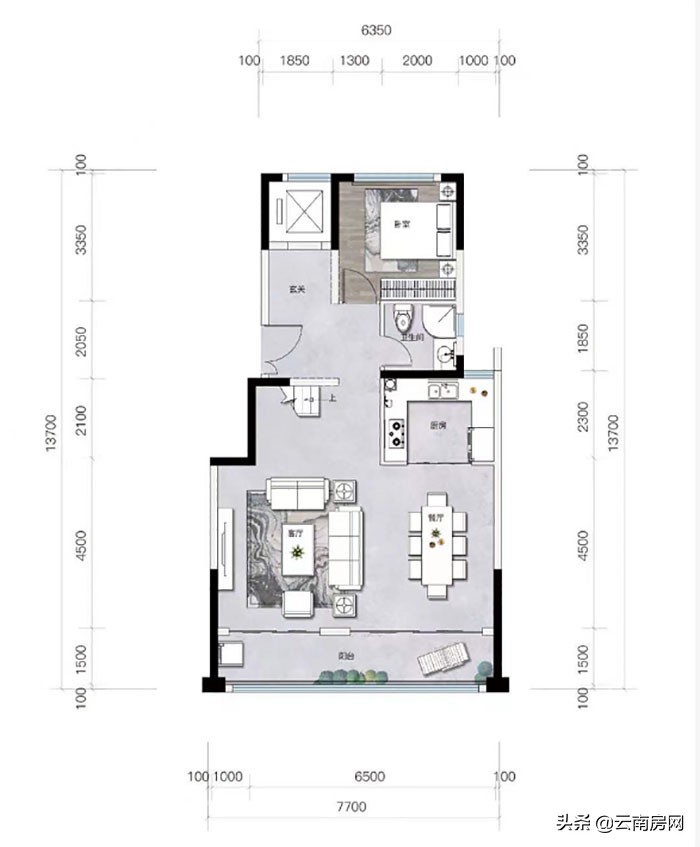
最后看产品,以总价都在300万左右的两个中叠户型为例


义承金川府150平米中叠户型赠送的负一层和夹层
义承金川府建面约150平米的中叠户型,加上赠送的负一层、夹层和花园面积(花园位于一楼北侧),改造后实得面积可达309平米,得房率206%。

义承金川府150平米中叠户型三层平面图
三层除餐客厅外,只布局有一个约11平米的卧室,厨房面积为6.9平米,可满足家人多样的烹饪需求。南向开间长7.7米,外接同等长度的阳台,阳台面积有11平米,与餐客厅相连。

义承金川府150平米中叠户型四层平面图
四层有3个卧室,约7.7米南向采光面,每个卧室都带落地窗。主卧面积有25平米,带步入式衣帽间和独立卫浴。
而东原印江山约143平米的中叠有三、四两层,加上赠送的挑空面积和露台,实得面积约192平米。

东原印江山143平米中叠三层平面图
三层除餐客厅区域外还有一个约9平米的卧室,厨房面积约为5平米,南向开间约8.4米外接约14平米的观景阳台,其开间和阳台要比金川府大一点。

东原印江山143平米中叠四层平面图
四层布局有三个卧室和一个约5平米左右的露台,主卧面积宽敞达30平米。三个卧室也均带有独立衣帽间和落地窗。
两个户型总价都是在300万左右,义承金川府因为有负一层、夹层还有花园赠送,实得面积要比印江山多了将近一百多平米。
那么问题来了,如果你有300万的预算,你会选东原印江山还是义承金川府呢?