
一座信成道,一席上层生活享受
万科信成道,地处太湖新城中心,于无锡滨湖中央,积淀万科32载高端修为,铸就城市核心山水大境之传世墅。天地方圆进退,大观世界,人生如斯,得生活意境于万科信成道,方可体会。
01
部分案例赏析

李伟
从业经验:14年
擅长风格:现代简约 欧式 美式 中式 新中式 简欧
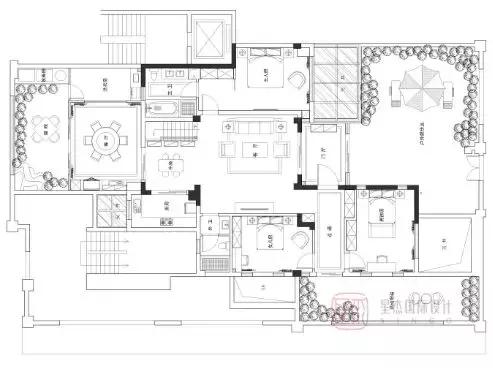
面积:280㎡
设计风格:现代简约
户型:底叠
户型方案

一层平面
效果赏析




设计说明:
简约风格的特色是将设计的元素、色彩、照明、原材料简化到最少的程度,但对色彩、材料的质感要求很高。因此,简约的空间设计通常非常含蓄,往往能达到以少胜多、以简胜繁的效果.简约而不简单!
面积:280㎡
设计风格:新中式
户型:底叠
户型方案

一层平面
效果赏析




设计说明:
硬装以现代的设计手法体现空间的简洁、大气。软装则运用了中式元素,布艺,沙发及装饰画,艺术吊灯,这些精美高档的装饰材料,无不在强调品位与美感。整个空间中所有细节,均以优雅的姿态,内敛的气韵,细腻的设计,诠释着一个清雅含蓄,端庄丰华的美学精神。
面积:270㎡
设计风格:现代简约
户型:底叠
户型方案

一层平面
效果赏析



设计说明:
现代风格以其纯美的色彩组合,赢得人们对它的喜爱。以简洁的表现形式来满足人们对空间环境那种感性的、本能的和理性的需求。在本设计中,客餐厅是整个房间的核心,是最能体现居住者心理的场所,因此客餐厅是设计重点。整体造型采用了天然大理石,餐厅与客厅相连,既是一个独立的空间,又不影响与客厅家庭成员间的互动。


刘欢
从业经验:11年
擅长风格:现代简约 北欧 美式 新中式
面积:350㎡
设计风格:现代简约
户型:中叠
户型方案

一层平面
效果赏析




设计说明:
在空间布局上动线设置合理,客厅餐厅是一个整体的布局,空间大品质高配合着墙面的造型简单大气,主卫设计了双盆既有浴缸又有淋浴区的布局提高了品质感与舒适感,在家庭区的后面设计了一个多功能活动桌既能够打台球又能够打乒乓球,当活动累了保留的榻榻米区域就十分人性化,能够短暂休息缓解疲劳。


蒋辉
从业经验:11年
擅长风格:欧式 美式 新中式 港式
面积:200㎡
设计风格:美式
户型:顶叠
户型方案

一层平面
效果赏析




设计说明:
较多采用嵌入式石膏吊顶,搭配精致的水晶吊顶,营造出一种怀旧、浪漫的感觉。以大理石作为地面装饰材料,光泽感极佳,在沙发区铺上大幅花纹地毯,使空间区域划分更加清晰。复古造型的组合沙发,以及茶几都具有上乘的质感,让美式古典风格得以进一步的彰显。
面积:200㎡
设计风格:现代简约
户型:顶叠
户型方案

效果赏析





设计说明:
现代风格外形简洁,功能性强,强调室内空间形态和物件的单一性,抽象性。现代简约风格的特色是将设计的元素、色彩、照明、原材料简化到最少的程度,但对色彩、材料的质感很高。


董雯娟
从业经验:15年
擅长风格:欧式 现代简约 新中式
面积:270㎡
设计风格:简欧
户型:底叠
户型方案

效果赏析


设计说明:
简欧风格继承了传统欧式风格的装饰特点,吸取了其风的“形神”特征,在设计上追求空间变化的连续性和形体变化的层次感,室内多采用带有图案的壁纸、地毯、窗帘、床罩、帐幔及古典装饰画,体现华丽的风格。家具门窗多漆为白色,画框的线条部位装饰为线条或金边,在造型设计上既要突出凹凸感,又要有优美的弧线。
02
工地直通车

装修似乎总有黑色包袱总总,但我们用行动证明实力,邀你参观星杰在建素颜工地。专人专车接送,360度检视工地现场,让隐蔽看得见。
(ps:目前万科信成道与星杰签约施工的工地有11套,欢迎预约参观)
03
听听过来人的说法
金杯银杯不提老百姓的口碑,
装修前先看看老客户怎么说准没错!


星杰的诞生,源于爱家初心
蓬勃向上,造就了星杰的卓尔不凡
生生不息,象征星杰对卓越的永恒追求
星杰,品牌价值34.38亿
专注别墅大宅定制18年
选择星杰,
专业、可靠、一站式整装服务,
让您安心放心搬进满意的新家。
