好消息,大家期盼已久的
实验小学西校区和梁丰初中西校区
又有新进展啦

昨日
市规划局发布了两所学校
新校区的批前公示
一起来看↓↓↓
1
实验小学西校区

△项目鸟瞰图
建设地点:泗港路西侧、义巷路南侧
建设内容:拟在该地块建设张家港市实验小学西校区,总建筑面积约4.4万平方米,建筑高度约21.85米。

▲地块区位(仅供参考)

▲区位示意图(仅供参考)

△项目总平面图

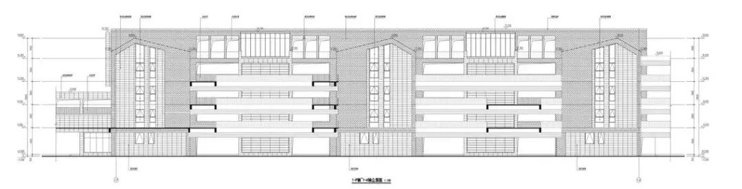
△项目轴立面图
2
梁丰初中西校区

△项目鸟瞰图
建设地点:南庄路西侧、小河坝路北侧
建设内容:拟在该地块建设梁丰初中西校区,总建筑面积约5万平方米,建筑高度约21.2米。

▲地块区位(仅供参考)

▲区位示意图(仅供参考)

△项目总平面图


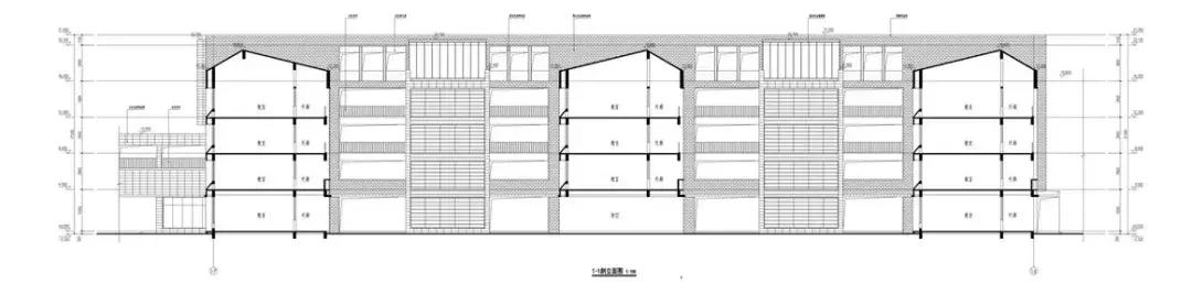
△项目轴立面图
今年上半年,就陆续有外国语学校北校区、世茂幼儿园、暨阳湖幼儿园、北庄幼儿园等一批新学校投入使用,除此之外,张家港还有不少学校正在建设中,那目前施工进度如何?
走,房叔带大家一起去现场看看
1
世茂小学

△鸟瞰效果图
位于西二环路东侧、南二环路北侧,占地约40亩,建筑面积1.75万平方米(含地下停车场4000平方米),办学规模为5轨30班,计划于2019年9月份新学期投入使用。


△现场施工图
目前进度:目前学校外墙饰面已完成,内装工程完成50%,室外体育场水稳完成,在进行外部景观及配套的建设。学校预计今年年底完工。
2
暨阳小学南校区、市二中南校区

△鸟瞰效果图
位于勤星路南侧、棋杆路北侧、南湖路东侧、西溪花苑西侧。该学校西侧为初中部,即市二中;东侧为小学部,即暨阳小学(南校区)。占地约80亩,建筑面积约5.7万平方米。办学规模为中学部10轨30班、小学部10轨60班。


△现场施工图
目前进度:目前已基本完成二次结构施工,开始进入内部粉刷阶段。
3
乘航幼儿园、乘航小学
乘航幼儿园新校址在乘航小学新校址的南侧,占地面积达14.8亩,建筑面积8644.53平方米,按6轨18个班设计。预计2019年2月搬入新园。
乘航小学新校址位于蒋乘路以东、二干河以西,占地面积32698平方米,建筑面积22406平方米,按8轨48个班级设置。预计2019年2月正式投入使用。



目前进度:外立面基本完成,正在进行室内外装修及以校园景观等设施的建设。
4
悦丰幼儿园

△鸟瞰效果图
选址于泗杨路北侧、国泰中路东侧、美辰壹号西侧,占地15亩,建筑面积7000平方米。计划于2020年9月份新学期投入使用。


目前进度:教室主体结构基本完成,开始进入内墙粉刷阶段。计划2019年5月竣工。
5
民丰苑幼儿园

△鸟瞰效果图
选址于东苑路东侧、沙洲东路北侧,占地7.3亩,建筑面积5000平方米,办学规模4轨12班。

目前进度:项目10月份开工,目前进度正在基础施工阶段,计划2019年10月竣工。
此外,市六中易地改扩建工程、塘桥高中食堂、赵庄小学(暂定名)、东城区域配套幼儿园、高职园区中专学校新建工程都在有序推进建设中。
高新区幼儿园(暂定名)、高新区小学(暂定名)、高新区初中(暂定名)、市一中东校区、青少年发展中心5个新建项目的前期手续已经启动办理。
越来越多的张家港学校在建
将为孩子们提供越来越优质的教育
未来张家港的教育资源也将逐渐均衡发展
一出门就到学校的感觉真好
不是么?

来源:张家港楼市网