“小美式”来源于现代美式风,是美式风格的缩小版,甚至混搭各种风格,以体现个性的装修风格。当代个性的社会,人人消费追求个性化,不一味模仿他人,凡事要根据个人的爱好,遵循“我喜欢最重要”的原则。小美式家具和配饰占整个装修最重要的部分,既要延续美式的风格,又要体现个性化。无论墙面、地面、门窗,大都以浅色为主。
协信春山台
项目户型:底跃
项目面积:220平方米
设计风格:小美式混搭风
设计师:张健伟
设计说明
业主是位三十出头的已婚商务人士,喜欢传统文化跟神秘学;
对于设计跟软装要求格为苛刻,在意硬装跟软装的结合搭配,看重实用性。
本案为跃层户型,注重空间的再创造。
设计师将客厅与水吧进行完美融合,使的空间更加敞亮清透;
客厅区域采用更为复古的仿古砖,配合经典的美式吊顶。
灯光的处理上,注重点光源的布设。相互结合后,使得整体空间、氛围相得益彰。
家具的选择上,注重舒适度,采用布艺沙发加上亮色角机,在皮质硬包的映衬下,更显档次与尊贵;
儿童的成长环境要注重色彩搭配,暖墙纸配合护墙电视墙,给空间增添无限的遐想。
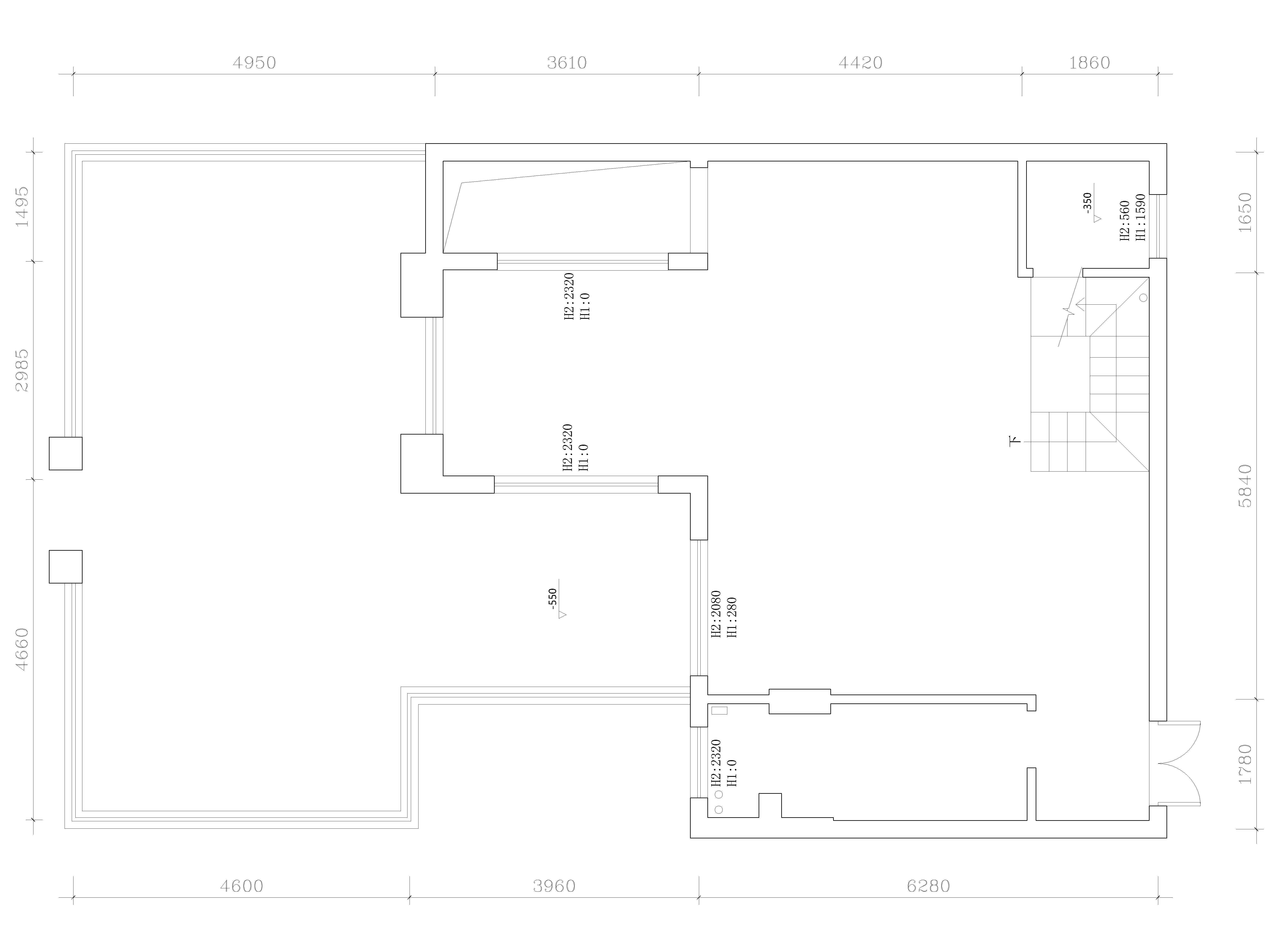
1F

一层原始结构图

一楼总平图

客厅(主视角)
纵横式的吊顶配以原木色系的木质家具跟房门,是美式风格的标志;电视背后的墙纸,是田园风格的体现;
而摩洛哥样式的沙发,似乎一下把人拉倒了北非的异域。

客厅(朝水吧面)
墙面的挂画,是新时代浪潮下对传统的一种探讨;远处水吧的素色拱柱,似乎又将人带到了夏季炎热干燥,冬季温暖湿润的地中海。

玄关
缥缈如烟的挂画,代表着业主对于美的独特理解跟高雅的品味;矮柜背后的摩洛哥风格墙砖配以装饰鹿头,是主人热情奔放的体现。
2F

二楼原始结构图

二楼总平图

主卧
中规中矩的美式卧室陈设,但却用了施华洛世奇蓝来点缀——不得不佩服设计师对色彩的大胆运用。

主卧(另一视角)
灯光的处理上,注重点光源的布设。相互结合后,使得整体空间、氛围相得益彰!

儿童房
偏现代风格的儿童房,虽然与房屋整体显得格格不入,但这也是业主作为父母对于孩子的一种关爱和体贴.
—————底跃方案完善中,敬请期待—————

张健伟,从事设计十五年,喜欢将对天地自然的感悟融入方案中。