

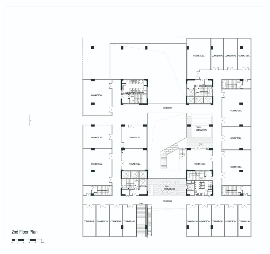
广州万科云起初的定位就包含三种办公的类型,即联合共享办公、扩张型机构集群办公和明星企业小总部办公,后来随着项目的推进,逐步演变成创意设计公社,集展览发布、会议论坛、企业孵化、商业配套和创意集市与创意办公社区相关的空间内容,形成一个办公生态的有机社区。



基于大量的设计研究我们得出,创意产业类项目很多都是厂房改造的,创意产业人员对于Warehouse空间类型情有独钟,究其原因应该是其开敞的平面、灵活的空间和外露的结构。为此,我们首先确定了开阔大平层的空间类型。

垂直厂房图示


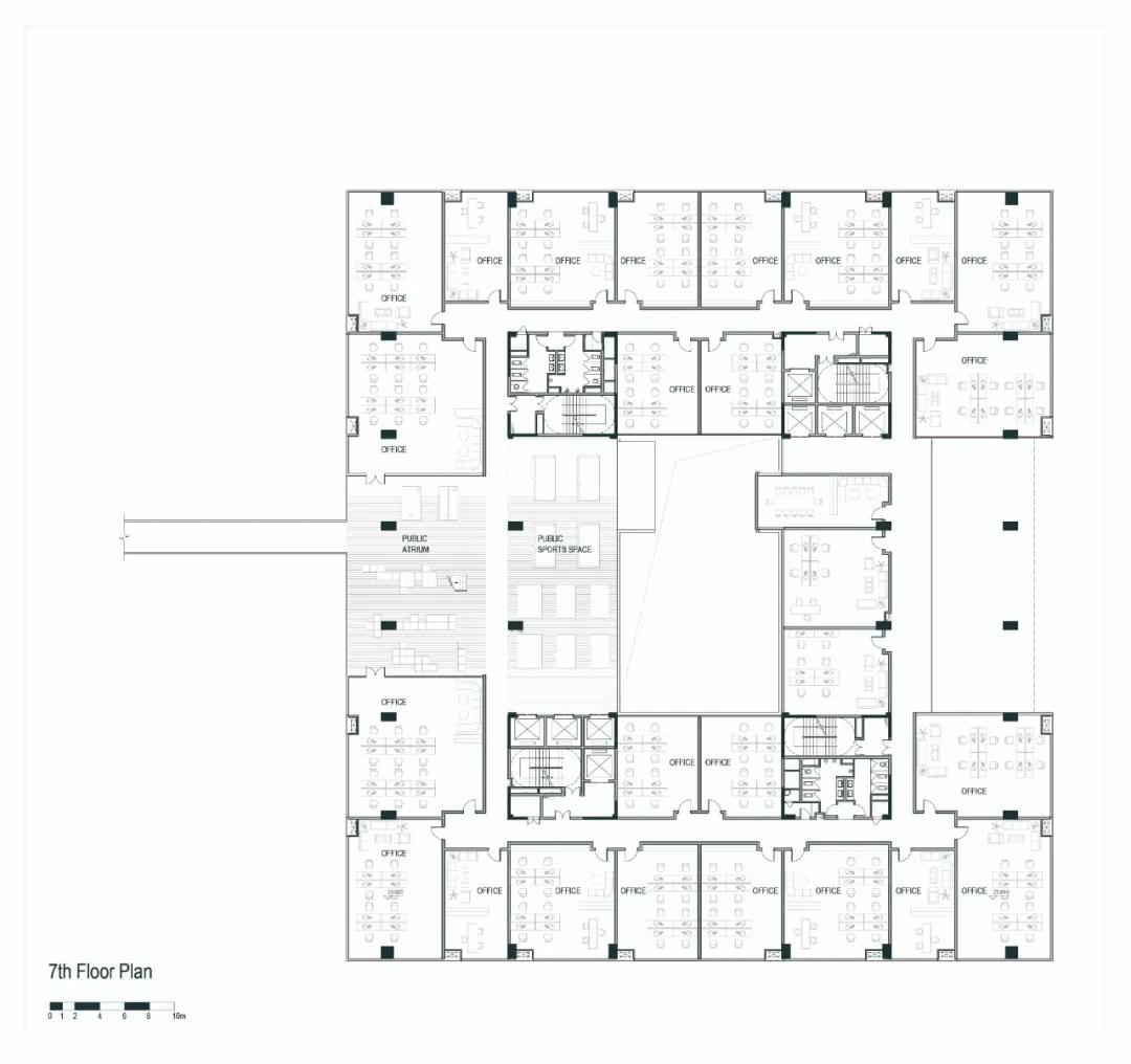
为了在高层建筑中实现类似低层厂房建筑的街道公共空间,我们打开建筑的“核心”,把一个“大核”拆解成几个“小核”,让建筑原本的“实心”变成“空心”,有更大的空间撑满可建设用地,楼板围绕四个核心筒像搭积木一样展开,并在顶层预留了未来企业扩展的空间(后续也确实被入驻企业改造扩建了)。

分核设计概念的三维成形过程

南北剖透视




原本单调孤立的楼板产生了空间关系,低层建筑的街道公共空间出现在高层的结构中,同时,内侧的办公空间也有自然采光和通风,各层大平层均可双侧采光,这里办公的人,也有机会看到彼此,提升了场所认同感。


建筑的入口设计,前期要提供销售展厅空间,后期既要增加人气,保持首层的公共性,又要确保办公场所进出的安全,为此,我们将大厅的南北打通,形成穿堂的人流,增加内部商业的可达性;同时北部大厅的入口设置在西侧,提供一个可以完整独立使用的临时销售大厅。


设计按照每三层共享一个大平台的空间逻辑,随着楼层的变化,依次在四个面的不通高度位置出现。我们在方案扩初阶段采用ArchiCAD的BIM建模型方式,全部外墙图纸由三维模型直接导出成图,所有空调室外机以及顶板等二次结构一体浇筑成形。

夏天自然光照度模拟

项目图纸

概念草图






项目信息
建筑师:iDEA汇城建筑设计(香港)有限公司
地址:华观路,天河区,广州市,中国
项目年份:2019
摄影师:吴清山,广州万科云城
建筑面积:36000.0 m2
主创建筑师:高岩, 肖诚, 郭馨
设计团队:侯天天, 熊伟, 吴苏萌, 许宏杰, 周运, William Louie
景观设计:D+H道灏国际建筑与景观设计事务所
规划单位:深圳华汇建筑设计有限公司
委托方:广州万旭房地产有限公司