房屋类型:旧房局改
楼盘名称:南城都汇
楼盘户型:2室1厅1卫
改造面积:89m²
装修风格:日式极简
背景介绍
这套89㎡的二手房于2013年装修,因原业主买下它后没有自住,而是一直用来出租,所以全屋只做了基础简装,既没有精心挑选装修材料,也没有对整体风格进行设计。

△改造前
且室内采光不佳,风格老旧过时,整体装修略显廉价等硬伤,自然无法满足屋主Rebecca对理想居住空间的期待。
所以,Rebecca在对比多家装修公司后,找到U家工场的兄弟品牌——大改造家实施房屋改造。
户型改造
因Rebecca崇尚断舍离的生活方式,同时也希望自己家风格偏向于极简、便于打理的类型。
所以,除了换墙换地提升空间通透感之外,改造师陈可以还通过调整入户门的朝向,进一步提升了空间的留白感。

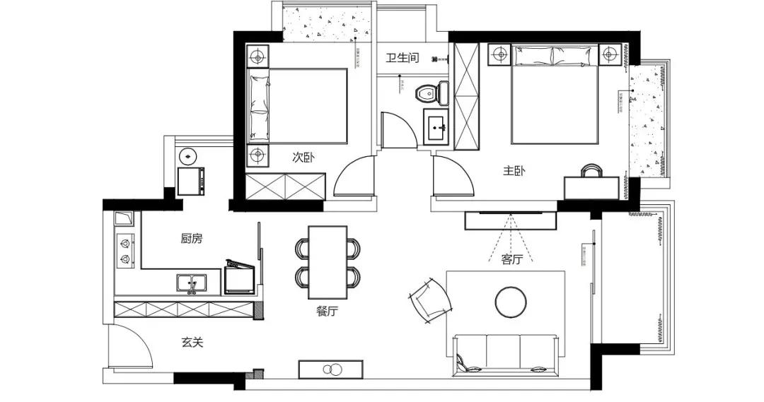
△原始户型图
进门左手边本来是一堵墙,只可通过一扇门进入厨房,但为了
让光线能够自然流入,完美解决室内采光不佳的问题,遂拆除墙体①,将入户门改到了朝向客厅窗户的位置。

△平面布局图
入户&客厅
色彩是协同光影、塑造空间风格的能工巧匠,也是导致原始室内空间缺乏品质感且风格陈旧的主要原因。因此,转换空间风格的第一步便是换墙and换地。

△改造前

△改造后
全屋贯穿白色+原木色+浅灰色的配色方案,墙面重新喷涂白色乳胶漆,更换深色地板为暖色系原木色地板。未对原始户型进行大规模改造,通过色彩的调整,让全屋风格焕然一新。

客厅与餐厅互为一个LDK一体化空间,入户玄关处因入户门朝向的调整而增加了一个大容量的储物空间,一个人住东西不多,生活杂物皆可收纳其中。

灯光是营造氛围感的高手,拆掉了原始装修留下的老旧的吸顶灯,全屋增加吊顶并重新采用了无主灯设计。
内置筒灯+灯带的组合营造了有层次感的光源,光线擦墙后反射向天花板,从视觉上起到挑高空间的效果。

静谧的暖光宛若日光浮影,让整个客厅更显柔软与温馨。

在纯粹、至简的硬装基础上,Rebecca选择了质感轻盈的透明家具和气质温润的原木色家具,替换掉原本体型笨重的家具,让整个客厅虚实相间,更显开阔。

电视柜选择了榉木材质的,相对于樱桃木、橡木等木材,表面纹理更浅,基本只显现木头温润的本色,与极简风格相得益彰。

浅灰色布艺沙发造型简单却经典,恰到好处的高度与坐深诠释着“慵懒即正义”的生活美学。饱餐之后躺在沙发里刷部剧,也是快节奏都市生活里难得的片刻逃离。

客厅中的圆形玻璃茶几造型格外精巧,细腿演绎极简,透明感营造格调。摆一碗水灵灵的当季水果,配一本心爱的读物,就能开启一段不被打扰的下午茶时光。

除此之外,客厅中再无其他功能性家具,偶有待客需求,一只随手可折叠收纳的单人椅既能满足落座需求,也能融入整体风格。

因为临街,所以保留了客厅阳台的推拉门,一方面隔离噪音,一方面可以划分出一个独立的休闲空间。

阳台内的地面抬高,全部改造成了榻榻米,关上门,便能拥有一段全然不被打扰的私享时光。
榻榻米的地面铺设花砖,更显轻松活泼的氛围感。

餐厅与客厅相连,以一个原木色餐边柜相隔,整体风格与客厅保持一致。
原木色四人餐桌除了用餐之外,也会被当成办公桌来使用。餐桌椅特地选了细腿设计的,更具轻盈感。

白色吊灯是整个餐厅的华彩部分,上窄下宽的筒型造型更有利于光源均匀扩散,柔和的灯光点缀一蔬一饭,轻松愉悦的用餐氛围让食欲也被调动了起来。

餐厅的墙面还挂有整个房间内唯一的墙面装饰,“人生如梦”四个字简直是动漫《春宵苦短,大胆前进吧少女!》的极简版,“踏梦而行”的热血在此注入。
—Before&after

△改造前

△改造后
餐厅&厨房
用餐与下厨空间不仅要敞亮,还要装备齐全好打理。
原本的厨房昏暗、陈旧,令人望而生畏,瞬间丧失了下厨的欲望。

△改造前
改造后的厨房干净明亮、动线清晰,让做饭这件生活琐事变成了令人沉溺其中的快乐享受。
厨房充分“榨干”空间,做了大面积的定制橱柜,锅碗瓢盆尽收其中,保持下厨区域的整洁与清爽。

△改造后
盥洗池下方换成了原木色橱柜,与全屋色调保持统一。墙面贴白砖,上方吊柜的门同样选择了白色,同色系搭配从视觉上“抬高”层高,避免小空间内的压抑感。

重新设计的L型动线更符合屋主日常下厨习惯,洗、切、炒等步骤皆可流畅完成。
—Before&after

△改造前

△改造后
卫生间
老气的吊灯与门框,缺乏足够的储物空间,幽暗潮湿......是原始装修中卫生间需要改造的重点。

△改造前
改造师将卫生间的入户门更换成了白色,墙面统一铺设浅灰色瓷砖,拆掉积满灰尘的旧吊灯,改用简约时髦的LED灯带内嵌在镜柜内,提升了卫生间的明亮度。

△改造后
定制浴室柜采用上镜柜+下抽屉的设计,充分利用每一寸空间,将大大小小的瓶瓶罐罐全部收纳其中,保证台面空无一物。
同时盥洗台下方的储物空间做成抽屉式,便于物品分区摆放,大大降低了收纳成本。

拆掉了容易藏污纳垢的玻璃门隔断,以浴帘代替,隔离洗浴区,平时不用的时候拉开,让自然光线透过卫生间的窗户流入室内,也更有利于通风换气。
洗浴区原有的露台无法打掉,干脆保留,作为洗发水、沐浴露等淋浴必备品的储物区,淋浴时随手可拿取,相当方便。
—Before&after

△改造前

△改造后
主卧
卧室是令人彻底放松的松弛之地,舒适感正是奥义。

△改造前
原本的主卧基本可以归类为“出租屋风格”,土味十足的衣柜,陈旧泛黄的吸顶灯,毫无格调的室内设计,让每天的睡眠时光都失去了期待。

改造后的主卧沿袭了全屋的极简风格,白+原木+灰的基础配色,墙面留白,不增加任何装饰,颇有侘寂美学的韵味。

光源做了精心布置,主卧一共有三个光源,顶部吊顶作为主光源,竹编灯罩利用光线制造阴翳之美,暗室微光,令人舒缓而平静。

床头吊灯作为阅读灯,让光线恰好打在书本上,营造幽静的枕边阅读氛围。

床头柜上方的壁灯则作为起夜灯,同样能够烘托静谧的氛围感。
全屋重新吊顶,并且增设了落地窗帘,一方面遮光,另外也能烘托卧室内的静谧感。

主卧内配有一个小型书桌,平日需要加班或看书均可在此,相当于在卧室里内置了一个迷你书房。
窗外风景不错,便保留了主卧的飘窗,摆放有*团蒲**,偶尔可坐在窗边喝茶观景。

主卧的一整面墙壁定制了整体衣柜,一柜到顶充分利用空间,当季衣服、换季衣物、四季床品皆可收纳。白色柜门与墙壁同色,黑色门把手打造纵向拉伸的视感,从视觉上为空间扩容。
—Before&after

△改造前

△改造后
次卧
改前的次卧存在与其他空间同样的问题:杂乱无格调。经过改墙换地以及更换家具后,整个空间的居住体验大大提升了。

△改造前

△改造后
次卧和主卧风格保持统一,不设吊灯,仅保留床头一盏壁灯,方便夜间起夜。全屋家具尤为精简,不增加任何额外装饰,坚持空间留白。

家具和软装部分虽极度克制,但巧妙植入了关于提升居住体验的巧思。
床头增设了一个唱片机,父亲偶尔过来小住时,便能欣然享受睡前听歌的时光。

这个时代,快步前行的人常见,然而,缓步慢走,留心生活的人,却不多了。
人生只有一次,所以要尽量活得舒适,家的改造也是如此,改造的奥义不在于风格的变化,提升家的舒适力,在适合自己的空间内好好生活,才是改造的最终目的。