我们生活在一个选择多元化的时代。对于住宅,也不例外。城市与乡村,高楼与小屋,平层与院墅,都有着各自的拥趸。
有的人享受被车水马龙的繁华都市所簇拥,俯瞰万家灯火的满足感。
有的人向往温情质朴的乡间小院,心中镌刻着挥之不去的故乡情愫。
但也有的人,就如同嘉禾的0001号业主钱俊雄先生,对于人居空间,有着自己一套独特的见解。

PROFILE 钱俊雄 嘉禾0001号业主 嘉禾集团创始人 5A景区三国赤壁 实控人
钱俊雄先生对于乡村住宅的情感,在走遍世界之后依旧没有减少半分。
即使是在美国洛杉矶住着一栋高科技现代别院,房间功能样样齐全,反而总感觉缺些什么,内心深处对于居住空间的向往好像还没有得到满足。
彼时,当他决定进军国内乡村下沉市场,首次公开对外发声,说的一句话便是:“嘉禾的0001栋院墅,一定是在我的黄梅老家,在那块2亩的地上,为我70岁的老父亲、母亲而造。”
于是,他把多年来满心的期待与满腔的热血,都倾注到这个院墅的规划与设计之上,数不清的沟通与碰撞,一稿、两稿……百稿,直到“梦境”系列的户型图、外立面图、庭院图逐渐完善。

▲ 嘉禾《梦境》院墅极简中式风格
他相信,那会是一栋最适合中国家庭乡居的理想住宅。
壹
“中国家庭乡居的理想住宅,不是殿堂,不是城堡,而是院居。所谓家庭,必须有家,也有庭院。”
在钱俊雄先生的初步计划中,两亩有余的宅基地,拿出200个平方做建筑已然足够,剩下的用以庭院规划。
建屋必造园,历来权贵或隐士亦是如此。五斗先生“方宅十余亩,草屋八九间”亦有“榆柳荫后檐,桃李罗堂前”相映生辉。名匠们深知造园之于造墅的重要性。

▲ 嘉禾《梦境》院墅入户前院
“梦境”系列院墅设计了三进礼序,联院曲折,收放藏露,生活中的亲疏远近,仅由此院便能有所区分。
一进院落,前院入户 ,开放性的空间设计用以社交。添一扇象征五福临门的影壁,一株高大的银杏,寥寥几笔,无声中即可展现出主人的品位。
二进院落,中庭天井内院 ,户外天然客厅,与室内一体化客餐厅互通互联,既是家庭成员欢聚一堂的团圆空间,亦是亲朋密友把酒言欢的畅聊之地。
三进院落,私享后院 ,留一方天地给自己与家人。它是室内空间的延展,有户外厨房、菜园、树屋……或与父母种瓜采菊,或与孩子嬉闹玩耍,总有一种宁静的方式品悟人生。

▲ 嘉禾《梦境》院墅极简中式后院
入户前院、中庭内院、私人后院各有千秋,这是钱俊雄先生对于院落生活的理想与解读。
而嘉禾的设计原则:通过把高频空间放置于主楼,低频空间作为院子配套的方式,可以使得院墅的使用年限达到50年,甚至100年(院子配套过几年就可以换,但是主楼基本上只需通过保养、维护等方式来保持)。
这是嘉禾对居者的心意。
贰
“回到老家建造一个院墅,非得要做好院子与别墅之间的逻辑,就像环环相扣的拼图一样,让彼此间的诱惑,造成居游之间的张力。”
庭院的景致和室内的视野,两者之间如何调和?如何使房间完美利用自然之景?如何让居者置身其间而不觉跳脱?这使建筑师郁结了许久。

▲ 嘉禾《梦境》院墅外院
“梦境”系列的巧妙之处在于不仅有外院的景观,更将院落移到室内,将庭院引向空中,通过设计天井小院、空中花园等空间,宅院合一。
以天井为轴,即使是没有院子的宅基地,也可以实现270°观景;天井造景,连廊贯穿,每个房间既可以保证太阳直射的采光,也能将美景移入室内,与自然的互动拉满。

▲ 嘉禾《梦境》院墅天井
同时,天井本身具备天然的温度调节作用,与四周产生空气的对流。风从镂空墙体上的小口子进去,就能在天井里面被成倍放大。再配合室内的小门、大窗,实现超强自然通风,夏天也不用开空调。

▲ 嘉禾《梦境》院墅极简中式屋顶平面图-天井上空
叁
钱俊雄先生认为:
房子该是为居住的人而服务的。
从嘉禾东方大师“梦境”系列院墅超过100处精心设计的细节之中,我们能看到,建筑师关注的不仅仅是房子,更是个体本身。
他们洞察人们浸润在空间中的活动轨迹与生活状态,就更能明白他们在当下更需要什么,以及如何在乡村实现城市没有的生活。
1
“我要在院子里搭个戏台”
老一辈是最喜爱热闹的。回到老家,父母就像鱼儿进了水,钱俊雄先生说:“我要在院子里搭个戏台,给老爷子唱黄梅戏。”
那么,如何方便父母与邻居们互动,让家里成为全村最热闹的地方?
1、设计镂空围墙,隔墙就可以与来往的邻居打招呼,父母再不用拉个小板凳候在院门口邀请邻居进屋聊天,更不会因为高门大户挡住来访者;

▲ 嘉禾《梦境》院墅镂空围墙
2、前院设计一座新科技凉亭,采用电动天幕方便遮阳避雨,父母跟老友在院子里打牌唠嗑,六七人一起也不嫌挤;

▲ 嘉禾《梦境》院墅茶亭
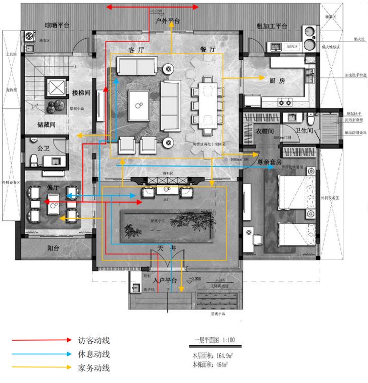
3、将多功能厅、天井、尊亲房等100平米划分为父母常用的相对独立区域。在这个区域内,父母可以拥有专属的社交空间:

▲ 嘉禾《梦境》院墅极简中式一层平面图
将换鞋处设置于客厅,进天井时无需换鞋,左拐即可进入多功能厅。多功能厅作为父母的小接待厅,可以打麻将、取暖、喝茶……且与公卫挨着,客人无需在家里到处走动;多功能厅旁边加一个柴火灶房,偏厅即可变身父母的小餐厅。
这样,既方便了父母接待来客,也避免客人进屋把家里弄脏后父母费劲收拾,同时还不用开大灯浪费电;

▲ 嘉禾《梦境》院墅尊亲房,可独立通往后院
4、在院子外墙装上大灯,预留室外插座,并在院内开辟出一块广场舞空间,闲来无事父母邀上三俩老伙伴到家里跳广场舞,安全又不怕打扰到别人;

▲ 嘉禾《梦境》院墅庭院
2
“我不想回老家还住16m²房间”
谈论对院墅设计的意见时,钱俊雄先生儿子说:“我不想在城市里住16平的房间,回老家还只能住16平的房间。”
子女辈与老一辈的生活习惯大不相同,又如何让孩子爱上回老家?
1、 子孙辈社交活动多,在楼梯间留有后门,深夜回家不需要再从大门进,减少动静,不会惊扰父母;
2、设计环形空中连廊,以连廊为带,让孩子辈有更多交流:

▲ 嘉禾《梦境》院墅极简中式二楼平面图
① 嘉禾“梦境”系列院墅二楼规划了三个套房,每个套房都各带独立卫生间与私享露台,空间尺度阔绰,满足了现代人居住的需求。
② 亲子套房既可以给女儿带着老公孩子们回家居住,也可以做一室一厅,供儿子的小家庭居住。
③ 过道拓宽到1.5米,让过道承载家庭厅的功能,比如桌面足球,奖状展示、家庭合影展示区等等。
3
“我不想做太大的卧室面积”
身为一个父亲/孩子最朴实的心愿,钱俊雄先生谈起不愿意设计太大卧室面积的理由,只是:“不想让孩子一回家就窝在房间里,要多下楼陪陪爷爷奶奶说话。”
乡居生活的团圆空间设计是永恒不变的议题。
1、厨房+户外粗加工平台,形成新的餐厨系统:中厨、西厨(烘焙台)、柴火灶房,既可以满足太太的烘焙、甜品制作需要,又给了父母做熏腊肉、坛子菜的发挥空间,无论是日常下厨还是逢年过节的烹饪,通通都足够;

▲ 嘉禾《梦境》院墅厨房+粗加工平台
2、客厅延伸出去的半户外空间,是房子对院子的过渡,喝茶、看书,或是泡一杯咖啡边看报边照看小孩子在后院玩耍,都将惬意刻进了生活里;

▲ 嘉禾《梦境》院墅后院
3、餐厅放置两张可以变成圆桌的拼接方桌,支持随时变身为两个10人大圆桌,人丁兴旺本是家族的喜气,不该因空间而受限;

▲ 嘉禾《梦境》院墅客餐厅
4、以露台为院,让一家人有更多团圆场景:
① 三楼双主卧设计,支持两兄弟共住或是父母、长子分处而居;

▲ 嘉禾《梦境》院墅主卧套房
② 三楼大露台作为建筑的灰空间,配备自动天幕装置,即将庭院引向天空,它既可以是太太酒会宴请宾客的空中花园,也可以是先生平时安静阅读的阳光书房,还可以是孩子体验户外活动的露营场所,甚至是健身房、瑜伽房……作为家庭团聚的空间,可以满足全家人一起喝茶、喝酒、BBQ、聊天的全部场景;

▲ 嘉禾《梦境》院墅三楼大露台
③ 东南角的小露台通道,是院墅设计中的一个隐秘空间,可以充满无限想象,或是隐藏一个推杆高尔夫、飞镖,或是冥想空间,或是……

▲ 嘉禾《梦境》院墅极简中式三楼平面图
4
超100处人性化细节精心打磨
此外,“梦境”还有超百处细节考量,让它足够以一个丰满的形态呈现在大众面前:
1、天井、客厅、餐厅通过设计上的“透”、“叠”手法,形成三厅一体,使空间更大;
2、客厅做局部挑高,增强空间的纵向延伸感;
3、楼梯下方增设储藏间,增加农具、工具等的收纳空间;
4、三跑式楼梯增加楼梯级数,让楼梯踏步高度不超过150mm,防止老人踩空;
5、增设电梯间,方便家人上下楼,关怀老人行动不便的困境;

▲ 嘉禾《梦境》院墅老人关怀系统部分示意
6、卫生间增设马桶扶手与淋雨凳,呵护老人的腰与膝盖,防止久站或久坐后起身引起不适;
7、洗手盆设置双盆,洗漱与清洗衣物分离进行;
8、卫生间铺设专业防滑地板,预防老人滑倒;
9、把现代科技搬回家,监控检测系统、雨水收集系统、光伏储能设备……让科技更好地服务生活。

▲ 嘉禾《梦境》院墅后院
对于像钱俊雄先生这样历经千帆的人们来说,判定一栋院墅的好坏,绝不仅限于审美取向。
他们看重的,是赏心悦目的建筑形态,是细节丰富的精研考量,是不输颜值的居住体验,更是不负信任的交付结果。
或许,在这个后疫情时代,人们缺的不再是物质上的满足,而是为无处皈依的心灵寻一个得以寄托的出口。
作为嘉禾东方大师院墅系列之一,《梦境》除了上文所展示的极简中式风格,设计师还精心打磨,推出了另一款极简现代风-称为 “中国版比弗利山庄” 。

▲ 嘉禾《梦境》院墅比弗利风格
两款风格各有千秋,钱俊雄先生也犹豫了。不知你更爱哪一款呢?不妨给他点建议,可以在文末 留言谈谈你的看法 哦。
眼看着疫情正在消散,为了能赶在 2023年中秋阖家团圆住进老家新房,钱俊雄先生的院墅很快将在老家黄梅开建,目前已完成测绘工作,本月确认选款后,将于1月正式开工。也在此提醒各位,如果您也有这个打算,需要现在开始做准备了哦。
提示:现在预定还有超值福利哦,为了更好地研发出庭院模块化方案,即日起至12月31日,嘉禾推出 《百人百院》 活动,特意邀请了设计费起步超10万元的园林设计师团队,为100名业主免费量身定制个性化庭院。