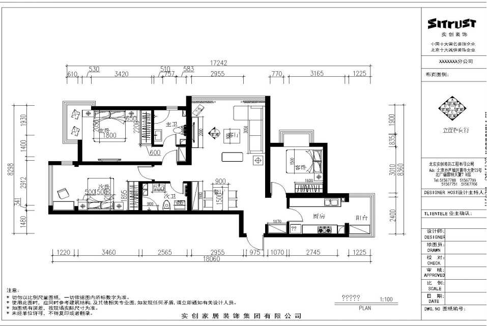
优点:本案户型南向并且南北通透。

缺点:本案户型餐厅面积狭小,走廊浪费空间大,利用率低

简约风格设计就是本着“生活品位,空间质量”前提,倡导新简约主义风格,展现健康人居魅力空间。

为了迎合出业主的个性与品位,设计师将设计风格方面界定为简洁大方的现代新简约主义风格,在材质方面、原户型的大局合理性,我们尊重原有的空 间结构的,尽量保持原有的美,所以在设计手法只是灵巧地运用不同材质、造 型把整个空间有机地融为一体

入门要做到进门映入眼帘的中枢作用能达到随人动而变,让人心情舒畅。客厅是整个家居布置中的重点,设计师在做这一设计时充分考虑到室内与室外空 间的交流,因势利导地的设想。

如,开阔敞亮的大厅要采用对比色处理,明、暗、黑、白之间的处理。房间要以简为主、动静分明、舒适温心、有进门的睡意感。

厨房餐厅要距离较近,动线短。客 厅南向,光照和通风良好。
更多装修风水,效果图案例分享提前知道关注微信号15966846103(青岛地区)
联系设计师,申请免费量房出方案,省钱装修,关注微信号15966846103(青岛地区)