
中国是一个地大物博的国家,领域的广阔以及为数众多的(56个)民族,在5000多年的历史中形成了各具特色的建筑风格。这些难以复制的建筑,也许有些已经消失,有些也被现代建筑逐渐取代,它们的存在或灭失都是时代的推动,智慧的结晶,一种生活和一代文化的代表诠释着其意义和理由。
厝头(屋角),潮汕古民居无论档次高低都是硬山式的(佛寺大殿多为歇山式),即在山墙上直接装饰厝头为硬山式。厝头装进山墙内为歇山式,厝头装在山墙外边悬着为悬山式。
厝头历来都讲究所属五行,有金、木、水、火、土。金式厝头为圆形,无棱角;木式的较为高且直,有棱角;土式为方平,矮胖;火式为尖锋或三角;水式为波浪或三个金式组合。后来还有金生水式、土生金式等改进型。厝头也和主人命格有关,一般都为风水先生所指定。民居厝头多数为土、金、木式,少数为水式,极少数为火式,庙宇多用火式,或许用意是希望香火旺盛。
金式厝头为圆形,无棱角


木式的较为高且直,有棱角


土式为方平,矮胖


火式为尖锋或三角


水式为波浪或三个金式组合


金生水式




潮汕农村传统民居是岭南古村民宅最具代表性的民居建筑之一。潮汕农村传统民居的样式很多,且都用生动形象的名称来命名,如“四马拖车”、“四点金”、“下山虎”等等。潮汕民宅有一个突出的特点就是极其注重装饰,故有“京华帝王府,潮汕百姓家”之说。
四点金



“四点金”是潮俗独特的村居,旧时只有殷富显达的家庭才能建造,是一种多层次、对称、平衡、结构完整的平房式宅第。“四点金”建筑格局有点像北京的四合院。外围一般有围墙,围墙内打阳埕,凿水井;大门左右两侧有“壁肚”;一进门就是前厅,两边的房间叫前房;进而是空旷的天井,两边各有一房间,一间作为厨房,称为“八尺房”;另一间作为柴草房,一般称为“厝手房”;天井后边为大厅,两边各有一个大房。“四点金”的构筑还有多种:只有前后四个正房,没有厝手房及八尺房,而四厅齐向天井的,称“四厅会”;前后房都带八尺房和厝手房的,则变八房为十室的称为“四喷水”。如果在“四点金”外围建一圈房屋,则谓之“四点金加厝包”。
下山虎


“下山虎”房屋的建筑在潮汕农村中较为普遍。建筑格局比“四点金”简单,少了两个前房,其余基本一样。“下山虎”因为门路出入不同,顺此有开正门和边门的区别。通常中间不开大门而只开两边门的称为“龙虎门”,也有既开正门又开两边门的。整座格局形成前低后高,因此得名。
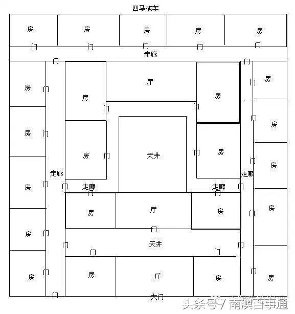
四马拖车



“四马拖车”也称“三落二火巷一后包”是“四点金”的复杂化。“落”是潮汕方言,即进的意思。第一进有凹形门厅,俗称“门楼肚”。一进与二进间,有天井及左右两道通廊。过了天井便是二进,二进有面阔二间的大厅,两边各有一间房子称为“大房”。二进和三进中间也有天井,三进的结构与二进相同,只是三进的大厅后面隔开一块狭长的暗间,称作“后库”。后包指三进后面的一列房子。
整个建筑格局就像一驾由四匹马拉着的车子,故名“四马拖车”。“四马拖车”整个建筑的各个部分都有它特殊功能。头进的“反照”是为了遮挡路人和客人的视线,不致使屋里一览无遗。长辈们重要的会见和议事则在二进和三进的大厅进行。三进的大厅还设置祖龛供奉祖宗灵位。逢年过节、祖宗忌辰,家人要出国,就要开龛门祭拜抑或向祖宗“告别”;家人做了伤风败俗的事要绳之以家法,也要开龛焚香,让他在祖宗面前请罪。后库则是供粉丧事时停放棺柩的地方。家中遇上办喜事,则各进大厅的禅门洞开。

婚殇嫁娶各有其表,丧事的隆重是农村人“死者为大”的传统观念。不单要卸下"反照",还要卸下各进的禅门。所有天井架上地板,天井的上空撑起帐篷。这样一来。一、二、三进形成了一个宽敞的大空间,便于进行各种活动。"四马拖车"规模庞大,为大官宦、大富豪人家所建。现存较完整的"四马拖车"如澄海隆都镇的"慈黉爷故居"。
潮汕祠堂和客厅

潮人聚居的地方一般会有祠堂或客厅,基本结构为两厅夹一庭的两进式和三厅两庭的三进式,中间建有天井,为敞开式的,不像北方密封的厅堂,且往往装饰豪华,富丽堂皇,雄伟壮观。祠堂是族人祭祀祖先或先贤,办理婚、丧、寿、喜等事的场所和施行宗族伦常的法地。"客厅"(与现代家居中的客厅完全是两回事)则一般只用于专门用于祭祀和办丧事,因为办丧事的时候外来的客人要来这里吊拜,所以称为"客厅",并且还有正厅和阿婆厅之分,后者专门供奉灵位没有资格摆放到正厅的阿婆(被收为婢妾为主人生子但仍没有正式身份的人)。
【祠堂】

祠堂,是族人祭祀祖先或先贤的场所。潮汕人历来重视祠堂的建筑,这是一种“怀抱祖德”、“慎终追远”、也是后代人“饮水思源”、“报本返始”的一种孝思表现。旧志记载,营宫室必先祠堂,明宗法,继绝嗣,重祀田,各大姓巨族,多建有大宗祠堂祀远祖,富有者也多为高、曾、祖、父四代近祖建祠堂,少数还有为自己建祠堂者。

祠堂有多种用途。除了“崇宗祀祖”之用外,各房子孙平时有办理婚、丧、寿、喜等事时,便利用这些宽广的祠堂以作为活动之用。族亲们有时为了商议族内的重要事务,也利用祠堂作为会聚场所。另外也是施行宗族伦常的法地。

潮汕祠堂的基本结构,有两厅夹一庭的两进式和三厅两庭的三进式两种。其建筑系统地运用木雕、石雕、嵌瓷这三大潮汕建筑工艺,装饰豪华,富丽堂皇,雄伟壮观,具有一定的欣赏价值。潮汕祠堂还具有一定的历史文化价值。如普宁市西社乡永思堂存有民国修建碑记,从中可以了解该祖源流及世系辈序,这对研究该簇历史有很大的帮助。澄海市后溪乡芳庄堂,堂正中入门有一祖墓,这一现象在潮汕是极其罕见的。
【客厅】

正厅常称“客厅”(与现代家居中的客厅完全是两回事),专门用于祭祀和办丧事,因为办丧事的时候外来的客
人要来这里吊拜,以称为“客厅”。
二、阿婆厅

正厅建筑群的右侧有时候会建造一个阿婆厅,专门供奉灵位没有资格摆放到正厅的阿婆(被收为婢妾为主人生子但仍没有正式身份的人),如果没有阿婆厅则家人会把她们的灵位放在橱柜上。另外左侧则有时候会建一个厅供奉未上寿(50岁前就死亡的)的人。

潮汕建筑重厅堂,将其作为民居单元的中心。厅堂是敞开式的,不像北方密封的厅堂。建有天井。天井的作用,既为了通风透光,而基面较低,在雨天可以纳水,以防止厅房进水。
水井
在潮汕,每个建筑群不管大小一般都必然有一个水井。必有井,所以古人称乡里为"乡井"。有的乡村的井很多,有院外的,有院内的。挖井要请地理先生测定井眼,有的挖丈多、两三丈深才见泉水涌出,再加进几担粗沙粒铺垫作过滤。水质好的才作为食水,差的作为用水。潮汕民众很重视食水井,不但日常经常进行维护保洁,还要拜"井公井妈"。

在潮汕,每个建筑群不管大小一般都必然有一个水井,包括独家独户的小民居建筑里面往往也都有。

在潮汕农村生活过的人,都会依稀记得儿时早上母亲在井边洗衣服、自己在边上玩的场景,而井中为了清洁井水而放养的鱼则常常成为眼中之物,但大人总是告诫不能掠之。
风水屋顶(见前述厝头)
潮汕建筑很讲究风水,不但体现在选址、建筑布局的讲究上,在建筑上的每个细节也都有体现,屋顶就是其中之一。如果屋子正对其他大型建筑物的大门,为了抵煞往往在屋顶放一个糖漏,这样住起来才会比较顺利。

如果屋子不是很干净或者为了为了抵挡外来的“煞”,常常在屋顶放一个钵仔,栽上仙人掌。

这个屋顶不但种仙人掌,而且还放了一个“风狮爷”,这样抵煞能力就更强了。如果本建筑被别人的屋角、漏水槽等较大的煞气所冲,往往就采用这种方式来抵煞。

另外还有在屋顶山墙上建一个拉弓箭武士的,也是抵挡别处冲来的煞用。
潮汕人,“东方犹太人”。敢闯能略的创业思维,谨慎精细的危机意识,务实勤俭、传承不息的上进精神赢得了世人的认可,引领着一个民族,影响着整个世界!
来源:天熙生态农业
声明:本文不代表我们的观点,仅供读者参考。文章版权归原作者所有,如有侵权,请联系我们进行删除。 南澳百事通团队,致力于传播潮汕文化,宣扬潮人精神,也不遗余力的提供汕头南澳岛的住宿、餐饮、游玩等服务。来南澳岛不知道怎么玩,可咨询小编。