【实创装饰】保利中央公馆140平四居室 简欧风 全包复式楼
项目名称(即小区): 保利中央公馆
设计公司: 武汉实创装饰
装修风格: 简欧风格
装修方式 :全包
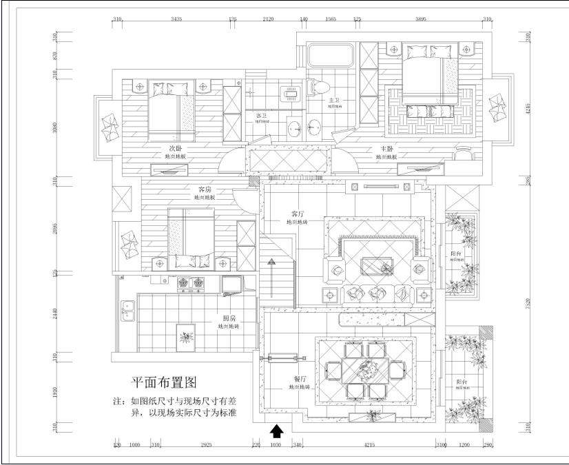
房子户型: 四室二厅一厨二卫
所在区域 : 洪山区南湖路中段(武梁路与丁字桥南路交汇处)
主任设计师:卢燕丹
建筑面积: 140 平米

案例分析 : 业主是一对年轻夫妇,准备婚房,从事动漫设计,温馨舒
适对室内光影气息的流动有独特的见解,常住人口定位于卧 5-6 人左
右,对书房也有严格的办公需求,在整体的功能布局上设置了一个主
卧、次卧、小孩房、客房以及储藏间的安置,二楼安置了一间独立书
房,合理性的调整室内整体房屋结构,使其更明亮大气居住舒适。

武汉实创装饰主任设计师卢燕丹

整体家装:(所有主材,整体厨房,整体卫浴,轻工辅料,水电路改造,个性化设计)

短信编辑(小区名称 + 房屋面积 + 装修风格)到 13545083267 ( 3 分钟即可获得报价)仅限武汉地区

家装套餐缔造者
全国10万平米整体家装体验馆
唯一全国28家直营公司!
唯一拥有全国物流系统直接配送!
唯一全球采购、全国战略采购业务!
唯一拥有40000平自有木作工厂!
唯一采用整体售后全程管理系统!
唯一连续两年荣登福布斯家居榜!
六个唯一铸就4年辉煌!
努力不止,辉煌继续

武汉实创装饰11000平米的家装体验馆,欢迎您来体验

实创装饰报名网址:
http://wh.sc.cc/hd/index/id/4531.html?utm_source=%E7%BD%91%E9%94%80&Promoterid=4291

新浪博客: http://blog.sina.com.cn/u/5216396138