买房之后就需要开始装修,老乡给介绍了一家磐超装饰公司!装修公司的经理左一个哥右一个老乡叫着,别提嘴多甜了,为此我也是付出了惨痛的代价。

什么活也没干就不断催款,付了2万3后,结果还是什么活也没干,就买了这点东西。多次联系后,人就跑路了(太糟糕的事就不多分享了,大家一定要记住:钱在自己口袋最安全)真的是伤心欲绝啊,之后在网上看到"先装修后付款,干不好不给钱"的江水平!这样才算是真正走上了靠谱的装修路,现在抛开阴霾带大家看看我新家的装修效果
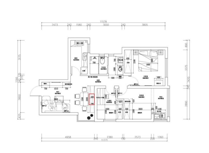
小区:莲花新城小区
户型:小三室
面积:85平
设计:网络设计师
风格:简美
施工:江水平装修

这是网络设计师画的设计图,江水平的师傅就按照设计图来施工。

一进门就是客厅,玄关和客厅一体化了。那就把鞋柜和电视柜也一体化了,这样的组合也算是符合了户型的实际情况了。

餐厅直接对准了入户门,用卡座来增加收纳减少空间浪费,也少花钱买凳子了。

客厅就一组沙发搞定,不用多余的多去点缀,毕竟也是玄关口,还是干净简洁的好。

厨房是长方形的,用这种按身高定制的砖夹橱柜很合适舒服,开门的右侧还留了足够的空间放冰箱。

卫生间的干湿分离还是挺重要的,把洗漱的都放在外面了。

保洁还没做,还是乱的

这个儿童房是比较小的,但是却容纳了休息和学习两种功能。

这里是和阳台相连,就当做书房、活动室、客房,按照时间不同、使用者的不同来切换房间不同的功能吧!

左侧是卫生间那块,白色的门是主卧

主卧也不算太大,一床一柜足以!
这次的装修虽然前半段很不愉快,浪费了工期!幸亏后期能够找到江水平,帮我顺利的完成装修!