项目名称:三里屯SOHO

条形灯带,极具线条美感,提升整体办公楼高级感
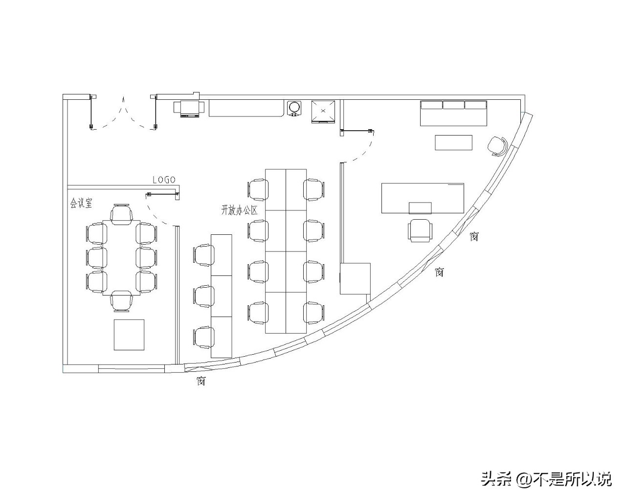
出租面积:149㎡

休息区,可以加个咖啡机
房屋朝向:东南向

地铁交通:地铁10号线团结湖站,3、17号线工人体育场站,即将开通。

大开窗,光线充足
房屋状态:全新装修,现代、简约时尚!整层精心设计、改造,配备全齐办公家具。在整个项目及周边同类项目独一无二!房间内均采用双层钢化玻璃到顶隔断,不仅美观、大气而且更为隔音。各功能间大小合理,适合大多数行业、企业使用。2个隔断+10个工位

会议室

大开间,工区

大开窗

长廊

门口

平面图