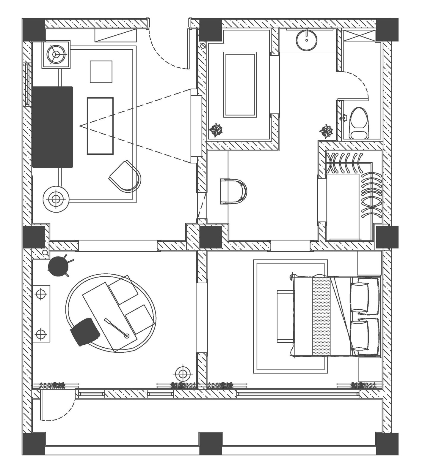
上海外滩,洋气又怀旧,摩登又复古,在这片寸土寸金的土地上,四川中路63号的一栋老旧建筑迎来了属于它的新生。湾流国际携手HAD设计院耗时半年完成外滩院子的翻新,将此处打造为湾流国际旗下MARINA系列的高端公寓“外滩院子”。 HAD设计师在对旧物业进行改造的过程中,发现了两间昏暗无窗的房间,如获至宝,希望能在这样精致浮华的城市里,打造出两间“臻舍”给入住者带来不一样的侘寂生活。朴素空间的历史感、情感旧物的故事感,放大空间与物件的岁月感与不完美,感受赤贫风的独特魅力。 ▼臻舍一户型平面图

自由平面布局打造流动空间。 ▼臻舍一户型实景照片

入户客厅一眼看去就这样老老旧旧,但一点都不觉得刻意,反而有种不可言喻的朴素美感,再搭配上充满岁月感的实木家具,拙朴的陶瓷器皿以及纯色的亚麻布艺,在不经意间流露出岁月的慵懒与美好。 ▼臻舍一户型实景照片

与客厅贯通的书房空间,用与客厅保持一致的做旧横梁、青石地砖以及水泥墙面来延续空间的整体调性,巨幅装饰画做为视觉中心,牢牢抓住你的眼球,毫不顾忌的展示自己的粗犷与张扬。 走进卧室空间,仿佛一切都沉寂了下来,未经雕琢的墙面是富有层次的,有深有浅,在不均匀的粉饰中融入纯粹质朴的美。 ▼臻舍一户型实景照片

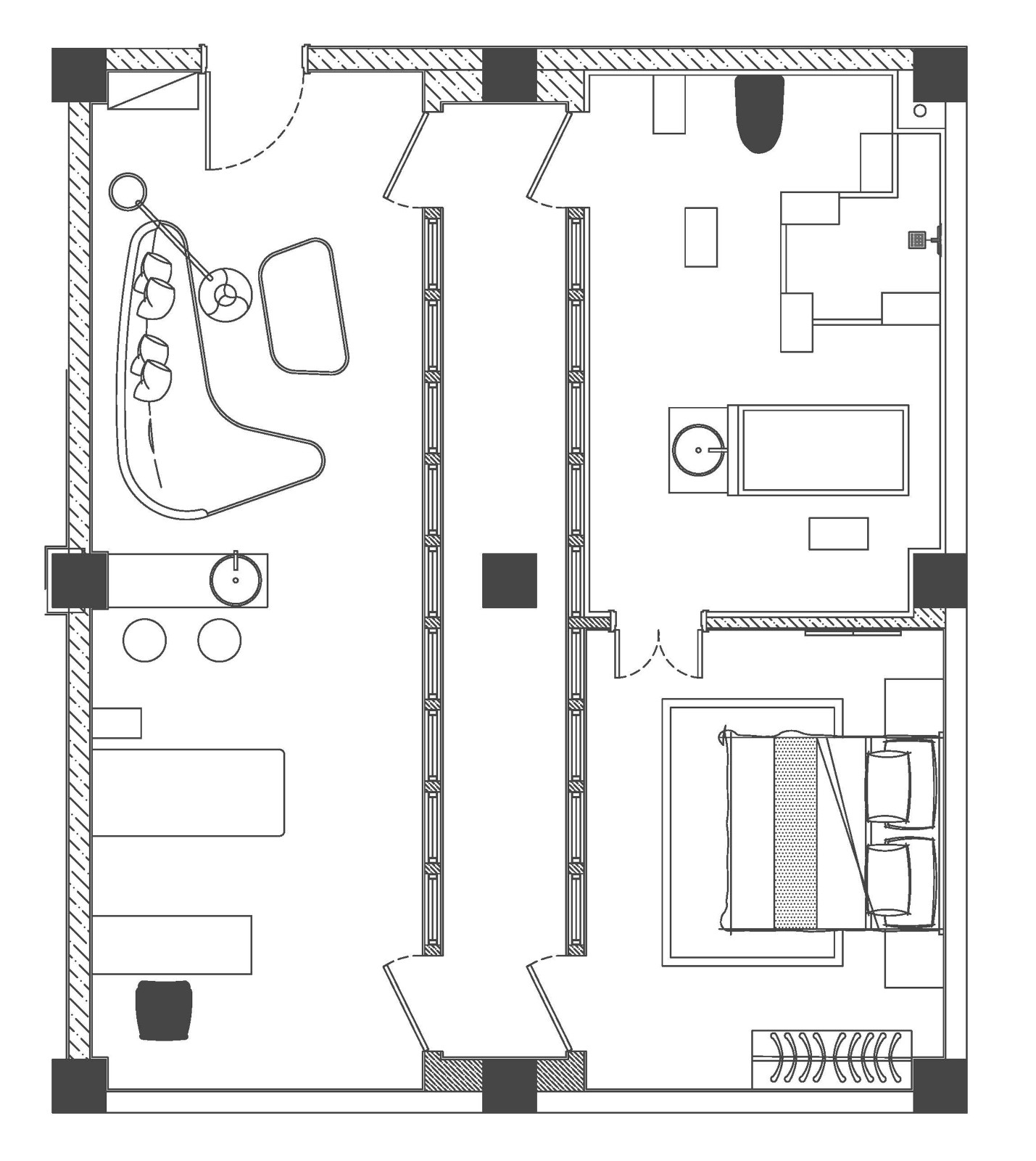
▼臻舍二户型平面图

利用创新且具有仪式感的人工采光槽打造新颖的空间。 ▼臻舍二户型实景照片

纯白色的开敞式客厅空间仿佛可以听得到沉默。 ▼臻舍二户型实景照片

充满仪式感的人工采光槽,通过重复序列的方式,给置身于此空间的人带来宁静与圣洁感,同时巧妙地解决了采光问题。 ▼臻舍二户型实景照片

穿过采光槽到达卧室空间,古朴的家具与柔软的织物共同编织了一片安静的柔和,直击内心,不偏不倚。 ▼臻舍二户型实景照片

公司介绍: HAD 建筑设计咨询有限公司成立于 2016 年。 一直秉持严谨·专业·用心的工作态度,创新、实用和经济的设计原则,致力于成为城市更新和生活方式的倡导者及存量资产改造设计专家。 HAD发掘存量地产独一无二的魅力,珍惜城市的每一栋楼宇,每一寸土地。量身定制的改造每一个物业。以全新的城市功能替换功能性衰败的物质空间,使之重新发展和繁荣。 我们是美好生活的倡导者, 以尊重原始物业,赋予存量新生命为改造初衷, 具有丰富的多业态、多结构形式的改造经验, 从前期踏勘到后期落地呈现的全流程服务, 从咨询策划设计到软装设计的全专业覆盖。 公司地址:上海市虹口区广粤支路1号5楼 联系方式:刘女士/187-0196-0719 黄先生/158-2144-4176 孙女士/158-5058-5189

境由心生, 发于心,止于情; 赤贫风美学, 不仅仅是一种形式和符号, 也是一种氛围。 我们期望和追求的那份宁静与平和, 唯有真,才是永恒, 时间的每一笔都是伏笔。 ————你没读懂的一切尽在《侘寂》时光里。 设计是对于艺术与生活、建筑与人之间的深层关系的探索之旅。 HAD探索建筑原有的历史与文化,表面肌理和质感随时间愈久而弥新,新的灵魂注入赋予建筑物新生。 项目名称:湾流国际MARINA高端公寓上海外滩院子 设计方:HAD上海湾流建筑设计咨询有限公司 联系邮箱:sunqing@harbourhome.sh.cn 项目设计 & 完成年份:2019.1 主创及设计团队:刘欣旎,黄思俊,孙青,罗倩芸,杜斌彦 项目地址:上海市四川中路63号 建筑面积:3486m² 摄影版权:湾流国际,三盛亦合艺术设计顾问(北京)有限公司 合作方:三盛亦合艺术设计顾问(北京)有限公司 客户:湾流国际 品牌:无