
Endorphine建筑事务所为斯洛伐克高尔夫度假村设计的白墙黑框小屋
Endorphine connects white boxes with black frames to create homes at Slovakian golf resort
斯洛伐克Endorphine建筑事务所为Hrubá Borša附近的高尔夫球场设计了一套房屋。建筑由水平和垂直的体块组合在一起,布局别具一格。
Slovakian studio Endorphine has completed a pair of houses at a golf resort near the village of Hrubá Borša, featuring living units that are combined either horizontally or vertically to create different layouts.

位于Bratislava(斯洛伐克中南部城市)的 Endorphine建筑事务所的四位合伙人在Green Resort Golf地产买下两块土地,他们要通过一个探索性的项目来展示他们的建筑理念。
3×3住宅布局紧凑,三个简单的单元组成一座小型楼房,为客户提供了实用的生活空间。
The four founding partners of Bratislava-based Endorphine purchased two plots on the Green Resort Golf Estate to give them an opportunity to develop a speculative project that showcases their architectural approach.
The 3X3 Houses are designed as compact dwellings that offer practical and versatile accommodation within a minimal floor area formed by combining three simple living blocks.

设计师Tomáš Dupkala 告诉Dezeen记者:“我们的目标是设计舒适、人性化的住所,这所房子必须满足住户的基本需求。”
"The aim was to create comfortable minimal ergonomic accommodation," architect Tomáš Dupkala told Dezeen. "The houses provide the minimum that future residents need to enjoy living there, whilst needing as little care as possible."

该建筑坐落于度假村的湖边,这个度假村成立于2009年,距离斯洛伐克首都布拉迪斯拉发约25公里。
Endorphine建筑事务所设计的建筑面向群体广泛,如年轻夫妇、退休人员或房屋租赁者。
The buildings are situated on the edge of a lake on the resort, which was established in 2009 around 25 kilometres from the Slovakian capital.
Endorphine designed the buildings to support a variety of potential use scenarios, such as ownership by young couples, retirees or buy-to-let landlords.

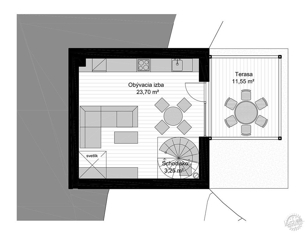
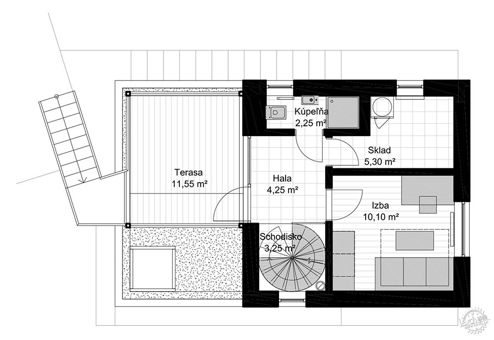
两座房子都根据其具体功能被分成三个部分,并按照占地面积的大小和周围的环境排列成不同的形状。
单层的住宅占地450平方米。三个相互连通的生活单元围绕天井而排布。
另一个房子占地360平方米,建筑师将三个生活单元纵向堆叠,不但充分利用了空间,也形成了一座观景台,用于欣赏远方高尔夫球场。
Each property comprises three blocks that are designated specific functions and are arranged in different formations based on the dimensions of the plot and the available views.
The single-storey residence occupies a plot measuring 450 square metres, so its three interconnected living blocks are staggered horizontally around a sequence of decked patios.
The other plot is just 360 square metres, which prompted the architects to stack the volumes vertically to make the most of the available space and provide enhanced views of the golf course.

将三个类似且简单的单元组合在一起,不但能将功能多元化,还能创造出更多极具吸引力的空间。
虽然两座房屋在使用面积和功能上十分相近,但两者结构之间的巨大差异让它们具有不同的特征,从而吸引不同需求的客户。
"The composition of three similar and simple volumes allowed a lot of creative space to produce attractive designs without compromising function," said Dupkala.
The two buildings have a similar total floor area and consistent room functions, but the different configurations lend them a distinctive character that allows prospective clients to identify more with one or the other.

建筑师补充到:“每位客户都是独一无二的个体,他们的需求各不相同,例如隐私、视野或生活的舒适性。”
“我们把客户的要求和周围的环境结合起来,最终设计出这两座独特的住宅,较高的一座适合外向的人,而平房则适合内向的人。”
"Every client is different and asks for specific qualities, such as privacy, views or comfort of movement," the architect added.
"When you mix this with situation and orientation to surroundings, the result is that the tall building is extrovert and the bungalow is introvert."



平房拥有开放式厨房、客厅和餐厅,而另一座住宅则有主卧、次卧和公共房间。
较高的住宅有三个露台,从外部看,三个空间前后交错堆叠。
Both residences feature one block accommodating an open-plan kitchen, living and dining area, with another containing the master bedroom and a third housing utilities and a second bedroom.
The properties also each have three terraces, with the taller building’s outdoor spaces accommodated at both the front and rear on alternating levels.

室外露台被黑框包围,客户可以按照需求将其封闭,形成一个凉亭或冬季的花园,对于多层建筑来说,底层的框架也增加了建筑结构的强度。
建筑外部的深色金属框架与亮白色的墙壁和周围的景色形成鲜明对比,同时也突出了内部的生活空间。
Black frames enclosing the terraces offer the possibility to erect a pergola or winter garden if the client wishes. At the three-storey house, the lower frames help to support the floors above.
The dark-metal structures contrast with the crisp white walls and frame views of the surroundings. They also accentuate the voids between the solid volumes containing the living spaces.




在三层的住宅内,金属楼梯沿着钢柱盘旋而上,天窗与四周的开窗为室内带来良好的采光效果。
摄影:Studio Flusser
A metal staircase that spirals up through the spine of the taller house provides circulation with the smallest possible footprint. Voids, skylights and windows allow light to filter down into the various levels.
Photography is by Studio Flusser.














由专筑网王帅,李韧编译
【专筑网版权与免责声明】:本网站注明“来源:专筑网”的所有内容版权属专筑网所有,如需转载,请注明出处