小区:曲江-汉华城
面积:125平米
风格:现代轻奢
造价:工程:6.5万+主材10万
户型:四室两卫一厨
人口:三口之家
设计简介:
本案为一套四居室户型,居住人口为一对45岁左右的夫妇及他们一个16岁的女儿,业主夫妇及他们的女儿比较时尚前卫,对这套房子装修设计要求简洁大气,因此这套方案对户型做了较大改动,在装饰搭配中以素雅轻奢为出发点,兼顾功能性与美观性。材料应用上,全房用大砖与小砖相结合去错缝铺贴,墙面以浅咖色壁纸为主,木门及墙面局部饰面板保持统一色系,整套方案张弛有度,简洁大气。
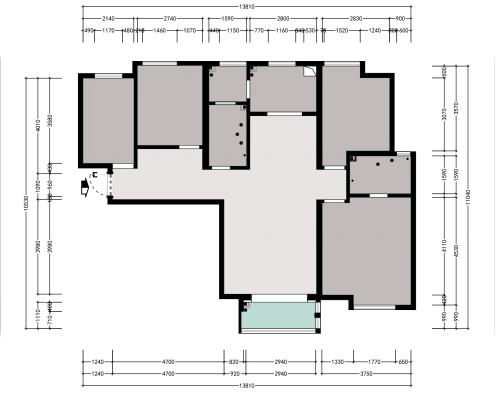
户型解析:1.原户型各房间面积狭小,根据业主的实际生活需求本案将原本的四居室改做两居室。
2.将原本厨房改建为半开放式厨房与餐厅相结合。
3.因舒适性和风水原因将主卫与可卫结构进行了改造。

新房改造前的原图

新房改造后的平面图

客厅设计效果

客厅设计效果

餐厅设计效果

餐厅设计效果

卧室设计效果

卧室设计效果