余生之年
寻一方净土
建一座木屋
扶桑若木朝出夕归
缘起缘落昼夜轮回
不知年华深深几许
只愿与你静候花开
SU Overall effect SU整体效果
模型 x 整体效果



这是一套四层楼的别墅,设计师整体规划楼层关系,将娱乐休闲放置一楼;扩大入户平台,客厅厨房餐厅集中在二楼;三楼为老人房、儿童房及客房,每个卧室都设置露台;四楼则为主人独享空间,阅读收纳休闲睡眠一应俱全。
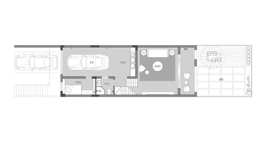
The First Floor 一 层
改造前 x 改造后


一层功能规划为出库、休闲厅、洗衣区、保姆房以及花园等。
· 休 闲 厅 ·
Leisure Area

深灰色柔光地砖,暖灰色墙布,深浅饰面拼接,配合线性灯光营造出现代品质的休闲生活。一楼主要以休闲为主,推开滑门即可步入花园,室外美景一览无余。
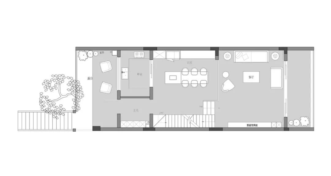
The Second Floor 二 层
改造前 x 改造后


二层功能规划为客厅、餐厅、中西厨房等。
· 客 厅 ·
Living Room

二层是一家人餐厨休闲最频繁的地方,设计师运用岩板、格栅等现代材质的拼接,让客厅整体色调温和深沉,极具品质感的同时又不失格调。
· 餐 厅 ·
Dinning Room

餐厅比客厅略高,与厨房连成一片小天地,用餐时拾级而上别有一番仪式感。沉稳的地砖与温润木材配合在一起,营造暖意融融的人间烟火气。
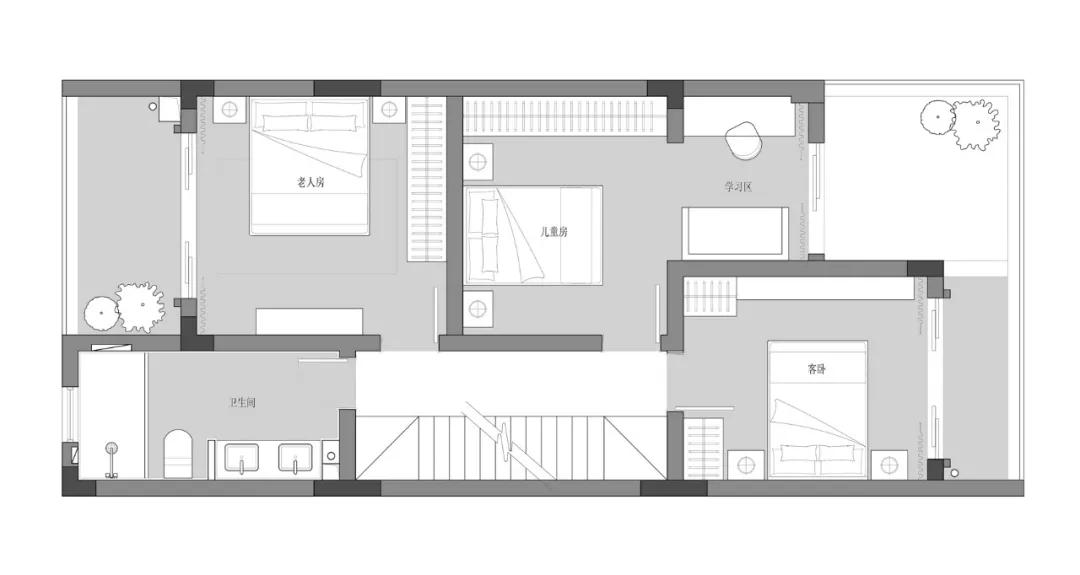
The First Floor 三 层
改造前 x 改造后


三层功能规划为儿童房、老人房、客房等。
The Four Floor 四 层
改造前 x 改造后


三层功能划分为主人专属区域,包括主卧、衣帽间、书房等等。
· 主 卧 ·
The Master's Room

现代家具简洁的线条语言考究的材质本身就极具美感,主卧同样在硬装上用简洁的线条和干净的手法处理,营造现代舒适的居住环境,让睡眠时光更美好。
「TRUST」
· 致 谢 业 主 ·
再次感谢如此优秀的客户通过严格筛选,最终选择信任我们KD人来帮助他们实现美好的居住梦想。
我们始终坚信,我们一定是一群能创造更多美好空间、美好生活的KD人。从过去、到现在、期未来,以原创设计,敬美好生活。
项目信息
Project information
—
The project name
绿地翠谷
The project address
重庆渝北区
The project area
370平米
The design of style
现代风格
Design agency
KD室内设计事务所
恺邸装饰
-THE END-