叔看过不少融创的房子,大部分的价格在区域内都属于中等水平,可凡事都有例外,比如融创学府壹号院的价格,就高出周边一大截。学府壹号院是融创回归山西的第一个高端作品,延续了“壹号院”系列的高标准和中式园林设计风格,强调“三进院落,六重园”的格局和园林生活。但不管宣传的如何高端,房子是用来住的,我们还是要抛去外在附加,实实在在看本质。
项目概况:
项目位于长风街与新晋祠路交叉口西北角往北300米,是太原理工大学长风校区故址,总占地面积98378平方米,建筑面积420920平方米,规划楼栋11栋,规划总户数1690户;容积率3.5,绿化率35%,车位配比1:1.3,物业公司为融创物业管理有限公司。
项目主入口位于南侧,最南1#、2#、3#号楼与4#、5#、6#号楼之间的楼间距大概在52米左右;楼王8#号楼同5#号楼之间的距离有107米,其余楼座之间的楼间距在60-75米之间。

区位点评:
项目西侧紧邻民盛物贸城,北侧紧邻新能源汽车城,东侧紧邻新晋祠路靠近汽贸城,东北侧500米有一个污水处理厂,但从风向来看不会对项目造成影响;南部靠近长风商务区,周边配套设施完善,发展迅速,经过几年的道路改造和城中村拆除,已基本退去了老旧的面貌。周边已建成大小十几个社区,包括丽华苑和万国城MAMO,往西不到1公里就是融创另外一个项目长风壹号。
交通评价:
自驾交通
项目紧邻新晋祠路,自西向东分别有和平南路、晋祠路、新晋祠路和滨河西路四条主路;南部距离长风西街300米,项目出门还有丽华北街和南上庄东街,周边交通状况良好,基本没有拥堵情况。

轨道交通
宣传中地铁4号线和6号线会经过附近,但一切都在规划中,不能作为配套。
公交出行
公交出行非常方便,项目往西300米就是长风停车场公交总站,东侧出口是交警支队公交车站,途径6趟公交车,1公里范围内有10个公交站点,东西南北各区几乎都有直达公交车。
人居环境:
项目附近的环境不算太好,但从周边大范围来看,可以满足日常各种需求。距离汾河公园1公里,距离和平公园1.5公里;往南不到2公里就是长风商务区的五大场馆(山西大剧院、太原博物馆、太原美术馆、山西省图书馆、山西省科技馆),往北1公里还有省展览馆;距离汾河体育健身长廊也不远,从学习到休闲再到运动健身,都有适合的环境。

但不能否认的是项目周边没有距离太近的大型医院,医疗条件不能算优秀。最近的医院是中化二建集团医院,虽说是集团医院,但属于二级甲等综合性医院,日常医疗需求可以满足。
商业配套:
项目紧邻的物贸城和装饰城与我们日常生活关系不大,周边也没有成型的大型商超,但生活超市和小商店还是较为齐全的,再加上项目自带配套商业,日常买东西很方便。西南2公里有河西农贸市场和义井综合市场,往南1.5公里是长风·国贸第六馆、万象城购物中心,距离项目不到1公里的远大购物广场也正在建设中;往东不到700米就是丽华大酒店,而且正好处在亲贤-长风商圈3公里范围内,再往北还有下元-千峰商圈,商业发展条件得天独厚。

教育资源评价:
项目处于万柏林区与晋源区的交界地带,但两个区的教育资源和本项目都没有太大关系,除了项目自带幼儿园,其他教育资源未定。
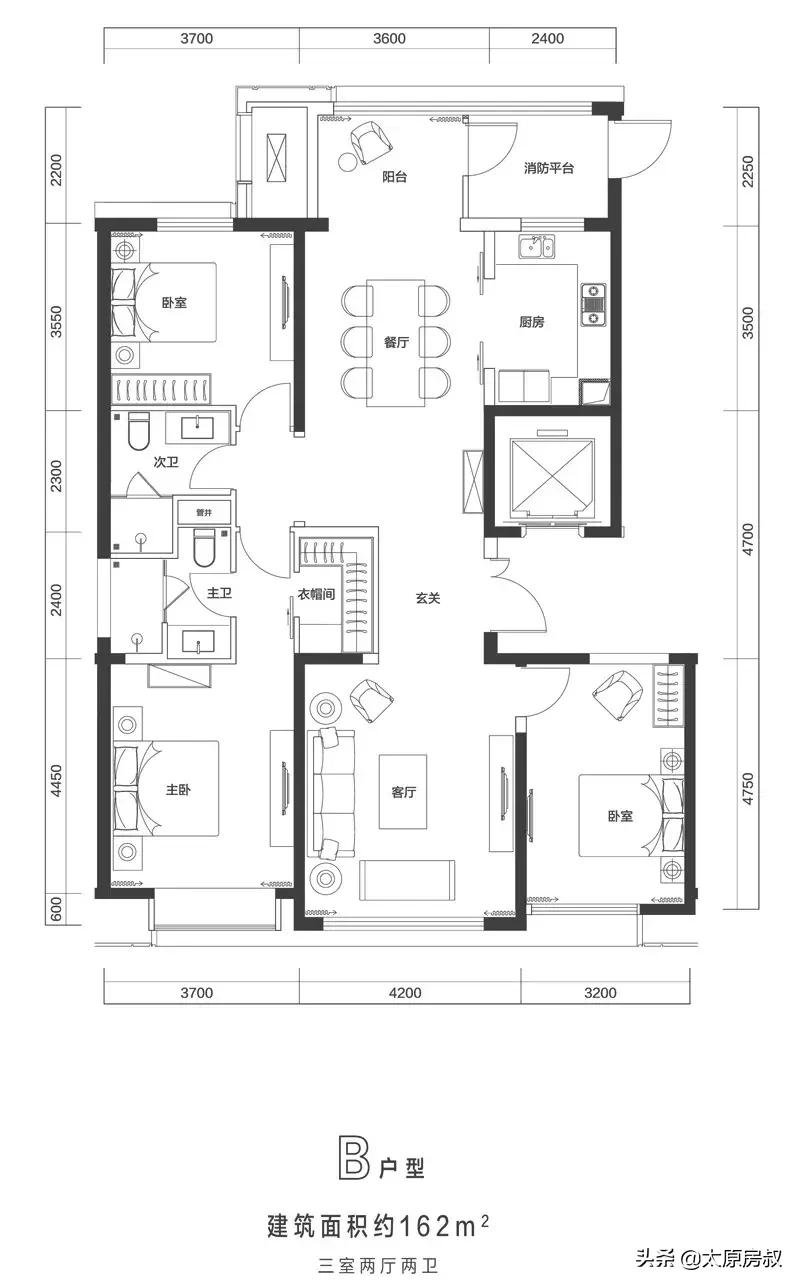
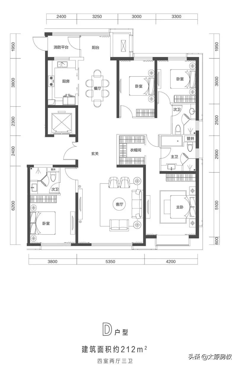
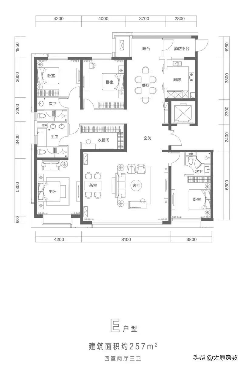
户型评价:
有五种户型,户型面积158㎡-257㎡,其中三室的两种,四室的三种,全部精装修交房,配全进口厨卫和新风除霾系统,加装净水加软水系统,层高3.1m。
几个户型的设计风格基本相同,都没有朝南的阳台,所以客厅和南侧卧室的采光比较好,再加上阳台、餐厅、玄关、客厅之间无遮挡,视觉上非常宽敞;卫生间有无窗口要看是否为边户,如果是边户,至少有两个全明卫生间,中间户型的卫生间全部没有独立窗口。
三室的两个户型在户型结构和功能区的摆放上完全相同,158的厨房面积比162的略大一点。


四室的户型中,182设计了三个卫生间,没有阳台,只有北侧的消防平台可以当阳台用。

212和257在设计结构和功能区摆放上几乎相同,与三室的户型相比多了北面的一个卧室,和南面的卫生间;257的户型客厅宽度达8.1米,可以说是真正的豪宅了。


价格评价:
总的来说,学府壹号院延续了“壹号院”系列的高品质和高端路线,同样延续了高价格,18000元/平米的均价,在全太原市的普通住宅项目里,排名能进前五,但购买改善型项目,有时候追求的就是品质与附加值,这个项目的价格与周边项目其实是不存在可比性的。
太原六城区在售的项目中,与它价格相差不大的有万达龙樾府19000元/平米、星河湾5号园18500元/平米、华润昆仑域18000元/平米、万科中央公园18000元/平米。除了华润昆仑域是因为学区和地段原因导致的高价格,包括本项目在内的其他高价项目都是因为品牌和定位的附加值。而且与其他几个项目相比,学府壹号院无论从区位、环境还是未来发展上来看,性价比都要更高。
施工进展:
项目最早开盘时间是2017年6月25日,一期在建中,主体结构基本完成,预计今年年底交付使用;最新的开盘楼栋为9#号楼,开盘时间是2019年3月16日,交房时间预计在2021年9月30日。