本案选自万达B区张先生的住宅,业主张先生在北京从事房产工作十年有余,预览过无数较为精致的装修设计。女户主是小企业主有着小资情调和别具一格的设计思想。两人对未来的生活充满憧憬。
简而精是为他们设计的第一定义。以简洁的表现形式来满足业主对空间环境那种感性的、本能的和理性的需求。北欧风格的装修不仅是反应在家居配饰上的简约,更多的是表现在家中的生活必需品上。本套设计强调的是从务实出发,讲究的是美观与实用同在。从视觉到感官,从空白到丰满,从平淡到温暖,将一所房子慢慢填充为一个温暖静谧的家。
设计师 |杨李一郎
项目风格|北欧风格
项目地址|万达
项目面积|170㎡

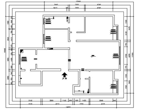
原始结构图

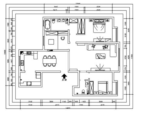
平面效果展示图
以白色调为主,黑、灰色调为辅。无须华丽的装饰,无须贵重的家具,简单的颜色搭配带来的明媚感将整个客厅的拘谨一扫而空。极简的黑与白,塑造优雅的同时又具有现代设计感。黑色可以和无彩色系的白、灰及有彩色系的任何色都能组合搭配,营造出千变万化的不同色彩情调。

客厅

客厅
客厅对于家庭成员来说,除了是多功能,多用途的空间,还是生活空间的中心。电视背景墙则以白色为主,通过与地面灰色地砖使墙面的装饰增添了几许趣味。吊顶只简单做了一个直线造型,凸显简洁流畅,放置铁艺圆桌,搭配绿植,在灯光的渲染下,慵懒、舒服的感觉油然而生。

餐厅

餐厅
餐厅是家居生活的心脏,不仅要美观,更注重实用性、整体性。同时餐厅的灯光很重要,既不能太强又不能太弱,灯光则应与温馨的暖色调为基调,顶部同样是做了简单的吊顶,墙面局部贴一些照片。

厨房
厨房是储存生活必备的地方,为日常生活提供餐饮的保证,厨房采用开放式设计,厨房采用"L型"的橱柜组合加岛台形式,显得规整,白色橱柜,灰色台面,及黑色的墙面则给简约的厨房带来了几分灵动。

卧室
卧室不仅是睡眠休息的地方,而且是最具隐私性的空间,特别是主卧。在设计主卧时没有过于复杂的设计,简单的石膏线造型,白色的橱柜和浅灰的壁纸形成对比。

卫生间
卫生间不是只看外表的地方,用的舒心才是王道,由于主卧卫生间范围有限,所以在空间布局上讲究充分利用有限的空间,进行合理的布局。
简约中求艺术,化繁为简,以宁缺勿滥为精髓,合理的简化居室,从简单舒适中体现生活的精致。
注:本案所有图片均为实景图