项目信息
房屋位置丨深圳 · 华晖云门
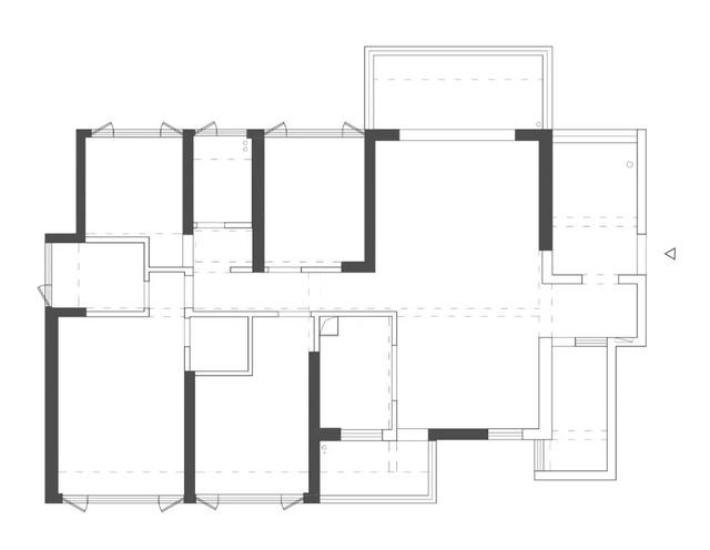
面积户型丨 163 ㎡(3 室)
常住成员丨 2夫妻+1女儿
主要材质丨石膏、金属、木
主题配色丨白、金
设计公司 | 深圳涵瑜设计

On ne voit bien qu'avec le cœur. L'essentiel est invisible pour les yeux.
真正重要的东西眼睛是看不到的,只有用心去看才能看得清楚

王小姐与赵先生这对恩爱夫妻任职于知名企业,经过了八年奋斗与甜蜜的婚姻,事业有成之余还有一个很可爱的小女儿,是一组很幸福甜蜜的家庭。开始业主心目中本定位传统的美式风格,后面在接触的洽谈中,因欣赏过我们之前小法式案例《新桥恋人》(戳这里回顾小法式混搭风案例),已慢慢的倾向了低调的法式风,这种饱含着独立、优雅、与众不同的浪漫气质也许更适合他们。
户型分析

原始户型基础相对较方正,布局并没有太大的改变,只是根据业主的个人生活习惯与使用需求优化了空间,稍微做了一部分改动。
-
为扩大女儿房的空间,将主卧的衣帽间拆除。
-
将原先的生活阳台进行了封窗,设计为可封闭的中厨。
-
厨房的墙面拆除,设计一个开放式的西厨岛台与放置、收纳物品的储物柜。

NO.1 玄关
VESTIBULE
借着透亮的玻璃引入的阳光,一幅艺术感的挂画映入眼帘,黑色极简质感的端景桌时尚又精致,姿态柔和的绿植插花,衬托出对生活的仪式感。

家,无需繁复的装饰,但需要有趣的造型与精致的细节,诠释出对生活的热爱。
LIVING ROOM

空间的主色调以纯白为主,白色在视觉上有“冷”和“远”的效果。看到白色你会想到白雪、辽阔的天空,这些可望不可及的意向,为空间营造了一种纯净和完美。

传统法式风格略显厚重,所以特别弱化了古典浓厚的感觉去邂逅现代风的混搭,不需要多余的造型装饰,浪漫的法式线条与轻微雕花游走于整个空间,简洁典雅而充满品味,利落干净的空间没有一丝累赘。

为了提亮效果,让空间变得不过于简单,用了颜色对比的手法,利用其它颜色来打造高对比感,所以略微点缀了几处色调。

局部的使用对比手法,是不会影响整体的风格,而且还增加了一些趣味性,避免过分单调。

NO.3 餐厅
RESTAURANT

几多纯粹几多温馨,每一笔设计都在延伸着浪漫。隐约若现的精致壁炉与金色文艺的复古镜,搭配黑色现代的实木餐桌与宝蓝金属轻奢椅,沉稳中透着轻盈,高贵中带有摩登。

不同的形体、材质搭配,出挑却又富含质感,既有穿透古典情怀的稳持优雅,又有现代都市赋予的精致奢华。

NO.4 厨房
KITCHEN

设计师将原户型的生活阳台设计成中厨,玻璃推拉门是中西厨的功能分区点,由整体到局部,环形岛台增加功能操作性,阵列感打破传统界限,动线顺畅流转,极具关联又互不干扰。
NO.5 主卧
BEDROOM

浅灰色的衣柜加以纯粹舒服的松石蓝,有意降低空间里的材质多样性,让卧室随性而又温馨。动人的往往不是奢华,也不是奇异,而是精细的体验与美感。

NO.6 儿童房
CHILDREN'S ROOM

粉嫩公主床与少女纱幔构成了属于孩子的公主世界,各个角落的趣味摆件让这个空间成为只属于小女儿的童话世界。主色也屏弃了鲜艳的色彩,而以添加些许灰度感的莫兰迪色质感着空间,潜移默化中培养着审美情趣的认知。

NO.7 父母房
PARENTS"ROOM

素色软饰增强了空间呼吸性,复古格调让空间更有艺术气息。中古实木家具被赋予更多质感,与精致简约球灯化身为新艺术潮流。整个空间既有对比又和谐统一,点燃了沉稳利落的视觉氛围。

NO.8 卫生间
TOILET

高级简约的格调,一面延伸的镜柜在采光与通透的氛围下,扩大了空间的视觉感,配上雾霾蓝的浴室柜,在统一没有多余的装饰下,彰显出明快简洁的意境。

白色平和从容
是一切事物的起点和终点
起初是什么都不知道
一片纯净似初心
最终是什么都经历了
心里反而澄澈平和如明镜